13275 TULA LOOP ASTATULA FL 34705





See Also...
Overview of 13275 Tula Loop
No
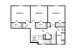
Don't miss this home for sale in Tula Parc! Under construction. Reduce price! Private corner-lot! Welcome to the parc model in the vibrant Tula Parc community of astatula, fl! This spacious two-story retreat offers 4 generously sized bedrooms and 2.5 bathrooms, all designed with comfort and functionality in mind. Every bedroom features its own walk-in closet, offering abundant storage throughout the home. the open-concept layout creates a seamless flow between the kitchen, dining area, and living room, perfect for entertaining and everyday living. The chef-inspired kitchen is loaded with upgrades, including brand-new whirlpool® appliances, granite countertops, a large closet pantry, and 36 upper wood cabinets with crown molding. Additional features include moen® faucets, led flush-mount energy star® lighting, and a programmable thermostat. the private master retreat is a relaxing sanctuary with a spacious en-suite bathroom featuring dual sinks and a walk-in closet. Designer touches throughout the home include coach lighting, double-pane low-e vinyl windows, and a wi-fi-enabled garage door opener. sitting on a corner lot, this home also showcases mature landscaping and plenty of natural light. As part of the Tula Parc community, residents enjoy access to a community gazebo and playground, and are just minutes from the chain of lakes and little lake harris, offering endless options for boating, kayaking, and fishing. this parc model is truly a perfect blend of style, space, and locationschedule your tour today!
This lovely single family home was built in 2025 and features 4 bedrooms, and 2 full bathrooms plus 1 half bath. This home for sale is 2,510 square feet, with 2,059 sq ft being air conditioned living space. The home has a 2 car garage and does not have a private swimming pool.
Directions to this property are as follows: Take 408 W To Turnpike N And Then Take 278 Exit Turn Right Onto County Road 561 To Georgia Avenue Turn Left On Georgia Avenue To Adams Street Turn Right On Adams Street And Then Turn Right On Tula Loop.
Please contact your ZFC agent for more information about MLS# MFRTB8370568 or any other homes for sale in Astatula or elsewhere in the Lake County area.
13275 Tula Loop Price Calculator
The payment calculator figures for 13275 Tula Loop should be used as an estimate only. Loan terms including interest rate, and required downpayment will vary with each lender and/or individual. RE taxes for this home for sale are estimated based on the actual property taxes for this property for the tax year 2024 which are $5,472 but will likely change when this home sells. These estimations are calculated from a list price of $388,900 and a 25% down payment and do not include homeowners insurance which will vary greatly depending on the home characteristics and location.
Recent Home Sales near 13275 Tula Loop
MLS# MFRTB8370568 Listing History

Map of 13275 Tula Loop Astatula FL 34705
The data relating to homes for sale or lease or other real estate for sale or for rent on the ZFC website comes in part from a cooperative data exchange program of the MLS in which this Broker participates. The real estate displayed may not be all of the homes in the database, or all of the properties listed with Brokers participating in the cooperative data exchange program. Homes for sale that are listed by Brokers other than this Broker are marked with either the listing Broker's name or the MLS name or a logo provided by the MLS and the details page about such properties includes the name of the listing Brokers. Information provided is thought to be reliable but is not guaranteed to be accurate; you are advised to verify facts that are important to you. No warranties, expressed or implied, are provided for the data herein, or for their use or interpretation by the user. ZFC, the Florida Association of Realtors and its cooperating Multiple Listing Services do not create, control or review the property data displayed herein and take no responsibility for the content of such records. Federal law including the fair housing act prohibits discrimination on the basis of race, color, religion, sex, handicap, familial status or national origin in the sale, rental or financing of housing. IDX information is provided exclusively for personal, non-commercial use, and may not be used for any purpose other than to identify prospective properties consumers may be interested in purchasing. Information is deemed reliable but not guaranteed.
-
- Palm Beach
- Boca Raton
- Highland Beach
- Delray Beach
- Boynton Beach
- Lake Worth
- Wellington
- West Palm Beach
- Palm Beach Gardens
- Jupiter
- Singer Island
- Broward
- Fort Lauderdale
- Parkland
- Coral Springs
- Davie
- Weston
- Plantation
- Pembroke Pines
- Southwest Ranches
- Hillsboro Beach
- Miami/Dade
- Miami
- Miami Beach
- Aventura
- Sunny Isles
- Bal Harbour
- Surfside
- Coral Gables
- Treasure Coast
- Port Saint Lucie
- Fort Pierce
- Palm City
- Jensen Beach
- Vero Beach
- Stuart
- Hobe Sound
- Gulf Coast
- Naples
- Marco Island
- Fort Myers
- Bonita Springs
- Sarasota
- Tampa
- Clearwater
