19501 W Country Club Dr Aventura FL 33180 Sold 11/02/2021





See Also...
Overview of 19501 W Country Club Dr 2014
No
Don't miss this condo for sale in Turnberry On The Green! !! Amazing ocean and golf course views of turnberry isle golf course.!! Most wanted unit location in the building. 2 bed/2 bath split design. Open kitchen with granite counters. 5 star amenities including pool, top of the line fitness center, internet, children playground, billiard room, party room, 24 hour valet, security, business center, game & study rooms, bbq area,etc. Excellent location walking distance to famous aventura mall, restaurants, places of worship, schools, beach, parks & more. Aventura circle right outside your door, and near to gulfstream racetrack and casino.
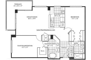
This lovely condo was built in 2002 and features 2 bedrooms, and 2 full bathrooms. This condo for sale is 1,245 square feet, with 1,245 sq ft being air conditioned living space. The condo1 assigned parking garage spot and does not have a private swimming pool, although there is a community pool in the complex for use by residents.
AMAZING VIEWS OF TURNBERRY GOLF COURSE FROM THIS 2/2 SPLIT FLOOR PLAN. LOTS OF AMENTIES,GYM,POOL,24 HRS. VALET & SECURITY,SPA,ETC. EXCELLENT LOCATION.
Please contact your ZFC agent for more information about MLS# AX-11101285 or any other condos for sale in Aventura or elsewhere in the Miami-Dade County area.
19501 W Country Club Dr 2014 Price Calculator
The payment calculator figures for 19501 W Country Club Dr 2014 should be used as an estimate only. Loan terms including interest rate, and required downpayment will vary with each lender and/or individual. RE taxes for this condo for sale are estimated based on the actual property taxes for this property for the tax year 2020 which are $5,971 but will likely change when this condo sells. These estimations are calculated from a list price of $450,000 and a 25% down payment and do not include homeowners insurance which will vary greatly depending on the condo characteristics and location.
Recent Condo Sales near 19501 W Country Club Dr 2014
MLS# AX-11101285 Listing History
Miami-Dade County Schools
Elementary School
Middle School
High School
Public Transportation
Broward County Transit:
Hallandale Blv / Miramar Pky Local
Miami Dade Transit:
DOWNTOWN-AVENTURA MALL VIA MIABEACH
Miami Dade Transit:
DOWNTOWN-AVENTURA MALL VIA MIABEACH
Broward County Transit:
Hallandale Blv / Miramar Pky Local
Miami Dade Transit:

Map of 19501 W Country Club Dr 2014 Aventura FL 33180
Similar Condominium Buildings Aventura
The data relating to homes for sale or lease or other real estate for sale or for rent on the ZFC website comes in part from a cooperative data exchange program of the MLS in which this Broker participates. The real estate displayed may not be all of the homes in the database, or all of the properties listed with Brokers participating in the cooperative data exchange program. Homes for sale that are listed by Brokers other than this Broker are marked with either the listing Broker's name or the MLS name or a logo provided by the MLS and the details page about such properties includes the name of the listing Brokers. Information provided is thought to be reliable but is not guaranteed to be accurate; you are advised to verify facts that are important to you. No warranties, expressed or implied, are provided for the data herein, or for their use or interpretation by the user. ZFC, the Florida Association of Realtors and its cooperating Multiple Listing Services do not create, control or review the property data displayed herein and take no responsibility for the content of such records. Federal law including the fair housing act prohibits discrimination on the basis of race, color, religion, sex, handicap, familial status or national origin in the sale, rental or financing of housing. IDX information is provided exclusively for personal, non-commercial use, and may not be used for any purpose other than to identify prospective properties consumers may be interested in purchasing. Information is deemed reliable but not guaranteed.
-
- Palm Beach
- Boca Raton
- Highland Beach
- Delray Beach
- Boynton Beach
- Lake Worth
- Wellington
- West Palm Beach
- Palm Beach Gardens
- Jupiter
- Singer Island
- Broward
- Fort Lauderdale
- Parkland
- Coral Springs
- Davie
- Weston
- Plantation
- Pembroke Pines
- Southwest Ranches
- Hillsboro Beach
- Miami/Dade
- Miami
- Miami Beach
- Aventura
- Sunny Isles
- Bal Harbour
- Surfside
- Coral Gables
- Treasure Coast
- Port Saint Lucie
- Fort Pierce
- Palm City
- Jensen Beach
- Vero Beach
- Stuart
- Hobe Sound
- Gulf Coast
- Naples
- Marco Island
- Fort Myers
- Bonita Springs
- Sarasota
- Tampa
- Clearwater
