7995 COUNTY ROAD 64 E AVON PARK FL 33825





Overview of 7995 County Road 64 E
No
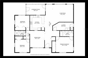
Wow!! Your lakefront dream home is here! Situated on over 1 acre of pristine florida waterfront land on lake arbuckle in avon park, fl - this stunning homestead is now ready for new owners to enjoy! Everything on this gorgeous ranch style home has been masterfully well maintained throughout the years. 3 spacious bedrooms on a split floor plan, 2 full bathrooms & a shower in the indoor utility room, cypress wood accents, exterior pole barn with generously sized tack room, dock, plus so much more! The immaculate landscaping and exceptional curb appeal will make you so happy to arrive home in a beautiful setting every day! Upon entering through the front door entryway, the designated formal dining area containing a beautiful view of the front yard is immediately to the left. Continuing into the home reveals the large family room with lake arbuckle views through a custom bay window and the huge kitchen fully equipped with stainless steel appliances, plenty of cabinet/counter space, and breakfast bar providing for extra barstool seating. Adjacent screened-in back porch incorporates a stunning view of the surrounding land and lake. Super convenient indoor laundry room with shower is located next to the covered carport and exterior storage room! The spacious 14'x13' primary bedroom contains a generous amount of closet space as well as an en-suite bathroom with shower/tub combo. The 2 secondary bedrooms are on the opposite side of the home as well as the 2nd bathroom equipped with a fully tiled walk-in shower. The perfect home for your horse - the 21'x57' pole shed also contains separate stalls and a storage room for your supplies. Artesian well and septic tank utilities. Wood laminate and tile flooring throughout the home. Updates include a recently new well water tank, water heater updated approximately 7 years ago, boat dock built in 2009, full metal roof replaced in 2004. Lake arbuckle is a pristine, shallow lake with little offshore structure and maximum depth of 12 feet. Ideal location for an avid fisher since the boat ramp is located close by in the fish camp - trophy bass up to 15 pounds have been caught at lake arbuckle in recent years! Residents in this neighborhood enjoy not having to pay any homeowner's association or special district fees. *Extended family members also own the adjacent 20 acres of land - will be open to offers
This lovely single family home was built in 1989 and features 3 bedrooms, and 2 full bathrooms plus 1 half bath. This home for sale is 2,257 square feet, with 1,861 sq ft being air conditioned living space. The home has a does not have a private swimming pool.
Directions to this property are as follows: At The Intersection Of Us Highway 27 And Main St In Avon Park, Travel East On Main St. Continue Straight On Main St Through The 4-way Stop, Turning Main St Into County Rd 64 E. Travel County Rd 64 E For 8 Miles. Property Will Be Located To The Left.
Please contact your ZFC agent for more information about MLS# MFROM707818 or any other homes for sale in Avon Park or elsewhere in the Polk County area.
7995 County Rd 64 E Price Calculator
The payment calculator figures for 7995 County Road 64 E should be used as an estimate only. Loan terms including interest rate, and required downpayment will vary with each lender and/or individual. RE taxes for this home for sale are estimated based on the actual property taxes for this property for the tax year 2024 which are $1,644 but will likely change when this home sells. These estimations are calculated from a list price of $399,000 and a 25% down payment and do not include homeowners insurance which will vary greatly depending on the home characteristics and location.
Recent Home Sales near 7995 County Rd 64 E
MLS# MFROM707818 Listing History

Map of 7995 County Rd 64 E Avon Park FL 33825
The data relating to homes for sale or lease or other real estate for sale or for rent on the ZFC website comes in part from a cooperative data exchange program of the MLS in which this Broker participates. The real estate displayed may not be all of the homes in the database, or all of the properties listed with Brokers participating in the cooperative data exchange program. Homes for sale that are listed by Brokers other than this Broker are marked with either the listing Broker's name or the MLS name or a logo provided by the MLS and the details page about such properties includes the name of the listing Brokers. Information provided is thought to be reliable but is not guaranteed to be accurate; you are advised to verify facts that are important to you. No warranties, expressed or implied, are provided for the data herein, or for their use or interpretation by the user. ZFC, the Florida Association of Realtors and its cooperating Multiple Listing Services do not create, control or review the property data displayed herein and take no responsibility for the content of such records. Federal law including the fair housing act prohibits discrimination on the basis of race, color, religion, sex, handicap, familial status or national origin in the sale, rental or financing of housing. IDX information is provided exclusively for personal, non-commercial use, and may not be used for any purpose other than to identify prospective properties consumers may be interested in purchasing. Information is deemed reliable but not guaranteed.
-
- Palm Beach
- Boca Raton
- Highland Beach
- Delray Beach
- Boynton Beach
- Lake Worth
- Wellington
- West Palm Beach
- Palm Beach Gardens
- Jupiter
- Singer Island
- Broward
- Fort Lauderdale
- Parkland
- Coral Springs
- Davie
- Weston
- Plantation
- Pembroke Pines
- Southwest Ranches
- Hillsboro Beach
- Miami/Dade
- Miami
- Miami Beach
- Aventura
- Sunny Isles
- Bal Harbour
- Surfside
- Coral Gables
- Treasure Coast
- Port Saint Lucie
- Fort Pierce
- Palm City
- Jensen Beach
- Vero Beach
- Stuart
- Hobe Sound
- Gulf Coast
- Naples
- Marco Island
- Fort Myers
- Bonita Springs
- Sarasota
- Tampa
- Clearwater
