2634 SOUTH DRIVE CLEARWATER FL 33759
Overview of 2634 South Dr
No
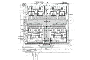
Rare clearwater build-to-rent / development opportunity with approved developmental order and plans available for a 16-townhome project (drawings and plan set available for buyer review). The existing property includes a home and a shophowever, the highest and best use is the land and future buildout for long-term rentals or resale. Prime central clearwater location with quick access to us-19 and major commuter corridors. Convenient for tenants and investors alike: approximately 10 miles to st. Peteclearwater international airport (pie) and about 1819 miles to tampa international airport (tpa) , plus an easy drive to clearwaters world-famous gulf beaches, shopping, dining, and employment hubs. Ideal for investors seeking a shovel-ready (plan-set in hand) townhome rental community in one of tampa bays most in-demand submarkets. Buyer to verify zoning, density, approvals/vesting status, impact fees, utilities, and all development requirements with the city/county. All information regarding zoning, approvals, density, and development potential is believed to be accurate but is not guaranteed. Buyer is responsible for verifying all details, approvals, and requirements with the appropriate governing authorities and completing their own due diligence. Images are conceptual and/or ai-generated renderings intended to illustrate potential buildout and are not photographs of existing improvements on the property.
This luxury single family home was built in 1959 and features 2 bedrooms, and 1 full bathrooms plus 1 half bath. This home for sale is 1,000 square feet, with 1,000 sq ft being air conditioned living space. The home has a 3 car garage and does not have a private swimming pool.
Directions to this property are as follows: Us 19 To Sunset Point Rd Go East On Sunset Point Rd And Then Turn Right On South Dr Follow Along To Property.
Please contact your ZFC agent for more information about MLS# MFRW7883268 or any other homes for sale in Clearwater or elsewhere in the Pinellas County area.
2634 South Dr Price Calculator
The payment calculator figures for 2634 South Dr should be used as an estimate only. Loan terms including interest rate, and required downpayment will vary with each lender and/or individual. RE taxes for this home for sale are estimated based on the actual property taxes for this property for the tax year 2025 which are $9,728 but will likely change when this home sells. These estimations are calculated from a list price of $1,595,000 and a 25% down payment and do not include homeowners insurance which will vary greatly depending on the home characteristics and location.
Recent Home Sales near 2634 South Dr
MLS# MFRW7883268 Listing History
Pinellas County Schools
Elementary School
Middle School
High School
Public Transportation
Pinellas Suncoast Transit Authority:
Route 19 LARGO TRANSIT CENTER/TARPON SPRI
Pinellas Suncoast Transit Authority:
Route 76 CLEARWATER/WESTFIELD SHOPPING
Pinellas Suncoast Transit Authority:
Route 19 LARGO TRANSIT CENTER/TARPON SPRI
Pinellas Suncoast Transit Authority:
Route 19 LARGO TRANSIT CENTER/TARPON SPRI
Pinellas Suncoast Transit Authority:
Map of 2634 South Dr Clearwater FL 33759
Similar communities in Clearwater
The data relating to homes for sale or lease or other real estate for sale or for rent on the ZFC website comes in part from a cooperative data exchange program of the MLS in which this Broker participates. The real estate displayed may not be all of the homes in the database, or all of the properties listed with Brokers participating in the cooperative data exchange program. Homes for sale that are listed by Brokers other than this Broker are marked with either the listing Broker's name or the MLS name or a logo provided by the MLS and the details page about such properties includes the name of the listing Brokers. Information provided is thought to be reliable but is not guaranteed to be accurate; you are advised to verify facts that are important to you. No warranties, expressed or implied, are provided for the data herein, or for their use or interpretation by the user. ZFC, the Florida Association of Realtors and its cooperating Multiple Listing Services do not create, control or review the property data displayed herein and take no responsibility for the content of such records. Federal law including the fair housing act prohibits discrimination on the basis of race, color, religion, sex, handicap, familial status or national origin in the sale, rental or financing of housing. IDX information is provided exclusively for personal, non-commercial use, and may not be used for any purpose other than to identify prospective properties consumers may be interested in purchasing. Information is deemed reliable but not guaranteed.
-
- Palm Beach
- Boca Raton
- Highland Beach
- Delray Beach
- Boynton Beach
- Lake Worth
- Wellington
- West Palm Beach
- Palm Beach Gardens
- Jupiter
- Singer Island
- Broward
- Fort Lauderdale
- Parkland
- Coral Springs
- Davie
- Weston
- Plantation
- Pembroke Pines
- Southwest Ranches
- Hillsboro Beach
- Miami/Dade
- Miami
- Miami Beach
- Aventura
- Sunny Isles
- Bal Harbour
- Surfside
- Coral Gables
- Treasure Coast
- Port Saint Lucie
- Fort Pierce
- Palm City
- Jensen Beach
- Vero Beach
- Stuart
- Hobe Sound
- Gulf Coast
- Naples
- Marco Island
- Fort Myers
- Bonita Springs
- Sarasota
- Tampa
- Clearwater





