3078 EASTLAND BOULEVARD CLEARWATER FL 33761
See Also...
Overview of 3078 Eastland Blvd #107
No
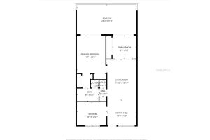
Don't miss this condo for sale in Imperial Pines! Welcome to Imperial Pines a beautifully maintained rutenberg-built 55+ community in the heart of the coveted east lake corridor. This inviting condo is truly a standout, boasting an updated kitchen, interior laundry, brand-new flooring throughout, and one of the only units featuring an expansive private balcony measuring approximately 25 x 12 your own outdoor sanctuary in the treetops. step inside and immediately feel the comfort of a bright, thoughtfully designed floorplan that maximizes both functionality and flow. The kitchen is a chef-friendly space with newer tile, microwave, dishwasher, recessed lighting, and a large window that fills the room with natural light. Ample cabinetry and counter space seamlessly connect to the dining area for easy entertaining. the spacious living room, enhanced by massive sliders and charming tri-fold french doors, opens into a bonus roomperfect for a home office, reading nook, craft room, or fitness space. From here, step onto your oversized private balcony, one of the largest in the community, where you can sip morning coffee, unwind, view the sunset skies, and enjoy peaceful views of lush landscaping and nature. this meticulously maintained home also features an interior laundry closet, providing everyday convenience rarely found in similar buildings. Imperial Pines offers a welcoming lifestyle with a host of amenities: a beautiful heated pool & jacuzzi a billiards and game room a clubhouse with exercise room community spaces ideal for hosting gatherings ground-floor covered parking and a garage-style entrance to the elevator for easy access a secure, key-entry elevator that whisks you directly to your floor perfectly located, youre just a short walk from shopping and daily conveniences, and only 20 minutes to the world-famous gulf coast beaches, top dining, golf, and entertainment. this charming condo is more than a homeits a serene, low-maintenance retreat in a vibrant, active community. Schedule your private showing today and discover the ease and beauty of florida living at Imperial Pines. Reserves fully funded! Buyer to verify measurements.
This lovely condo was built in 1983 and features 1 bedrooms, and 1 full bathrooms. This condo for sale is 870 square feet, with 870 sq ft being air conditioned living space. The condo1 assigned parking garage spot and does not have a private swimming pool, although there is a community pool in the complex for use by residents.
Directions to this property are as follows: Head North On Mcmullen Booth Rd. (north Of Enterprise)turn Left (w) On Eastland Blvd. Turn Right (n) Into Imperial Pines Condos.
Please contact your ZFC agent for more information about MLS# MFRTB8442753 or any other condos for sale in Clearwater or elsewhere in the Pinellas County area.
3078 Eastland Boulevard Price Calculator
The payment calculator figures for 3078 Eastland Blvd #107 should be used as an estimate only. Loan terms including interest rate, and required downpayment will vary with each lender and/or individual. RE taxes for this condo for sale are estimated based on the actual property taxes for this property for the tax year 2024 which are $2,662 but will likely change when this condo sells. These estimations are calculated from a list price of $185,000 and a 25% down payment and do not include homeowners insurance which will vary greatly depending on the condo characteristics and location.
Recent Condo Sales near 3078 Eastland Boulevard
MLS# MFRTB8442753 Listing History
Pinellas County Schools
Elementary School
Middle School
High School
Public Transportation
Pinellas Suncoast Transit Authority:
Route 67 CLEARWATER/DOWNTOWN OLDSMAR
Pinellas Suncoast Transit Authority:
Route 67 CLEARWATER/DOWNTOWN OLDSMAR
Pinellas Suncoast Transit Authority:
Route 67 CLEARWATER/DOWNTOWN OLDSMAR
Pinellas Suncoast Transit Authority:
Route 67 CLEARWATER/DOWNTOWN OLDSMAR
Pinellas Suncoast Transit Authority:
Map of 3078 Eastland Boulevard Clearwater FL 33761
Similar Condominium Buildings Clearwater
The data relating to homes for sale or lease or other real estate for sale or for rent on the ZFC website comes in part from a cooperative data exchange program of the MLS in which this Broker participates. The real estate displayed may not be all of the homes in the database, or all of the properties listed with Brokers participating in the cooperative data exchange program. Homes for sale that are listed by Brokers other than this Broker are marked with either the listing Broker's name or the MLS name or a logo provided by the MLS and the details page about such properties includes the name of the listing Brokers. Information provided is thought to be reliable but is not guaranteed to be accurate; you are advised to verify facts that are important to you. No warranties, expressed or implied, are provided for the data herein, or for their use or interpretation by the user. ZFC, the Florida Association of Realtors and its cooperating Multiple Listing Services do not create, control or review the property data displayed herein and take no responsibility for the content of such records. Federal law including the fair housing act prohibits discrimination on the basis of race, color, religion, sex, handicap, familial status or national origin in the sale, rental or financing of housing. IDX information is provided exclusively for personal, non-commercial use, and may not be used for any purpose other than to identify prospective properties consumers may be interested in purchasing. Information is deemed reliable but not guaranteed.
-
- Palm Beach
- Boca Raton
- Highland Beach
- Delray Beach
- Boynton Beach
- Lake Worth
- Wellington
- West Palm Beach
- Palm Beach Gardens
- Jupiter
- Singer Island
- Broward
- Fort Lauderdale
- Parkland
- Coral Springs
- Davie
- Weston
- Plantation
- Pembroke Pines
- Southwest Ranches
- Hillsboro Beach
- Miami/Dade
- Miami
- Miami Beach
- Aventura
- Sunny Isles
- Bal Harbour
- Surfside
- Coral Gables
- Treasure Coast
- Port Saint Lucie
- Fort Pierce
- Palm City
- Jensen Beach
- Vero Beach
- Stuart
- Hobe Sound
- Gulf Coast
- Naples
- Marco Island
- Fort Myers
- Bonita Springs
- Sarasota
- Tampa
- Clearwater





