169 TRANQUIL MIRROR LAKE COURT CLERMONT FL 34711
See Also...
Overview of 169 Tranquil Mirror Lake Ct #lot 7
Yes
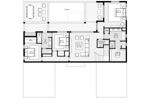
Don't miss this home for sale in Summit Greens! Pre-construction. To be built. Introducing a premier lakefront elevated homesite within an exclusive gated luxury community. With expansive views across serene natural landscapes and tranquil water, this homesite truly stands out. Its higher position on the lake provides a rare vantage point, enhancing privacy while capturing sweeping panoramas and the charm of an active orange grove across the water. With approximately 90 feet of direct lake frontage and 90 feet of street frontage, the lot provides a generous and flexible building envelope suitable for a range of architectural expressions. designed as a refined retreat for elevated everyday living, the proposed 4,990 sq ft nottingham residence blends architectural presence with warmth, comfort, and intentional design. Thoughtfully composed living spaces, curated materials, and layered natural light create a home that feels both elegant and effortless. The floor plan is intentionally adaptable, offering options for additional bedrooms, expanded garage capacity, and enhanced outdoor living environments while maintaining timeless craftsmanship. the main floor includes the primary suite, office/bonus room, 2 full baths, living room, kitchen and pantry, dining room, laundry, and a 2-car garage. The lower lakefront level includes 3 additional bedrooms and 2 additional baths, a powder room, and dedicated poolside living, ideal for entertaining or multi-generational living. situated within mirror lake, an intimate gated community of just 21 homesites, residents enjoy an uncommon pairing of lakefront serenity and wide-open golf course vistas from the adjacent clermont national golf course. The setting offers privacy, exclusivity, and a lifestyle defined by natural beauty and architectural distinction. this exceptional lot and custom designed home present a rare opportunity to build a luxury residence in one of central floridas most captivating lakefront enclaves, offering privacy, exclusivity, and a thoughtful architectural vision. More than a place to live, mirror lake is a retreat for those who appreciate distinction, natural beauty, and a lifestyle designed with intention and differentiation. Close to all things but miles away in lifestyle, this unique homesite is one of the most captivating sites in mirror lake offering a timeless setting and an extraordinary canvas for your custom home. Call us to reserve this extraordinary lot while you meet with marea homes to explore this home design further and take next steps to making mirror lake your "dream home come true!"
This luxury single family home was built in 2027 and features 4 bedrooms, and 4 full bathrooms plus 1 half bath. This home for sale is 5,570 square feet, with 4,990 sq ft being air conditioned living space. The home has a 2 car garage and has a private swimming pool.
Directions to this property are as follows: W Colonial Drive To North Onto Hancock Road, Right Onto Old Hwy 50 To Mirror Lake Community Approx. 1 Mile On Right.
Please contact your ZFC agent for more information about MLS# MFRO6391722 or any other homes for sale in Clermont or elsewhere in the Lake County area.
169 Tranquil Mirror Lake Ct Price Calculator
The payment calculator figures for 169 Tranquil Mirror Lake Ct #lot 7 should be used as an estimate only. Loan terms including interest rate, and required downpayment will vary with each lender and/or individual. RE taxes for this home for sale are estimated based on the actual property taxes for this property for the tax year 2025 which are $3,002 but will likely change when this home sells. These estimations are calculated from a list price of $2,721,250 and a 25% down payment and do not include homeowners insurance which will vary greatly depending on the home characteristics and location.
Recent Home Sales near 169 Tranquil Mirror Lake Ct
MLS# MFRO6391722 Listing History
Public Transportation
LakeXpress:
LakeXpress:
LakeXpress:
LakeXpress:
Map of 169 Tranquil Mirror Lake Ct Clermont FL 34711
Similar communities in Clermont
The data relating to homes for sale or lease or other real estate for sale or for rent on the ZFC website comes in part from a cooperative data exchange program of the MLS in which this Broker participates. The real estate displayed may not be all of the homes in the database, or all of the properties listed with Brokers participating in the cooperative data exchange program. Homes for sale that are listed by Brokers other than this Broker are marked with either the listing Broker's name or the MLS name or a logo provided by the MLS and the details page about such properties includes the name of the listing Brokers. Information provided is thought to be reliable but is not guaranteed to be accurate; you are advised to verify facts that are important to you. No warranties, expressed or implied, are provided for the data herein, or for their use or interpretation by the user. ZFC, the Florida Association of Realtors and its cooperating Multiple Listing Services do not create, control or review the property data displayed herein and take no responsibility for the content of such records. Federal law including the fair housing act prohibits discrimination on the basis of race, color, religion, sex, handicap, familial status or national origin in the sale, rental or financing of housing. IDX information is provided exclusively for personal, non-commercial use, and may not be used for any purpose other than to identify prospective properties consumers may be interested in purchasing. Information is deemed reliable but not guaranteed.
-
- Palm Beach
- Boca Raton
- Highland Beach
- Delray Beach
- Boynton Beach
- Lake Worth
- Wellington
- West Palm Beach
- Palm Beach Gardens
- Jupiter
- Singer Island
- Broward
- Fort Lauderdale
- Parkland
- Coral Springs
- Davie
- Weston
- Plantation
- Pembroke Pines
- Southwest Ranches
- Hillsboro Beach
- Miami/Dade
- Miami
- Miami Beach
- Aventura
- Sunny Isles
- Bal Harbour
- Surfside
- Coral Gables
- Treasure Coast
- Port Saint Lucie
- Fort Pierce
- Palm City
- Jensen Beach
- Vero Beach
- Stuart
- Hobe Sound
- Gulf Coast
- Naples
- Marco Island
- Fort Myers
- Bonita Springs
- Sarasota
- Tampa
- Clearwater





