657 CHAMBELLE LANE DEBARY FL 32713 Sold 12/26/2024





See Also...
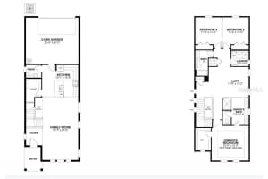
Overview of 657 Chambelle Ln
No
Don't miss this home for sale in Rivington! Under construction. Boasting 3 spacious bedrooms and 2 well-appointed full bathrooms, this residence is ideal for those seeking a cozy and inviting living space. The open-concept layout creates a seamless flow between the living, dining, and kitchen areas, with wood look tile , provides a great space for entertaining guests or unwinding after a long day. With 2,341 square feet of living space, as well as a loft, there is plenty of room to accommodate your lifestyle and needs. your 42" kitchen cabinets with quartz counter tops are sure to please anyone. Featuring a huge walk in pantry with additional storage. There is a nice cut out niche that is ideal for a piano, bar, wall unit or office area. the home includes an oversized 2-car garage and is energy star 3.0 certified.
This lovely single family home was built in 2024 and features 3 bedrooms, and 2 full bathrooms plus 1 half bath. This home for sale is 3,049 square feet, with 2,341 sq ft being air conditioned living space. The home has a 2 car garage and does not have a private swimming pool, although there is a community pool in the complex for use by residents.
Directions to this property are as follows: From Orlando. Head East On I-4 And Take Exit 104 To Merge Onto 17-92. Turn Left Onto Berwick And Follow The Detour To Fort Florida Rd And Go Left. Follow Fort Florida Road To The Main Entrance Of The Community, Go Left. Go Straight To The Round About And Go Right Onto Rivington Ave. Model Is Straight Ahead On The Right.
Please contact your ZFC agent for more information about MLS# MFRO6214485 or any other homes for sale in Debary or elsewhere in the Volusia County area.
657 Chambelle Ln Price Calculator
The payment calculator figures for 657 Chambelle Ln should be used as an estimate only. Loan terms including interest rate, and required downpayment will vary with each lender and/or individual. RE taxes for this home for sale are estimated based on the actual property taxes for this property for the tax year 2023 which are $1,113 but will likely change when this home sells. These estimations are calculated from a list price of $459,990 and a 25% down payment and do not include homeowners insurance which will vary greatly depending on the home characteristics and location.
Recent Home Sales near 657 Chambelle Ln
MLS# MFRO6214485 Listing History
Volusia County Schools
Elementary School
Middle School
High School

Map of 657 Chambelle Ln Debary FL 32713
The data relating to homes for sale or lease or other real estate for sale or for rent on the ZFC website comes in part from a cooperative data exchange program of the MLS in which this Broker participates. The real estate displayed may not be all of the homes in the database, or all of the properties listed with Brokers participating in the cooperative data exchange program. Homes for sale that are listed by Brokers other than this Broker are marked with either the listing Broker's name or the MLS name or a logo provided by the MLS and the details page about such properties includes the name of the listing Brokers. Information provided is thought to be reliable but is not guaranteed to be accurate; you are advised to verify facts that are important to you. No warranties, expressed or implied, are provided for the data herein, or for their use or interpretation by the user. ZFC, the Florida Association of Realtors and its cooperating Multiple Listing Services do not create, control or review the property data displayed herein and take no responsibility for the content of such records. Federal law including the fair housing act prohibits discrimination on the basis of race, color, religion, sex, handicap, familial status or national origin in the sale, rental or financing of housing. IDX information is provided exclusively for personal, non-commercial use, and may not be used for any purpose other than to identify prospective properties consumers may be interested in purchasing. Information is deemed reliable but not guaranteed.
-
- Palm Beach
- Boca Raton
- Highland Beach
- Delray Beach
- Boynton Beach
- Lake Worth
- Wellington
- West Palm Beach
- Palm Beach Gardens
- Jupiter
- Singer Island
- Broward
- Fort Lauderdale
- Parkland
- Coral Springs
- Davie
- Weston
- Plantation
- Pembroke Pines
- Southwest Ranches
- Hillsboro Beach
- Miami/Dade
- Miami
- Miami Beach
- Aventura
- Sunny Isles
- Bal Harbour
- Surfside
- Coral Gables
- Treasure Coast
- Port Saint Lucie
- Fort Pierce
- Palm City
- Jensen Beach
- Vero Beach
- Stuart
- Hobe Sound
- Gulf Coast
- Naples
- Marco Island
- Fort Myers
- Bonita Springs
- Sarasota
- Tampa
- Clearwater
