1385 TAYLOR ROAD DELAND FL 32720
Overview of 1385 E Taylor Rd
No
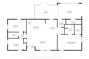
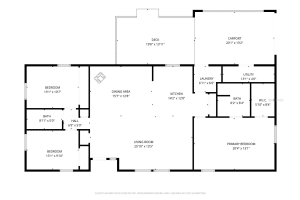
Welcome home to this beautifully updated, one-owner 1,795 sq ft block home built in 1980, offering the perfect blend of modern updates and peaceful country living. Situated on almost a half-acre lot, this 3-bedroom, 2-bath split floor plan home has been thoughtfully renovated and is truly move-in ready. the open-concept living area features brand-new flooring along with fresh interior and exterior paint, creating a bright and inviting atmosphere throughout. The kitchen is a true focal point, showcasing concrete-finished countertops, a shiplap-wrapped island, and a gas range, making it ideal for both everyday living and entertaining. The home also offers the ability to extend natural gas service to the dryer, water heater, and stove once a tank is installed. french doors lead to a new composite deck, perfect for entertaining guests or enjoying your morning coffee while watching the birds and taking in the peaceful backyard setting. A brand-new roof will be installed, providing added peace of mind for years to come. enjoy the serenity of country living while remaining just 510 minutes from shopping, dining, and grocery stores, and approximately 15 minutes from the interstate. space, updates, and locationthis home truly has it all. all buyers and buyers agents must verify room sizes and any information provided.
This lovely single family home was built in 1980 and features 3 bedrooms, and 2 full bathrooms. This home for sale is 2,328 square feet, with 1,795 sq ft being air conditioned living space. The home has a does not have a private swimming pool.
Directions to this property are as follows: Continue On I-4 East Towards Daytona Beach. Take Exit 116 Towards Deland On Cr 4116 For .5 Miles. Continue On Orange Camp Rd For 1 Mile. Keep Right Toward Dr Martin L King Jr Bltwy/cr-4101 N. Continue On Dr Martin L King Jr Bltwy (cr-4101 N).go For 1.0 Mi. Turn Left Onto Taylor Rd E. Go For 0.5 Mi. End At 1385 Taylor Rd Deland, Florida.
Please contact your ZFC agent for more information about MLS# MFRO6375335 or any other homes for sale in Deland or elsewhere in the Volusia County area.
1385 E Taylor Rd Price Calculator
The payment calculator figures for 1385 E Taylor Rd should be used as an estimate only. Loan terms including interest rate, and required downpayment will vary with each lender and/or individual. RE taxes for this home for sale are estimated based on the actual property taxes for this property for the tax year 2025 which are $4,090 but will likely change when this home sells. These estimations are calculated from a list price of $367,000 and a 25% down payment and do not include homeowners insurance which will vary greatly depending on the home characteristics and location.
Recent Home Sales near 1385 E Taylor Rd
MLS# MFRO6375335 Listing History
Volusia County Schools
Elementary School
Middle School
High School
Open House Schedule for 1385 E TAYLOR RD
Map of 1385 E Taylor Rd Deland FL 32720
The data relating to homes for sale or lease or other real estate for sale or for rent on the ZFC website comes in part from a cooperative data exchange program of the MLS in which this Broker participates. The real estate displayed may not be all of the homes in the database, or all of the properties listed with Brokers participating in the cooperative data exchange program. Homes for sale that are listed by Brokers other than this Broker are marked with either the listing Broker's name or the MLS name or a logo provided by the MLS and the details page about such properties includes the name of the listing Brokers. Information provided is thought to be reliable but is not guaranteed to be accurate; you are advised to verify facts that are important to you. No warranties, expressed or implied, are provided for the data herein, or for their use or interpretation by the user. ZFC, the Florida Association of Realtors and its cooperating Multiple Listing Services do not create, control or review the property data displayed herein and take no responsibility for the content of such records. Federal law including the fair housing act prohibits discrimination on the basis of race, color, religion, sex, handicap, familial status or national origin in the sale, rental or financing of housing. IDX information is provided exclusively for personal, non-commercial use, and may not be used for any purpose other than to identify prospective properties consumers may be interested in purchasing. Information is deemed reliable but not guaranteed.
-
- Palm Beach
- Boca Raton
- Highland Beach
- Delray Beach
- Boynton Beach
- Lake Worth
- Wellington
- West Palm Beach
- Palm Beach Gardens
- Jupiter
- Singer Island
- Broward
- Fort Lauderdale
- Parkland
- Coral Springs
- Davie
- Weston
- Plantation
- Pembroke Pines
- Southwest Ranches
- Hillsboro Beach
- Miami/Dade
- Miami
- Miami Beach
- Aventura
- Sunny Isles
- Bal Harbour
- Surfside
- Coral Gables
- Treasure Coast
- Port Saint Lucie
- Fort Pierce
- Palm City
- Jensen Beach
- Vero Beach
- Stuart
- Hobe Sound
- Gulf Coast
- Naples
- Marco Island
- Fort Myers
- Bonita Springs
- Sarasota
- Tampa
- Clearwater





