42039 CHERRY AVENUE DELAND FL 32720
Overview of 42039 Cherry Ave
No
Pre-construction. To be built. Brand-new construction on private land under $280,000 something almost impossible to find in todays market. Providing $5,000 buyer concessions. currently under completion on-site, this brand-new 3-bedroom, 2-bath cavco economy home delivers what most buyers are searching for and rarely find: new construction, no renovations, and no compromises. Set on a 0.26-acre lot and featuring a welcoming covered front porch, the home blends modern efficiency with timeless curb appeal. built by cavco industries, the parent company of fleetwood homes, this residence is constructed in a controlled factory environment for consistent quality, durability, and compliance with federal hud standards. the property will include a new well, new septic, and brand-new systems throughout, all backed by a manufacturers limited warranty. No deferred maintenance. No surprises. Just a fresh start built from the ground up. photos may include renderings or similar completed homes. Construction is in progress; completion forthcoming.
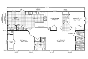
This lovely property was built in 2026 and features 3 bedrooms, and 2 full bathrooms. This property for sale is 1,479 square feet, with 1,398 sq ft being air conditioned living space. The property has a does not have a private swimming pool.
Directions to this property are as follows: Follow Fl-44 E To Highland Lakes Rd In Lake County Head Southwest On Exit 118 A Toward Fl-44 E Merge Onto Fl-44 E Make A U-turn Keep Left To Continue On Fl-44 W At The Traffic Circle, Take The 2nd Exit Continue Onto Fl-44 W/e New York Ave At The Traffic Circle, Take The 2nd Exit Onto Fl-44 W Continue On Highland Lakes Rd. Drive To Cherry Ave Turn Right Onto Highland Lakes Rd Turn Left Onto Dogwood Ave Turn Right Onto Division St Turn Left At The 1st Cross Street Onto Cherry Ave.
Please contact your ZFC agent for more information about MLS# MFRO6370589 or any other properties for sale in Deland or elsewhere in the Lake County area.
42039 Cherry Ave Price Calculator
The payment calculator figures for 42039 Cherry Ave should be used as an estimate only. Loan terms including interest rate, and required downpayment will vary with each lender and/or individual. RE taxes for this property for sale are estimated based on the actual property taxes for this property for the tax year 2025 which are $819 but will likely change when this property sells. These estimations are calculated from a list price of $259,995 and a 25% down payment and do not include homeowners insurance which will vary greatly depending on the property characteristics and location.
Recent Property Sales near 42039 Cherry Ave
MLS# MFRO6370589 Listing History
Map of 42039 Cherry Ave Deland FL 32720
The data relating to homes for sale or lease or other real estate for sale or for rent on the ZFC website comes in part from a cooperative data exchange program of the MLS in which this Broker participates. The real estate displayed may not be all of the homes in the database, or all of the properties listed with Brokers participating in the cooperative data exchange program. Homes for sale that are listed by Brokers other than this Broker are marked with either the listing Broker's name or the MLS name or a logo provided by the MLS and the details page about such properties includes the name of the listing Brokers. Information provided is thought to be reliable but is not guaranteed to be accurate; you are advised to verify facts that are important to you. No warranties, expressed or implied, are provided for the data herein, or for their use or interpretation by the user. ZFC, the Florida Association of Realtors and its cooperating Multiple Listing Services do not create, control or review the property data displayed herein and take no responsibility for the content of such records. Federal law including the fair housing act prohibits discrimination on the basis of race, color, religion, sex, handicap, familial status or national origin in the sale, rental or financing of housing. IDX information is provided exclusively for personal, non-commercial use, and may not be used for any purpose other than to identify prospective properties consumers may be interested in purchasing. Information is deemed reliable but not guaranteed.
-
- Palm Beach
- Boca Raton
- Highland Beach
- Delray Beach
- Boynton Beach
- Lake Worth
- Wellington
- West Palm Beach
- Palm Beach Gardens
- Jupiter
- Singer Island
- Broward
- Fort Lauderdale
- Parkland
- Coral Springs
- Davie
- Weston
- Plantation
- Pembroke Pines
- Southwest Ranches
- Hillsboro Beach
- Miami/Dade
- Miami
- Miami Beach
- Aventura
- Sunny Isles
- Bal Harbour
- Surfside
- Coral Gables
- Treasure Coast
- Port Saint Lucie
- Fort Pierce
- Palm City
- Jensen Beach
- Vero Beach
- Stuart
- Hobe Sound
- Gulf Coast
- Naples
- Marco Island
- Fort Myers
- Bonita Springs
- Sarasota
- Tampa
- Clearwater





