1015 WISTERIA WAY DUNDEE FL 33838





Overview of 1015 Wisteria Way
No
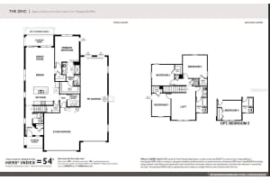
**take advantage of special financing + flex funds on quick move-in homes** an inviting covered porch welcomes guests to the beautiful zinc plan. In addition to a well-appointed kitchen with a center island and a walk-in pantry, the thoughtfully designed main floor offers a generous nook, a spacious great room, a charming covered patio and an impressive primary suite with a private bathroom and a walk-in closet. You'll also appreciated a central laundry room, a mudroom, a storage area, a 2-car garage and an attached rv garage. The second floor will be built with either a loft or an extra bedroom. You'll love the professionally curated finishes selected by our design team! 1x capital contribution fee of $350. **Options may vary by community, so see your sales associate for details. These offers are available for select homes on a first-come, first-served basis.
This lovely single family home was built in 2025 and features 4 bedrooms, and 2 full bathrooms plus 1 half bath. This home for sale is 2,730 square feet, with 2,130 sq ft being air conditioned living space. The home has a 3 car garage and does not have a private swimming pool.
Directions to this property are as follows: See Remarks, Under Construction Driving Directions: From Fl-417 Toll S., Take Exit 2 Towards Us-192, Merge Onto I-4 W Via Ramp To Tampa, Take Exit 55 For Us-27 S, Stay On Us-27 S Until Dundee. Turn Left On Frederick Ave, Right On N8th St, Turn Right Center St., Left On E Main St., Right At 2nd Cross Onto 4th St. S. Destination Is On The Left.
Please contact your ZFC agent for more information about MLS# MFRS5123070 or any other homes for sale in Dundee or elsewhere in the Polk County area.
1015 Wisteria Way Price Calculator
The payment calculator figures for 1015 Wisteria Way should be used as an estimate only. Loan terms including interest rate, and required downpayment will vary with each lender and/or individual. RE taxes for this home for sale are estimated based on the actual property taxes for this property for the tax year 2024 which are $0 but will likely change when this home sells. These estimations are calculated from a list price of $424,950 and a 25% down payment and do not include homeowners insurance which will vary greatly depending on the home characteristics and location.
Recent Home Sales near 1015 Wisteria Way
MLS# MFRS5123070 Listing History
Public Transportation
Citrus Connection: E Main St & Third St
Citrus Connection: 307 E Main St
Citrus Connection: Dundee Town Hall
Citrus Connection: Dundee Police Station
Open House Schedule for 1015 WISTERIA WAY

Map of 1015 Wisteria Way Dundee FL 33838
The data relating to homes for sale or lease or other real estate for sale or for rent on the ZFC website comes in part from a cooperative data exchange program of the MLS in which this Broker participates. The real estate displayed may not be all of the homes in the database, or all of the properties listed with Brokers participating in the cooperative data exchange program. Homes for sale that are listed by Brokers other than this Broker are marked with either the listing Broker's name or the MLS name or a logo provided by the MLS and the details page about such properties includes the name of the listing Brokers. Information provided is thought to be reliable but is not guaranteed to be accurate; you are advised to verify facts that are important to you. No warranties, expressed or implied, are provided for the data herein, or for their use or interpretation by the user. ZFC, the Florida Association of Realtors and its cooperating Multiple Listing Services do not create, control or review the property data displayed herein and take no responsibility for the content of such records. Federal law including the fair housing act prohibits discrimination on the basis of race, color, religion, sex, handicap, familial status or national origin in the sale, rental or financing of housing. IDX information is provided exclusively for personal, non-commercial use, and may not be used for any purpose other than to identify prospective properties consumers may be interested in purchasing. Information is deemed reliable but not guaranteed.
-
- Palm Beach
- Boca Raton
- Highland Beach
- Delray Beach
- Boynton Beach
- Lake Worth
- Wellington
- West Palm Beach
- Palm Beach Gardens
- Jupiter
- Singer Island
- Broward
- Fort Lauderdale
- Parkland
- Coral Springs
- Davie
- Weston
- Plantation
- Pembroke Pines
- Southwest Ranches
- Hillsboro Beach
- Miami/Dade
- Miami
- Miami Beach
- Aventura
- Sunny Isles
- Bal Harbour
- Surfside
- Coral Gables
- Treasure Coast
- Port Saint Lucie
- Fort Pierce
- Palm City
- Jensen Beach
- Vero Beach
- Stuart
- Hobe Sound
- Gulf Coast
- Naples
- Marco Island
- Fort Myers
- Bonita Springs
- Sarasota
- Tampa
- Clearwater
