1080 BAYSHORE DRIVE ENGLEWOOD FL 34223
See Also...
Overview of 1080 Bayshore Dr
Yes
Don't miss this home for sale in Englewood Gardens! Under contract-accepting backup offers. Welcome to your private englewood retreat! This beautifully maintained 3-bedroom, 2-bath estate sits on nearly 1.5 acres in one of the most sought-after areas of englewood. From the moment you step inside, pride of ownership shines through every detail. The living area is filled with warm natural light, creating a cozy, inviting space your family will love. The chefs kitchen offers abundant counter space and cabinetry, perfect for storing all your culinary tools and entertaining essentials. The impressive primary suite features a stunning dressing room with custom his-and-hers built-in closets, while the updated primary bath blends modern style with everyday functionality. This home also offers incredible versatility with a spacious flex roomideal for a game room, home theater, or fitness spaceplus a private home office for those working remotely. In addition, a separate artist studio with abundant natural light provides the perfect environment for creativity, hobbies, or even a serene retreat. Step outside and youll find your own private paradise. The expansive covered lanai, finished with travertine pavers, overlooks a sparkling pool surrounded by lush greenery. With sunning areas and plenty of room to entertain, this is truly an entertainers dream. For your toys and tools, the property boasts a freestanding 3-bay garage with dual 50 amp plugs, a metal rv cover, and a large storage shed. The tropical landscaping blends majestic palms with native florida foliage, enhancing the estates natural beauty. Recent updates bring peace of mind, including a new roof (2023), pool pump (2021), hvac (2022), and pool heater (2024). The home is wired for a generator with an additional 50 amp plug to keep you cool while you are loading the rv. A 1-year home warranty is included for added confidence. Dont let this rare opportunity slip awayschedule your private showing today!
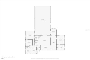
This lovely single family home was built in 1974 and features 3 bedrooms, and 2 full bathrooms. This home for sale is 2,634 square feet, with 2,634 sq ft being air conditioned living space. The home has a 3 car garage and has a private swimming pool.
Directions to this property are as follows: From 776, Turn On To Old Englewood Road. Turn Onto Bayshore Drive. Home Is On The Right.
Please contact your ZFC agent for more information about MLS# MFRD6143999 or any other homes for sale in Englewood or elsewhere in the Sarasota County area.
1080 Bayshore Dr Price Calculator
The payment calculator figures for 1080 Bayshore Dr should be used as an estimate only. Loan terms including interest rate, and required downpayment will vary with each lender and/or individual. RE taxes for this home for sale are estimated based on the actual property taxes for this property for the tax year 2024 which are $3,447 but will likely change when this home sells. These estimations are calculated from a list price of $874,000 and a 25% down payment and do not include homeowners insurance which will vary greatly depending on the home characteristics and location.
Recent Home Sales near 1080 Bayshore Dr
MLS# MFRD6143999 Listing History
Sarasota County Schools
Elementary School
Middle School
High School
Map of 1080 Bayshore Dr Englewood FL 34223
The data relating to homes for sale or lease or other real estate for sale or for rent on the ZFC website comes in part from a cooperative data exchange program of the MLS in which this Broker participates. The real estate displayed may not be all of the homes in the database, or all of the properties listed with Brokers participating in the cooperative data exchange program. Homes for sale that are listed by Brokers other than this Broker are marked with either the listing Broker's name or the MLS name or a logo provided by the MLS and the details page about such properties includes the name of the listing Brokers. Information provided is thought to be reliable but is not guaranteed to be accurate; you are advised to verify facts that are important to you. No warranties, expressed or implied, are provided for the data herein, or for their use or interpretation by the user. ZFC, the Florida Association of Realtors and its cooperating Multiple Listing Services do not create, control or review the property data displayed herein and take no responsibility for the content of such records. Federal law including the fair housing act prohibits discrimination on the basis of race, color, religion, sex, handicap, familial status or national origin in the sale, rental or financing of housing. IDX information is provided exclusively for personal, non-commercial use, and may not be used for any purpose other than to identify prospective properties consumers may be interested in purchasing. Information is deemed reliable but not guaranteed.
-
- Palm Beach
- Boca Raton
- Highland Beach
- Delray Beach
- Boynton Beach
- Lake Worth
- Wellington
- West Palm Beach
- Palm Beach Gardens
- Jupiter
- Singer Island
- Broward
- Fort Lauderdale
- Parkland
- Coral Springs
- Davie
- Weston
- Plantation
- Pembroke Pines
- Southwest Ranches
- Hillsboro Beach
- Miami/Dade
- Miami
- Miami Beach
- Aventura
- Sunny Isles
- Bal Harbour
- Surfside
- Coral Gables
- Treasure Coast
- Port Saint Lucie
- Fort Pierce
- Palm City
- Jensen Beach
- Vero Beach
- Stuart
- Hobe Sound
- Gulf Coast
- Naples
- Marco Island
- Fort Myers
- Bonita Springs
- Sarasota
- Tampa
- Clearwater





