1000 SE 4th St 209 Fort Lauderdale FL 33301





See Also...
Overview of 1000 Se 4th St 209
No
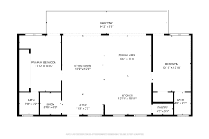
Don't miss this condo for sale in Riverview Garden! Rarely available spacious 2/2 split floor plan condo with beautiful garden view! Originally two 1/1 units that have been combined to a spacious layout featuring an updated kitchen, dedicated laundry room and large balcony overlooking the pool. Community sits right on the new river and is just 1 block off las olas! Easy walk/ride to the beach, close to everything downtown including a water taxi stop! Unit comes with 2 deeded parking spots - 1 of which is located next to the elevators up front plus 2 stacked storage units. New balconies coming soon and assessment already paid! Don't miss this opportunity to live in the heart of downtown fort lauderdale!
This lovely condo was built in 1956 and features 2 bedrooms, and 2 full bathrooms. This condo for sale is 1,240 square feet, with 1,240 sq ft being air conditioned living space. The condo does not have a private swimming pool, although there is a community pool in the complex for use by residents.
Directions to this property are as follows: Us1 To Broward Blvd East. Turn Right On 8th St And Head South Until 4th Street. Turn Right. Unit Is Facing 4th Street On 2nd Floor.
Please contact your ZFC agent for more information about MLS# FX-10529133 or any other condos for sale in Fort Lauderdale or elsewhere in the Broward County area.
1000 Se 4th St 209 Price Calculator
The payment calculator figures for 1000 Se 4th St 209 should be used as an estimate only. Loan terms including interest rate, and required downpayment will vary with each lender and/or individual. RE taxes for this condo for sale are estimated based on the actual property taxes for this property for the tax year 2024 which are $8,085 but will likely change when this condo sells. These estimations are calculated from a list price of $499,999 and a 25% down payment and do not include homeowners insurance which will vary greatly depending on the condo characteristics and location.
Recent Condo Sales near 1000 Se 4th St 209
MLS# FX-10529133 Listing History
Broward County Schools
Elementary School
Middle School
High School
Public Transportation
Broward County Transit:
US 441/Prospect R - Brow Term - US 1/Copans R
Broward County Transit:
US 441/Prospect R - Brow Term - US 1/Copans R
Broward County Transit:
US 441/Prospect R - Brow Term - US 1/Copans R
Broward County Transit:
US 441/Prospect R - Brow Term - US 1/Copans R
Broward County Transit:

Map of 1000 Se 4th St 209 Fort Lauderdale FL 33301
Similar Condominium Buildings Fort Lauderdale
The data relating to homes for sale or lease or other real estate for sale or for rent on the ZFC website comes in part from a cooperative data exchange program of the MLS in which this Broker participates. The real estate displayed may not be all of the homes in the database, or all of the properties listed with Brokers participating in the cooperative data exchange program. Homes for sale that are listed by Brokers other than this Broker are marked with either the listing Broker's name or the MLS name or a logo provided by the MLS and the details page about such properties includes the name of the listing Brokers. Information provided is thought to be reliable but is not guaranteed to be accurate; you are advised to verify facts that are important to you. No warranties, expressed or implied, are provided for the data herein, or for their use or interpretation by the user. ZFC, the Florida Association of Realtors and its cooperating Multiple Listing Services do not create, control or review the property data displayed herein and take no responsibility for the content of such records. Federal law including the fair housing act prohibits discrimination on the basis of race, color, religion, sex, handicap, familial status or national origin in the sale, rental or financing of housing. IDX information is provided exclusively for personal, non-commercial use, and may not be used for any purpose other than to identify prospective properties consumers may be interested in purchasing. Information is deemed reliable but not guaranteed.
-
- Palm Beach
- Boca Raton
- Highland Beach
- Delray Beach
- Boynton Beach
- Lake Worth
- Wellington
- West Palm Beach
- Palm Beach Gardens
- Jupiter
- Singer Island
- Broward
- Fort Lauderdale
- Parkland
- Coral Springs
- Davie
- Weston
- Plantation
- Pembroke Pines
- Southwest Ranches
- Hillsboro Beach
- Miami/Dade
- Miami
- Miami Beach
- Aventura
- Sunny Isles
- Bal Harbour
- Surfside
- Coral Gables
- Treasure Coast
- Port Saint Lucie
- Fort Pierce
- Palm City
- Jensen Beach
- Vero Beach
- Stuart
- Hobe Sound
- Gulf Coast
- Naples
- Marco Island
- Fort Myers
- Bonita Springs
- Sarasota
- Tampa
- Clearwater
