7102 100TH AVENUE GAINESVILLE FL 32609
Overview of 7102 Ne 100th Ave
No
Under contract-accepting backup offers. 4br/3ba on 5 acres in north gainesville priced below appraisal! don't miss this incredible opportunity! This spacious 4 bedroom, 3 bathroom home offers over 2,000 sq ft of living space on a beautiful 5-acre lot in north gainesville, just minutes from highway 301 for an easy commute while still enjoying a peaceful country setting. inside, you'll find a thoughtfully designed layout with two living areas, including a large family room, a dedicated dining room, and a modern kitchen with a center island perfect for cooking and entertaining. A new well was installed in 2024, adding peace of mind and long-term value. outside, the expansive acreage provides endless opportunities for outdoor activities, gardening, animals, or future additions. Whether you're looking for space to spread out or a quiet escape with room to grow, this property delivers. appraised this year and priced to sell at less than appraised value this is a rare find in todays market. Schedule your private tour today!
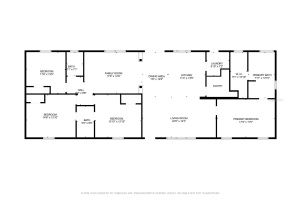
This lovely property was built in 2015 and features 4 bedrooms, and 3 full bathrooms. This property for sale is 2,052 square feet, with 2,052 sq ft being air conditioned living space. The property has a does not have a private swimming pool.
Directions to this property are as follows: From 301 North Left On Ne 79th Way Right On Ne 77th Court Left On Ne 80th Way Right On Ne 96th Ave/ Ne 81st Street Left On Ne 100th Ave Follow Ne 100th Ave For Approximately 1.5 Miles Through Gate And Home Located On Right With Sign.
Please contact your ZFC agent for more information about MLS# MFRGC534178 or any other properties for sale in Gainesville or elsewhere in the Alachua County area.
7102 Ne 100th Ave Price Calculator
The payment calculator figures for 7102 Ne 100th Ave should be used as an estimate only. Loan terms including interest rate, and required downpayment will vary with each lender and/or individual. RE taxes for this property for sale are estimated based on the actual property taxes for this property for the tax year 2024 which are $1,558 but will likely change when this property sells. These estimations are calculated from a list price of $267,000 and a 25% down payment and do not include homeowners insurance which will vary greatly depending on the property characteristics and location.
Recent Property Sales near 7102 Ne 100th Ave
MLS# MFRGC534178 Listing History
Map of 7102 Ne 100th Ave Gainesville FL 32609
Similar communities in Gainesville
The data relating to homes for sale or lease or other real estate for sale or for rent on the ZFC website comes in part from a cooperative data exchange program of the MLS in which this Broker participates. The real estate displayed may not be all of the homes in the database, or all of the properties listed with Brokers participating in the cooperative data exchange program. Homes for sale that are listed by Brokers other than this Broker are marked with either the listing Broker's name or the MLS name or a logo provided by the MLS and the details page about such properties includes the name of the listing Brokers. Information provided is thought to be reliable but is not guaranteed to be accurate; you are advised to verify facts that are important to you. No warranties, expressed or implied, are provided for the data herein, or for their use or interpretation by the user. ZFC, the Florida Association of Realtors and its cooperating Multiple Listing Services do not create, control or review the property data displayed herein and take no responsibility for the content of such records. Federal law including the fair housing act prohibits discrimination on the basis of race, color, religion, sex, handicap, familial status or national origin in the sale, rental or financing of housing. IDX information is provided exclusively for personal, non-commercial use, and may not be used for any purpose other than to identify prospective properties consumers may be interested in purchasing. Information is deemed reliable but not guaranteed.
-
- Palm Beach
- Boca Raton
- Highland Beach
- Delray Beach
- Boynton Beach
- Lake Worth
- Wellington
- West Palm Beach
- Palm Beach Gardens
- Jupiter
- Singer Island
- Broward
- Fort Lauderdale
- Parkland
- Coral Springs
- Davie
- Weston
- Plantation
- Pembroke Pines
- Southwest Ranches
- Hillsboro Beach
- Miami/Dade
- Miami
- Miami Beach
- Aventura
- Sunny Isles
- Bal Harbour
- Surfside
- Coral Gables
- Treasure Coast
- Port Saint Lucie
- Fort Pierce
- Palm City
- Jensen Beach
- Vero Beach
- Stuart
- Hobe Sound
- Gulf Coast
- Naples
- Marco Island
- Fort Myers
- Bonita Springs
- Sarasota
- Tampa
- Clearwater





