0 ROSE TRAIL HAWTHORNE FL 32640
Overview of 0 Rose Trail
No
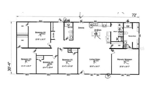
Pre-construction. To be built. Welcome to your dream home, that sits on over an acre lot! This beautifully designed 5-bedroom, 2-bathroom brand-new manufactured home offers a spacious, 2.35 acres of high and dry land with plenty of privacy and no hoa. Open floor plan ideal for modern living. From the moment you step inside, youll appreciate the high-quality finishes and attention to detail with vinyl flooring throughout. The spacious living room seamlessly flows into the kitchen and dining area, perfect for entertaining guests. The master bedroom is a serene retreat, with a luxurious en-suite master bath with shower and a walk-in closet. The chef-inspired kitchen is equipped with brand-new stainless steel appliances, featuring a central island with a breakfast bar, shaker-style cabinets, and a pantry. The added family room provides even more space to spread out, whether you need a home office, playroom, or second living area. Three additional bedrooms provide plenty of space for family members or guests. The second bathroom offers a tub, perfect for unwinding after a long day. Additionally, the utility room is a great space for laundry and storage, adding to the homes overall convenience. A short 2025-minute drive to the university of florida. Experience the best of "old florida" living in the peaceful outskirts of hawthorne. This property offers a rare blend of rural tranquility and outdoor adventure, located just minutes from the stunning little orange creek nature park and the famous 16-mile gainesville-hawthorne state trail. Outdoor enthusiasts will appreciate being surrounded by a boaters and fishermans paradise, with lake galilee, cowpen lake, and the expansive orange lake all nearby.
This lovely property was built in 2026 and features 5 bedrooms, and 2 full bathrooms. This property for sale is 2,184 square feet, with 2,184 sq ft being air conditioned living space. The property has a does not have a private swimming pool.
Directions to this property are as follows: Us-27 N/us Hwy 27 N Heading North. You Will Remain On Us-27 N, Continue Following Us-27 N As It Merges With Or Runs Parallel To Other Major Routes Heading Toward The Ocala Area. As You Move North Of Ocala, You Will Continue Toward The Hawthorne Area Via Us-301 N. From The Main Highway In Hawthorne, You Will Navigate Local Roads To Reach Rose Trail.
Please contact your ZFC agent for more information about MLS# MFRP4937409 or any other properties for sale in Hawthorne or elsewhere in the Putnam County area.
0 Rose Trail Price Calculator
The payment calculator figures for 0 Rose Trail should be used as an estimate only. Loan terms including interest rate, and required downpayment will vary with each lender and/or individual. RE taxes for this property for sale are estimated based on the actual property taxes for this property for the tax year 2025 which are $364 but will likely change when this property sells. These estimations are calculated from a list price of $260,900 and a 25% down payment and do not include homeowners insurance which will vary greatly depending on the property characteristics and location.
Recent Property Sales near 0 Rose Trail
MLS# MFRP4937409 Listing History
Map of 0 Rose Trail Hawthorne FL 32640
The data relating to homes for sale or lease or other real estate for sale or for rent on the ZFC website comes in part from a cooperative data exchange program of the MLS in which this Broker participates. The real estate displayed may not be all of the homes in the database, or all of the properties listed with Brokers participating in the cooperative data exchange program. Homes for sale that are listed by Brokers other than this Broker are marked with either the listing Broker's name or the MLS name or a logo provided by the MLS and the details page about such properties includes the name of the listing Brokers. Information provided is thought to be reliable but is not guaranteed to be accurate; you are advised to verify facts that are important to you. No warranties, expressed or implied, are provided for the data herein, or for their use or interpretation by the user. ZFC, the Florida Association of Realtors and its cooperating Multiple Listing Services do not create, control or review the property data displayed herein and take no responsibility for the content of such records. Federal law including the fair housing act prohibits discrimination on the basis of race, color, religion, sex, handicap, familial status or national origin in the sale, rental or financing of housing. IDX information is provided exclusively for personal, non-commercial use, and may not be used for any purpose other than to identify prospective properties consumers may be interested in purchasing. Information is deemed reliable but not guaranteed.
-
- Palm Beach
- Boca Raton
- Highland Beach
- Delray Beach
- Boynton Beach
- Lake Worth
- Wellington
- West Palm Beach
- Palm Beach Gardens
- Jupiter
- Singer Island
- Broward
- Fort Lauderdale
- Parkland
- Coral Springs
- Davie
- Weston
- Plantation
- Pembroke Pines
- Southwest Ranches
- Hillsboro Beach
- Miami/Dade
- Miami
- Miami Beach
- Aventura
- Sunny Isles
- Bal Harbour
- Surfside
- Coral Gables
- Treasure Coast
- Port Saint Lucie
- Fort Pierce
- Palm City
- Jensen Beach
- Vero Beach
- Stuart
- Hobe Sound
- Gulf Coast
- Naples
- Marco Island
- Fort Myers
- Bonita Springs
- Sarasota
- Tampa
- Clearwater





