2520 LIMEWOOD DRIVE HOLIDAY FL 34690
Overview of 2520 Limewood Dr
No
Under contract-accepting backup offers. One or more photo(s) has been virtually staged. Welcome to your slice of sunny and affordable florida living, in a highly desired x flood zone with no hoa and no cdd! Perfectly situated near all the best of the gulf coast, this charming and affordable home offers unbeatable value, efficiency, and flexibility. Whether youre seeking a full-time residence, seasonal getaway, or rental income opportunity, this property is ready to perform. Youll love the unbeatable location! Just minutes from the world-famous tarpon springs sponge docks, historic downtown tarpon springs, downtown new port richey, and some of floridas most beautiful gulf beaches, including sunset beach and fred howard park. Enjoy quick access to shopping, dining, entertainment, and tampa international airport for easy travel. Inside, discover a beautifully remodeled kitchen (2021) with upgraded kraftmaid cabinetry, granite countertops and backsplash, and beautiful matching ge appliances. All you need to bring is your preferred fridge! The warm, neutral flooring (2021) flows seamlessly through the main living areas, creating an inviting and move-in-ready atmosphere. Energy efficiency shines here, with whole-home solar panels that keep the average electric bill around $30 per month. The roof (2015) adds extra peace of mind plus this is a solid block home! Outside, enjoy the spacious backyard with two storage sheds, perfect for tools, hobbies, or extra storage space. Bring your golf cart or motorcycle! There's a perfect garage space just perfect for those too! whether youre investing, downsizing, or planting roots on the gulf coast, this home offers the freedom, savings, and location youve been looking for. No hoa. No cdd. X flood zone. Solar savings. Coastal convenience. This one checks all the boxes! Come see it today!
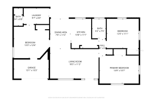
This lovely single family home was built in 1965 and features 3 bedrooms, and 1 full bathrooms plus 1 half bath. This home for sale is 1,336 square feet, with 976 sq ft being air conditioned living space. The home has a does not have a private swimming pool.
Directions to this property are as follows: Driving Directions: From Us Hwy 19 Go East Onto Darlington Rd; Left Onto Limewood Dr; Property Will Be On Your Right.
Please contact your ZFC agent for more information about MLS# MFRTB8443937 or any other homes for sale in Holiday or elsewhere in the Pasco County area.
2520 Limewood Dr Price Calculator
The payment calculator figures for 2520 Limewood Dr should be used as an estimate only. Loan terms including interest rate, and required downpayment will vary with each lender and/or individual. RE taxes for this home for sale are estimated based on the actual property taxes for this property for the tax year 2024 which are $533 but will likely change when this home sells. These estimations are calculated from a list price of $190,000 and a 25% down payment and do not include homeowners insurance which will vary greatly depending on the home characteristics and location.
Recent Home Sales near 2520 Limewood Dr
MLS# MFRTB8443937 Listing History
Pasco County Schools
Elementary School
Middle School
High School
Public Transportation
Pasco County Public Transportation:
Pasco County Public Transportation:
Pasco County Public Transportation:
Pasco County Public Transportation:
Pasco County Public Transportation:
Map of 2520 Limewood Dr Holiday FL 34690
The data relating to homes for sale or lease or other real estate for sale or for rent on the ZFC website comes in part from a cooperative data exchange program of the MLS in which this Broker participates. The real estate displayed may not be all of the homes in the database, or all of the properties listed with Brokers participating in the cooperative data exchange program. Homes for sale that are listed by Brokers other than this Broker are marked with either the listing Broker's name or the MLS name or a logo provided by the MLS and the details page about such properties includes the name of the listing Brokers. Information provided is thought to be reliable but is not guaranteed to be accurate; you are advised to verify facts that are important to you. No warranties, expressed or implied, are provided for the data herein, or for their use or interpretation by the user. ZFC, the Florida Association of Realtors and its cooperating Multiple Listing Services do not create, control or review the property data displayed herein and take no responsibility for the content of such records. Federal law including the fair housing act prohibits discrimination on the basis of race, color, religion, sex, handicap, familial status or national origin in the sale, rental or financing of housing. IDX information is provided exclusively for personal, non-commercial use, and may not be used for any purpose other than to identify prospective properties consumers may be interested in purchasing. Information is deemed reliable but not guaranteed.
-
- Palm Beach
- Boca Raton
- Highland Beach
- Delray Beach
- Boynton Beach
- Lake Worth
- Wellington
- West Palm Beach
- Palm Beach Gardens
- Jupiter
- Singer Island
- Broward
- Fort Lauderdale
- Parkland
- Coral Springs
- Davie
- Weston
- Plantation
- Pembroke Pines
- Southwest Ranches
- Hillsboro Beach
- Miami/Dade
- Miami
- Miami Beach
- Aventura
- Sunny Isles
- Bal Harbour
- Surfside
- Coral Gables
- Treasure Coast
- Port Saint Lucie
- Fort Pierce
- Palm City
- Jensen Beach
- Vero Beach
- Stuart
- Hobe Sound
- Gulf Coast
- Naples
- Marco Island
- Fort Myers
- Bonita Springs
- Sarasota
- Tampa
- Clearwater





