2306 Van Buren St Hollywood FL 33020 (A11985921)
See Also...
Overview of Parcel 514216012640
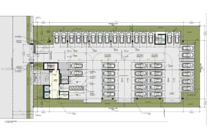
Rare development opportunity at 2306 van buren st with approved plans for a 36-unit project. The property is zoned dh-2, allowing for strong redevelopment potential in a growing area. The unit mix consists of 18 one-bedroom units, 12 two-bedroom units, and 6 three-bedroom units, offering a well-balanced layout that supports strong rental demand. The property is currently occupied with all tenants on month-to-month leases, providing flexibility for redevelopment while generating in-place income. With a pro forma gross operating income of $1,268,080, this site presents a compelling opportunity for developers seeking to capitalize on a high-upside project. Ideally located approximately 3 minutes to downtown hollywood and young circle, 5 minutes to us-1, 10 minutes to fort lauderdalehollywood international airport, and 10 minutes to the beach, offering excellent accessibility and strong rental demand drivers.
Please contact your ZFC agent for more information about MLS# AX-11985921 or any other land for sale in Hollywood or elsewhere in the Broward County area.
2306 Van Buren St Price Calculator
The payment calculator figures for Parcel 514216012640 should be used as an estimate only. Loan terms including interest rate, and required downpayment will vary with each lender and/or individual. RE taxes for this land for sale are estimated based on the actual property taxes for this property for the tax year 2025 which are $29,525 but will likely change when this land sells. These estimations are calculated from a list price of $2,000,000 and a 25% down payment and do not include homeowners insurance which will vary greatly depending on the land characteristics and location.
Recent Land Sales near 2306 Van Buren St
MLS# AX-11985921 Listing History
Map of 2306 Van Buren St Hollywood FL 33020
Similar communities in Hollywood
The data relating to homes for sale or lease or other real estate for sale or for rent on the ZFC website comes in part from a cooperative data exchange program of the MLS in which this Broker participates. The real estate displayed may not be all of the homes in the database, or all of the properties listed with Brokers participating in the cooperative data exchange program. Homes for sale that are listed by Brokers other than this Broker are marked with either the listing Broker's name or the MLS name or a logo provided by the MLS and the details page about such properties includes the name of the listing Brokers. Information provided is thought to be reliable but is not guaranteed to be accurate; you are advised to verify facts that are important to you. No warranties, expressed or implied, are provided for the data herein, or for their use or interpretation by the user. ZFC, the Florida Association of Realtors and its cooperating Multiple Listing Services do not create, control or review the property data displayed herein and take no responsibility for the content of such records. Federal law including the fair housing act prohibits discrimination on the basis of race, color, religion, sex, handicap, familial status or national origin in the sale, rental or financing of housing. IDX information is provided exclusively for personal, non-commercial use, and may not be used for any purpose other than to identify prospective properties consumers may be interested in purchasing. Information is deemed reliable but not guaranteed.
-
- Palm Beach
- Boca Raton
- Highland Beach
- Delray Beach
- Boynton Beach
- Lake Worth
- Wellington
- West Palm Beach
- Palm Beach Gardens
- Jupiter
- Singer Island
- Broward
- Fort Lauderdale
- Parkland
- Coral Springs
- Davie
- Weston
- Plantation
- Pembroke Pines
- Southwest Ranches
- Hillsboro Beach
- Miami/Dade
- Miami
- Miami Beach
- Aventura
- Sunny Isles
- Bal Harbour
- Surfside
- Coral Gables
- Treasure Coast
- Port Saint Lucie
- Fort Pierce
- Palm City
- Jensen Beach
- Vero Beach
- Stuart
- Hobe Sound
- Gulf Coast
- Naples
- Marco Island
- Fort Myers
- Bonita Springs
- Sarasota
- Tampa
- Clearwater


