607 EMERALD LANE HOLMES BEACH FL 34217
See Also...
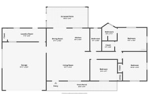
Overview of 607 Emerald Ln
No
Don't miss this home for sale in Key Royale! One or more photo(s) has been virtually staged. New price adjustment-welcome to your piece of paradise! This newly remodeled florida style home is perfect for your winter getaway or a cozy year round coastal retreat. The kitchen boasts all new appliances, countertops, and cabinets. New vinyl flooring throughout the home, along with interior/exterior paint, and a brand new metal roof 2025. Large utility storage room for all of your beach and/or boating accessories. Extend your living space outdoors to the covered and screened in lanai or the newly pavered open patio to enjoy the florida weather. Room for a pool to add to the ambiance of your waterfront bungalow. Don't miss this opportunity to relax in your own island retreat. Key Royale is a voluntary resident owner association. Minutes to the beaches, shopping, and restaurants.
This luxury single family home was built in 1969 and features 3 bedrooms, and 2 full bathrooms. This home for sale is 2,090 square feet, with 1,196 sq ft being air conditioned living space. The home has a 2 car garage and does not have a private swimming pool.
Directions to this property are as follows: N On Marina Drive. Turn Right Onto Key Royale Drive. Turn Left Onto Emerald Ln, House Down On Right.
Please contact your ZFC agent for more information about MLS# MFRTB8452646 or any other homes for sale in Holmes Beach or elsewhere in the Manatee County area.
607 Emerald Ln Price Calculator
The payment calculator figures for 607 Emerald Ln should be used as an estimate only. Loan terms including interest rate, and required downpayment will vary with each lender and/or individual. RE taxes for this home for sale are estimated based on the actual property taxes for this property for the tax year 2024 which are $17,429 but will likely change when this home sells. These estimations are calculated from a list price of $1,175,000 and a 25% down payment and do not include homeowners insurance which will vary greatly depending on the home characteristics and location.
Recent Home Sales near 607 Emerald Ln
MLS# MFRTB8452646 Listing History
Public Transportation
Manatee County Area Transit:
Manatee County Area Transit:
Manatee County Area Transit:
Manatee County Area Transit:
Manatee County Area Transit:
Map of 607 Emerald Ln Holmes Beach FL 34217
The data relating to homes for sale or lease or other real estate for sale or for rent on the ZFC website comes in part from a cooperative data exchange program of the MLS in which this Broker participates. The real estate displayed may not be all of the homes in the database, or all of the properties listed with Brokers participating in the cooperative data exchange program. Homes for sale that are listed by Brokers other than this Broker are marked with either the listing Broker's name or the MLS name or a logo provided by the MLS and the details page about such properties includes the name of the listing Brokers. Information provided is thought to be reliable but is not guaranteed to be accurate; you are advised to verify facts that are important to you. No warranties, expressed or implied, are provided for the data herein, or for their use or interpretation by the user. ZFC, the Florida Association of Realtors and its cooperating Multiple Listing Services do not create, control or review the property data displayed herein and take no responsibility for the content of such records. Federal law including the fair housing act prohibits discrimination on the basis of race, color, religion, sex, handicap, familial status or national origin in the sale, rental or financing of housing. IDX information is provided exclusively for personal, non-commercial use, and may not be used for any purpose other than to identify prospective properties consumers may be interested in purchasing. Information is deemed reliable but not guaranteed.
-
- Palm Beach
- Boca Raton
- Highland Beach
- Delray Beach
- Boynton Beach
- Lake Worth
- Wellington
- West Palm Beach
- Palm Beach Gardens
- Jupiter
- Singer Island
- Broward
- Fort Lauderdale
- Parkland
- Coral Springs
- Davie
- Weston
- Plantation
- Pembroke Pines
- Southwest Ranches
- Hillsboro Beach
- Miami/Dade
- Miami
- Miami Beach
- Aventura
- Sunny Isles
- Bal Harbour
- Surfside
- Coral Gables
- Treasure Coast
- Port Saint Lucie
- Fort Pierce
- Palm City
- Jensen Beach
- Vero Beach
- Stuart
- Hobe Sound
- Gulf Coast
- Naples
- Marco Island
- Fort Myers
- Bonita Springs
- Sarasota
- Tampa
- Clearwater





