186 Dove Creek Dr Key Largo FL 33070 (A11944743)
See Also...
Overview of Parcel 00449600-000000
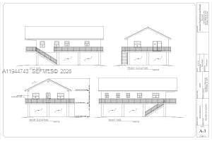
Active permit! Oceanside upper keys active permit for a 3/2 single-family home with a large balcony overlooking the ocean. The plans for this home include an elevated concrete block structure with pilings already in place/ building plans can be modified. It is surrounded by a protected hardwood hammock that provides privacy for this property. Oceanfront harry harris park is right down the street. The park has a community boat ramp for ocean access, beach, playground, basketball court, and softball fields for fun in the sun. The vacant lot adjacent to this listing is also available mls#618068 all offers considered. Please contact the listing agent.
Please contact your ZFC agent for more information about MLS# AX-11944743 or any other land for sale in Key Largo or elsewhere in the Monroe County area.
186 Dove Creek Dr Price Calculator
The payment calculator figures for Parcel 00449600-000000 should be used as an estimate only. Loan terms including interest rate, and required downpayment will vary with each lender and/or individual. RE taxes for this land for sale are estimated based on the actual property taxes for this property for the tax year 2025 which are $1,122 but will likely change when this land sells. These estimations are calculated from a list price of $425,000 and a 25% down payment and do not include homeowners insurance which will vary greatly depending on the land characteristics and location.
Recent Land Sales near 186 Dove Creek Dr
MLS# AX-11944743 Listing History
Map of 186 Dove Creek Dr Key Largo FL 33070
The data relating to homes for sale or lease or other real estate for sale or for rent on the ZFC website comes in part from a cooperative data exchange program of the MLS in which this Broker participates. The real estate displayed may not be all of the homes in the database, or all of the properties listed with Brokers participating in the cooperative data exchange program. Homes for sale that are listed by Brokers other than this Broker are marked with either the listing Broker's name or the MLS name or a logo provided by the MLS and the details page about such properties includes the name of the listing Brokers. Information provided is thought to be reliable but is not guaranteed to be accurate; you are advised to verify facts that are important to you. No warranties, expressed or implied, are provided for the data herein, or for their use or interpretation by the user. ZFC, the Florida Association of Realtors and its cooperating Multiple Listing Services do not create, control or review the property data displayed herein and take no responsibility for the content of such records. Federal law including the fair housing act prohibits discrimination on the basis of race, color, religion, sex, handicap, familial status or national origin in the sale, rental or financing of housing. IDX information is provided exclusively for personal, non-commercial use, and may not be used for any purpose other than to identify prospective properties consumers may be interested in purchasing. Information is deemed reliable but not guaranteed.
-
- Palm Beach
- Boca Raton
- Highland Beach
- Delray Beach
- Boynton Beach
- Lake Worth
- Wellington
- West Palm Beach
- Palm Beach Gardens
- Jupiter
- Singer Island
- Broward
- Fort Lauderdale
- Parkland
- Coral Springs
- Davie
- Weston
- Plantation
- Pembroke Pines
- Southwest Ranches
- Hillsboro Beach
- Miami/Dade
- Miami
- Miami Beach
- Aventura
- Sunny Isles
- Bal Harbour
- Surfside
- Coral Gables
- Treasure Coast
- Port Saint Lucie
- Fort Pierce
- Palm City
- Jensen Beach
- Vero Beach
- Stuart
- Hobe Sound
- Gulf Coast
- Naples
- Marco Island
- Fort Myers
- Bonita Springs
- Sarasota
- Tampa
- Clearwater


