3428 SUMMERWOOD WAY LAKELAND FL 33812
Overview of 3428 Summerwood Way
Yes
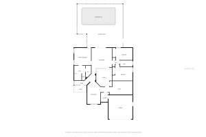
Welcome to this beautifully maintained 3-bedroom, 2-bath split-plan pool home that offers the perfect blend of comfort and style. The open floor plan creates a bright, airy feel, ideal for both everyday living and entertaining. The kitchen features granite countertops, ample cabinetry, and stainless steel appliances. There is a separate dining room, the perfect spot for entertaining. The living room is spacious and bright. The primary suite offers plenty of space and features an en-suite bathroom with dual sink vanity, stand up shower, and a large walk in closet. The remaining bedrooms are generously sized and share the main hall bathroom that features a granite top vanity and a tub/shower combo. The home also features an indoor laundry room with storage cabinets. Step outside to your private pool and enjoy florida living at its bestperfect for relaxing or hosting gatherings. Youll also find a hot tub and a fully fenced in yard. This home is move-in ready and designed for modern living. Schedule your private showing today!
This lovely single family home was built in 1996 and features 3 bedrooms, and 2 full bathrooms. This home for sale is 2,745 square feet, with 2,009 sq ft being air conditioned living space. The home has a 2 car garage and has a private swimming pool.
Directions to this property are as follows: 98 S. To Clubhouse Rd And Turn Right. Follow To Banana Lake Rd And Turn Left. Follow To Summerwood Way And Turn Left. Home Will Be On The Left.
Please contact your ZFC agent for more information about MLS# MFRL4958316 or any other homes for sale in Lakeland or elsewhere in the Polk County area.
3428 Summerwood Way Price Calculator
The payment calculator figures for 3428 Summerwood Way should be used as an estimate only. Loan terms including interest rate, and required downpayment will vary with each lender and/or individual. RE taxes for this home for sale are estimated based on the actual property taxes for this property for the tax year 2024 which are $3,258 but will likely change when this home sells. These estimations are calculated from a list price of $389,500 and a 25% down payment and do not include homeowners insurance which will vary greatly depending on the home characteristics and location.
Recent Home Sales near 3428 Summerwood Way
MLS# MFRL4958316 Listing History
Open House Schedule for 3428 SUMMERWOOD WAY
Map of 3428 Summerwood Way Lakeland FL 33812
Similar communities in Lakeland
The data relating to homes for sale or lease or other real estate for sale or for rent on the ZFC website comes in part from a cooperative data exchange program of the MLS in which this Broker participates. The real estate displayed may not be all of the homes in the database, or all of the properties listed with Brokers participating in the cooperative data exchange program. Homes for sale that are listed by Brokers other than this Broker are marked with either the listing Broker's name or the MLS name or a logo provided by the MLS and the details page about such properties includes the name of the listing Brokers. Information provided is thought to be reliable but is not guaranteed to be accurate; you are advised to verify facts that are important to you. No warranties, expressed or implied, are provided for the data herein, or for their use or interpretation by the user. ZFC, the Florida Association of Realtors and its cooperating Multiple Listing Services do not create, control or review the property data displayed herein and take no responsibility for the content of such records. Federal law including the fair housing act prohibits discrimination on the basis of race, color, religion, sex, handicap, familial status or national origin in the sale, rental or financing of housing. IDX information is provided exclusively for personal, non-commercial use, and may not be used for any purpose other than to identify prospective properties consumers may be interested in purchasing. Information is deemed reliable but not guaranteed.
-
- Palm Beach
- Boca Raton
- Highland Beach
- Delray Beach
- Boynton Beach
- Lake Worth
- Wellington
- West Palm Beach
- Palm Beach Gardens
- Jupiter
- Singer Island
- Broward
- Fort Lauderdale
- Parkland
- Coral Springs
- Davie
- Weston
- Plantation
- Pembroke Pines
- Southwest Ranches
- Hillsboro Beach
- Miami/Dade
- Miami
- Miami Beach
- Aventura
- Sunny Isles
- Bal Harbour
- Surfside
- Coral Gables
- Treasure Coast
- Port Saint Lucie
- Fort Pierce
- Palm City
- Jensen Beach
- Vero Beach
- Stuart
- Hobe Sound
- Gulf Coast
- Naples
- Marco Island
- Fort Myers
- Bonita Springs
- Sarasota
- Tampa
- Clearwater





