5717 LAKE GROVE DRIVE LAKELAND FL 33809
Overview of 5717 Lake Grove Dr
No
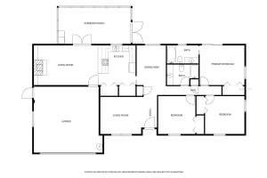
On lake gibson canal!!! Canal-front with direct access to lake gibson in north lakeland! This 3 bedroom 2 bath block home offers nearly 2,000 square feet of living space, a fenced yard with access to lake gibson, in an established neighborhood with no hoa! This is an opportunity for a buyer ready to renovate and make it their own or build equity! Waterfront homes of this size at this price point are hard to come by! Floor-plan offers good size bedrooms, a living room, separate dining room, plus a cozy family room with fireplace. Additionally, there's a florida room with tons of natural lighting. The property does tlc and updates, including an older roof and hot water heater, inoperable hvac and garage door. Being sold as-is and priced accordingly. Located between orlando and tampa and just minutes from i-4. If you've been searching for waterfront potential under $330,000 in lakeland... This is one to see!
This lovely single family home was built in 1976 and features 3 bedrooms, and 2 full bathrooms. This home for sale is 2,191 square feet, with 1,960 sq ft being air conditioned living space. The home has a 2 car garage and does not have a private swimming pool.
Directions to this property are as follows: From W Daugherty Turn Left Onto Lake Grove Drive, Home Is On Your Left.
Please contact your ZFC agent for more information about MLS# MFRL4959880 or any other homes for sale in Lakeland or elsewhere in the Polk County area.
5717 Lake Grove Dr Price Calculator
The payment calculator figures for 5717 Lake Grove Dr should be used as an estimate only. Loan terms including interest rate, and required downpayment will vary with each lender and/or individual. RE taxes for this home for sale are estimated based on the actual property taxes for this property for the tax year 2025 which are $2,483 but will likely change when this home sells. These estimations are calculated from a list price of $324,900 and a 25% down payment and do not include homeowners insurance which will vary greatly depending on the home characteristics and location.
Recent Home Sales near 5717 Lake Grove Dr
MLS# MFRL4959880 Listing History
Public Transportation
Citrus Connection: 6108 US 98 N
Citrus Connection: US 98 N & Gib-Galloway Rd
Citrus Connection: US 98 N & Yale St
Citrus Connection: Walmart at US 98 N
Citrus Connection: 5135 US 98 N
Map of 5717 Lake Grove Dr Lakeland FL 33809
Similar communities in Lakeland
The data relating to homes for sale or lease or other real estate for sale or for rent on the ZFC website comes in part from a cooperative data exchange program of the MLS in which this Broker participates. The real estate displayed may not be all of the homes in the database, or all of the properties listed with Brokers participating in the cooperative data exchange program. Homes for sale that are listed by Brokers other than this Broker are marked with either the listing Broker's name or the MLS name or a logo provided by the MLS and the details page about such properties includes the name of the listing Brokers. Information provided is thought to be reliable but is not guaranteed to be accurate; you are advised to verify facts that are important to you. No warranties, expressed or implied, are provided for the data herein, or for their use or interpretation by the user. ZFC, the Florida Association of Realtors and its cooperating Multiple Listing Services do not create, control or review the property data displayed herein and take no responsibility for the content of such records. Federal law including the fair housing act prohibits discrimination on the basis of race, color, religion, sex, handicap, familial status or national origin in the sale, rental or financing of housing. IDX information is provided exclusively for personal, non-commercial use, and may not be used for any purpose other than to identify prospective properties consumers may be interested in purchasing. Information is deemed reliable but not guaranteed.
-
- Palm Beach
- Boca Raton
- Highland Beach
- Delray Beach
- Boynton Beach
- Lake Worth
- Wellington
- West Palm Beach
- Palm Beach Gardens
- Jupiter
- Singer Island
- Broward
- Fort Lauderdale
- Parkland
- Coral Springs
- Davie
- Weston
- Plantation
- Pembroke Pines
- Southwest Ranches
- Hillsboro Beach
- Miami/Dade
- Miami
- Miami Beach
- Aventura
- Sunny Isles
- Bal Harbour
- Surfside
- Coral Gables
- Treasure Coast
- Port Saint Lucie
- Fort Pierce
- Palm City
- Jensen Beach
- Vero Beach
- Stuart
- Hobe Sound
- Gulf Coast
- Naples
- Marco Island
- Fort Myers
- Bonita Springs
- Sarasota
- Tampa
- Clearwater





