5000 N Ocean Blvd APT 807 Lauderdale-By-The-Sea FL 33308 Sold 07/19/2023
See Also...
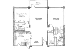
Overview of 5000 N Ocean Blvd 807
No
Don't miss this condo for sale in Sea Ranch Club! Oh my, what a view! This direct oceanfront condo offers south & east sweeping ocean views. The condo is located towards the east end of building b on the south side. Perfectly located in a mid-level floor offering stunning ocean, beach, pool, & garden views. It offers the convenience & privacy of split bedrooms. Impact windows & doors. Sea ranch b is nestled in the heart of lauderdale by the sea & truly offers resort style living. Lease day one. Outside amenities: 14 acres of deep beachfront, 3 heated saltwater pools, 3 open-air kitchens w/gas grills, 2 herb gardens, beachfront charcoal grills w/lighted prep & picnic tables, 8 oceanside tennis & pickleball courts, 2 pet parks, & putting green. Inside amenitites: 3 ev charging stations, 24-hour security, gated garages & car wash area.
This lovely condo was built in 1979 and features 2 bedrooms, and 2 full bathrooms. This condo for sale is 1,433 square feet, with 1,433 sq ft being air conditioned living space. The condo1 assigned parking garage spot and does not have a private swimming pool, although there is a community pool in the complex for use by residents.
Directions to this property are as follows: Sea Ranch Club A Is 1/4 Mile North Of Commercial Boulevard On A1a Beachside. The Building Is Just North Of The Publix Shopping Center. Park In Front Of The Building Or Along Front Wall.
Please contact your ZFC agent for more information about MLS# FX-10372242 or any other condos for sale in Lauderdale By The Sea or elsewhere in the Broward County area.
5000 N Ocean Blvd 807 Price Calculator
The payment calculator figures for 5000 N Ocean Blvd 807 should be used as an estimate only. Loan terms including interest rate, and required downpayment will vary with each lender and/or individual. RE taxes for this condo for sale are estimated based on the actual property taxes for this property for the tax year 2022 which are $10,310 but will likely change when this condo sells. These estimations are calculated from a list price of $829,000 and a 25% down payment and do not include homeowners insurance which will vary greatly depending on the condo characteristics and location.
Recent Condo Sales near 5000 N Ocean Blvd 807
MLS# FX-10372242 Listing History
Broward County Schools
Elementary School
Middle School
High School
Public Transportation
Broward County Transit:
US 441/Prospect R - Brow Term - US 1/Copans R
Broward County Transit:
US 441/Prospect R - Brow Term - US 1/Copans R
Broward County Transit:
US 441/Prospect R - Brow Term - US 1/Copans R
Broward County Transit:
US 441/Prospect R - Brow Term - US 1/Copans R
Broward County Transit:
Map of 5000 N Ocean Blvd 807 Lauderdale By The Sea FL 33308
Similar Condominium Buildings Lauderdale By The Sea
The data relating to homes for sale or lease or other real estate for sale or for rent on the ZFC website comes in part from a cooperative data exchange program of the MLS in which this Broker participates. The real estate displayed may not be all of the homes in the database, or all of the properties listed with Brokers participating in the cooperative data exchange program. Homes for sale that are listed by Brokers other than this Broker are marked with either the listing Broker's name or the MLS name or a logo provided by the MLS and the details page about such properties includes the name of the listing Brokers. Information provided is thought to be reliable but is not guaranteed to be accurate; you are advised to verify facts that are important to you. No warranties, expressed or implied, are provided for the data herein, or for their use or interpretation by the user. ZFC, the Florida Association of Realtors and its cooperating Multiple Listing Services do not create, control or review the property data displayed herein and take no responsibility for the content of such records. Federal law including the fair housing act prohibits discrimination on the basis of race, color, religion, sex, handicap, familial status or national origin in the sale, rental or financing of housing. IDX information is provided exclusively for personal, non-commercial use, and may not be used for any purpose other than to identify prospective properties consumers may be interested in purchasing. Information is deemed reliable but not guaranteed.
-
- Palm Beach
- Boca Raton
- Highland Beach
- Delray Beach
- Boynton Beach
- Lake Worth
- Wellington
- West Palm Beach
- Palm Beach Gardens
- Jupiter
- Singer Island
- Broward
- Fort Lauderdale
- Parkland
- Coral Springs
- Davie
- Weston
- Plantation
- Pembroke Pines
- Southwest Ranches
- Hillsboro Beach
- Miami/Dade
- Miami
- Miami Beach
- Aventura
- Sunny Isles
- Bal Harbour
- Surfside
- Coral Gables
- Treasure Coast
- Port Saint Lucie
- Fort Pierce
- Palm City
- Jensen Beach
- Vero Beach
- Stuart
- Hobe Sound
- Gulf Coast
- Naples
- Marco Island
- Fort Myers
- Bonita Springs
- Sarasota
- Tampa
- Clearwater





