MFRG5110764
Overview of MLS#MFRG5110764
No
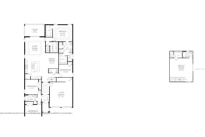
One or more photo(s) has been virtually staged. Under construction. "Award winning anna maria with bonus" home offers a spacious and well-designed floor plan that includes both a main level and a bonus upper level. On the first floor, the living room measures 16x18.8, providing ample space for relaxation and entertainment. Adjacent to it, the dining room is sized at 10.8x12.8, perfect for family meals and gatherings. The kitchen, which is a generous 15x17, serves as a central hub for cooking and casual dining. Take a refreshing dip in the community pool, let the family unleash their energy at the playgrounds, or socialize with neighbors at the inviting clubhouse. Surrounded by lush parks and pristine green spaces, the hills of minneola offer a sanctuary of tranquility amidst the conveniences of modern living.
This lovely single family home was built in 2026 and features 4 bedrooms, and 3 full bathrooms plus 1 half bath. This home for sale is 3,200 square feet, with 2,688 sq ft being air conditioned living space. The home has a 2 car garage and does not have a private swimming pool, although there is a community pool in the complex for use by residents.
Please contact your ZFC agent for more information about MLS# MFRG5110764 or any other homes for sale in Minneola or elsewhere in the Lake County area.
Price Calculator
The payment calculator figures for MLS#MFRG5110764 should be used as an estimate only. Loan terms including interest rate, and required downpayment will vary with each lender and/or individual. RE taxes for this home for sale are estimated based on the actual property taxes for this property for the tax year 2025 which are $375 but will likely change when this home sells. These estimations are calculated from a list price of $610,000 and a 25% down payment and do not include homeowners insurance which will vary greatly depending on the home characteristics and location.
Recent Home Sales near
MLS# MFRG5110764 Listing History
Similar communities in Minneola
The data relating to homes for sale or lease or other real estate for sale or for rent on the ZFC website comes in part from a cooperative data exchange program of the MLS in which this Broker participates. The real estate displayed may not be all of the homes in the database, or all of the properties listed with Brokers participating in the cooperative data exchange program. Homes for sale that are listed by Brokers other than this Broker are marked with either the listing Broker's name or the MLS name or a logo provided by the MLS and the details page about such properties includes the name of the listing Brokers. Information provided is thought to be reliable but is not guaranteed to be accurate; you are advised to verify facts that are important to you. No warranties, expressed or implied, are provided for the data herein, or for their use or interpretation by the user. ZFC, the Florida Association of Realtors and its cooperating Multiple Listing Services do not create, control or review the property data displayed herein and take no responsibility for the content of such records. Federal law including the fair housing act prohibits discrimination on the basis of race, color, religion, sex, handicap, familial status or national origin in the sale, rental or financing of housing. IDX information is provided exclusively for personal, non-commercial use, and may not be used for any purpose other than to identify prospective properties consumers may be interested in purchasing. Information is deemed reliable but not guaranteed.
-
- Palm Beach
- Boca Raton
- Highland Beach
- Delray Beach
- Boynton Beach
- Lake Worth
- Wellington
- West Palm Beach
- Palm Beach Gardens
- Jupiter
- Singer Island
- Broward
- Fort Lauderdale
- Parkland
- Coral Springs
- Davie
- Weston
- Plantation
- Pembroke Pines
- Southwest Ranches
- Hillsboro Beach
- Miami/Dade
- Miami
- Miami Beach
- Aventura
- Sunny Isles
- Bal Harbour
- Surfside
- Coral Gables
- Treasure Coast
- Port Saint Lucie
- Fort Pierce
- Palm City
- Jensen Beach
- Vero Beach
- Stuart
- Hobe Sound
- Gulf Coast
- Naples
- Marco Island
- Fort Myers
- Bonita Springs
- Sarasota
- Tampa
- Clearwater





