2220 KEYSTONE PASS BOULEVARD MINNEOLA FL 34715
See Also...
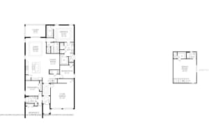
Overview of 2220 Keystone Pass Blvd
No
Don't miss this home for sale in The Hills! Under construction. Sample images this stunning 4-bedroom, 3.5-bath anna maria with bonus. The versatile bonus room provides extra space for a media room, playroom, or home officewhatever suits your lifestyle. Located in a vibrant master-planned community, residents enjoy access to a 7,000 sq. Ft. Clubhouse, state-of-the-art fitness center, basketball and pickleball courts, two resort-style pools, two dog parks, and multiple playgrounds. Just minutes from major theme parks, hospitals, shopping, dining, and medical offices, this home offers the perfect balance of tranquility and convenience.
This lovely single family home was built in 2026 and features 4 bedrooms, and 3 full bathrooms plus 1 half bath. This home for sale is 3,354 square feet, with 2,688 sq ft being air conditioned living space. The home has a 2 car garage and does not have a private swimming pool, although there is a community pool in the complex for use by residents.
Directions to this property are as follows: Turnpike To Minneola Exit, Turn N On Hancock Rd And The Neighborhood Is On Your Right.
Please contact your ZFC agent for more information about MLS# MFRG5104674 or any other homes for sale in Minneola or elsewhere in the Lake County area.
2220 Keystone Pass Blvd Price Calculator
The payment calculator figures for 2220 Keystone Pass Blvd should be used as an estimate only. Loan terms including interest rate, and required downpayment will vary with each lender and/or individual. RE taxes for this home for sale are estimated based on the actual property taxes for this property for the tax year 2024 which are $375 but will likely change when this home sells. These estimations are calculated from a list price of $612,780 and a 25% down payment and do not include homeowners insurance which will vary greatly depending on the home characteristics and location.
Recent Home Sales near 2220 Keystone Pass Blvd
MLS# MFRG5104674 Listing History
Map of 2220 Keystone Pass Blvd Minneola FL 34715
The data relating to homes for sale or lease or other real estate for sale or for rent on the ZFC website comes in part from a cooperative data exchange program of the MLS in which this Broker participates. The real estate displayed may not be all of the homes in the database, or all of the properties listed with Brokers participating in the cooperative data exchange program. Homes for sale that are listed by Brokers other than this Broker are marked with either the listing Broker's name or the MLS name or a logo provided by the MLS and the details page about such properties includes the name of the listing Brokers. Information provided is thought to be reliable but is not guaranteed to be accurate; you are advised to verify facts that are important to you. No warranties, expressed or implied, are provided for the data herein, or for their use or interpretation by the user. ZFC, the Florida Association of Realtors and its cooperating Multiple Listing Services do not create, control or review the property data displayed herein and take no responsibility for the content of such records. Federal law including the fair housing act prohibits discrimination on the basis of race, color, religion, sex, handicap, familial status or national origin in the sale, rental or financing of housing. IDX information is provided exclusively for personal, non-commercial use, and may not be used for any purpose other than to identify prospective properties consumers may be interested in purchasing. Information is deemed reliable but not guaranteed.
-
- Palm Beach
- Boca Raton
- Highland Beach
- Delray Beach
- Boynton Beach
- Lake Worth
- Wellington
- West Palm Beach
- Palm Beach Gardens
- Jupiter
- Singer Island
- Broward
- Fort Lauderdale
- Parkland
- Coral Springs
- Davie
- Weston
- Plantation
- Pembroke Pines
- Southwest Ranches
- Hillsboro Beach
- Miami/Dade
- Miami
- Miami Beach
- Aventura
- Sunny Isles
- Bal Harbour
- Surfside
- Coral Gables
- Treasure Coast
- Port Saint Lucie
- Fort Pierce
- Palm City
- Jensen Beach
- Vero Beach
- Stuart
- Hobe Sound
- Gulf Coast
- Naples
- Marco Island
- Fort Myers
- Bonita Springs
- Sarasota
- Tampa
- Clearwater





