672 96th Avenue Naples FL 34108
See Also...
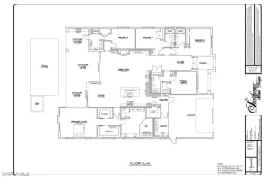
Overview of 672 96th Ave N
Yes
Don't miss this home for sale in Naples Park! Presenting an exceptional new construction opportunity by the glendale group of swfl, situated on an expansive 75-foot southern exposure lot in the highly sought-after Naples Park neighborhood. This luxury residence is thoughtfully designed for both elegance and functionality, offering 5 bedrooms and 5 bathrooms across 3,423 square feet under air, with each bedroom featuring its own private en-suite for maximum comfort and privacy. The home combines contemporary design with timeless craftsmanship and is ideally located just over one mile from vanderbilt beach and mercato, providing easy access to world-class dining, shopping, and the pristine gulf of mexico beaches. step inside to experience the impressive open-concept floor plan, where 11-foot ceilings and expansive glass doors fill the home with natural light and create a seamless flow between indoor and outdoor living. Every detail has been carefully considered, from the custom-designed closets to the engineered hardwood flooring throughout. The heart of the home is the chefs kitchen, featuring wolf and sub-zero appliances, a large island ideal for entertaining, a spacious walk-in pantry, and a gas cooktop powered by a buried propane tank. High-end finishes and fixtures have been selected to reflect both sophistication and durability, ensuring a lasting impression in every room. the primary suite offers a peaceful retreat, complete with a luxurious spa-inspired bathroom, dual walk-in closets, and direct access to the outdoor living area. Each secondary bedroom includes its own en-suite bath and custom storage, providing comfort and privacy for family and guests alike. Additional features include a well-appointed laundry and utility room, a dedicated mudroom with built-in cabinetry, and a whole-house generator for peace of mind and convenience. outdoor living is at the center of this homes design philosophy. The custom pool and integrated spa create a resort-style atmosphere, complemented by an outdoor kitchen and covered dining area ideal for entertaining. The spacious outdoor living area offers ample space for lounging and enjoying the florida sunshine year-round. Designed to take full advantage of the homes southern exposure, this space provides abundant natural light and an inviting setting for both relaxation and recreation. construction is just beginning, and the home is scheduled for completion before the end of 2026, ready for you to enjoy by the 2027 season. The glendale group of swfl is known for their attention to detail, quality craftsmanship, and commitment to excellence, ensuring a home that is as durable as it is beautiful. Whether you are searching for a full-time residence, a seasonal retreat, or an investment property with exceptional rental potential, 672 96th ave n offers the perfect blend of location, luxury, and lifestyle. photos are renderings. Final finishes and details subject to change during construction.
This luxury single family home was built in 2026 and features 5 bedrooms, and 5 full bathrooms. This home for sale is 4,765 square feet, with 3,423 sq ft being air conditioned living space. The home has a 2 car garage and has a private swimming pool.
Please contact your ZFC agent for more information about MLS# 225070280 or any other homes for sale in Naples or elsewhere in the Collier County area.
672 96th Ave N Price Calculator
The payment calculator figures for 672 96th Ave N should be used as an estimate only. Loan terms including interest rate, and required downpayment will vary with each lender and/or individual. RE taxes for this home for sale are estimated based on the actual property taxes for this property for the tax year 2024 which are $8,399 but will likely change when this home sells. These estimations are calculated from a list price of $3,499,000 and a 25% down payment and do not include homeowners insurance which will vary greatly depending on the home characteristics and location.
Recent Home Sales near 672 96th Ave N
MLS# 225070280 Listing History
Collier County Schools
Elementary School
Middle School
High School
Public Transportation
Collier Area Transit:
Collier Area Transit:
Collier Area Transit:
Collier Area Transit:
Collier Area Transit:
Map of 672 96th Ave N Naples FL 34108
Similar communities in Naples
The data relating to homes for sale or lease or other real estate for sale or for rent on the ZFC website comes in part from a cooperative data exchange program of the MLS in which this Broker participates. The real estate displayed may not be all of the homes in the database, or all of the properties listed with Brokers participating in the cooperative data exchange program. Homes for sale that are listed by Brokers other than this Broker are marked with either the listing Broker's name or the MLS name or a logo provided by the MLS and the details page about such properties includes the name of the listing Brokers. Information provided is thought to be reliable but is not guaranteed to be accurate; you are advised to verify facts that are important to you. No warranties, expressed or implied, are provided for the data herein, or for their use or interpretation by the user. ZFC, the Florida Association of Realtors and its cooperating Multiple Listing Services do not create, control or review the property data displayed herein and take no responsibility for the content of such records. Federal law including the fair housing act prohibits discrimination on the basis of race, color, religion, sex, handicap, familial status or national origin in the sale, rental or financing of housing. IDX information is provided exclusively for personal, non-commercial use, and may not be used for any purpose other than to identify prospective properties consumers may be interested in purchasing. Information is deemed reliable but not guaranteed.
-
- Palm Beach
- Boca Raton
- Highland Beach
- Delray Beach
- Boynton Beach
- Lake Worth
- Wellington
- West Palm Beach
- Palm Beach Gardens
- Jupiter
- Singer Island
- Broward
- Fort Lauderdale
- Parkland
- Coral Springs
- Davie
- Weston
- Plantation
- Pembroke Pines
- Southwest Ranches
- Hillsboro Beach
- Miami/Dade
- Miami
- Miami Beach
- Aventura
- Sunny Isles
- Bal Harbour
- Surfside
- Coral Gables
- Treasure Coast
- Port Saint Lucie
- Fort Pierce
- Palm City
- Jensen Beach
- Vero Beach
- Stuart
- Hobe Sound
- Gulf Coast
- Naples
- Marco Island
- Fort Myers
- Bonita Springs
- Sarasota
- Tampa
- Clearwater





