9641 JEROME DRIVE NEW PORT RICHEY FL 34654 Sold 04/14/2025
Overview of 9641 Jerome Dr
No
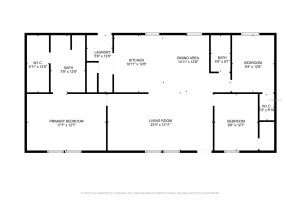
Welcome home to this 2022-built, spacious 3 bedroom, 2 bath manufactured home in moon lake subdivision. This home features a split-bedroom floor plan and sits on a serene 0.18 acre lot with a well and septic. This property provides unrestricted homeownership with no hoa, no fees, no flood zone, and no restrictions on pets or rentals. conveniently located just minutes from the ridge road extension and suncoast expressway, the home provides easy access to shopping, dining, and other conveniences. The moon lake community offers public amenities, including a lake with a beach, boat ramp, playground, picnic area, and nearby bus stops. this property is your opportunity to enjoy peaceful, unregulated living with everything you need just a short drive away!
This lovely property was built in 2022 and features 3 bedrooms, and 2 full bathrooms. This property for sale is 1,512 square feet, with 1,512 sq ft being air conditioned living space. The property has a does not have a private swimming pool.
Directions to this property are as follows: From Sr 52, Turn Left Onto Key Lime Dr, Left Onto Oconee Blvd, Right On Lake Dr, Left Onto Jerome Dr, Home Is On The Left.
Please contact your ZFC agent for more information about MLS# MFRTB8315786 or any other properties for sale in New Port Richey or elsewhere in the Pasco County area.
9641 Jerome Dr Price Calculator
The payment calculator figures for 9641 Jerome Dr should be used as an estimate only. Loan terms including interest rate, and required downpayment will vary with each lender and/or individual. RE taxes for this property for sale are estimated based on the actual property taxes for this property for the tax year 2023 which are $2,274 but will likely change when this property sells. These estimations are calculated from a list price of $215,000 and a 25% down payment and do not include homeowners insurance which will vary greatly depending on the property characteristics and location.
Recent Property Sales near 9641 Jerome Dr
MLS# MFRTB8315786 Listing History
Pasco County Schools
Elementary School
Middle School
High School
Public Transportation
Pasco County Public Transportation:
Pasco County Public Transportation:
Pasco County Public Transportation:
Pasco County Public Transportation:
Pasco County Public Transportation:
 Map of 9641 Jerome Dr New Port Richey FL 34654
Similar communities in New Port Richey
The data relating to homes for sale or lease or other real estate for sale or for rent on the ZFC website comes in part from a cooperative data exchange program of the MLS in which this Broker participates. The real estate displayed may not be all of the homes in the database, or all of the properties listed with Brokers participating in the cooperative data exchange program. Homes for sale that are listed by Brokers other than this Broker are marked with either the listing Broker's name or the MLS name or a logo provided by the MLS and the details page about such properties includes the name of the listing Brokers. Information provided is thought to be reliable but is not guaranteed to be accurate; you are advised to verify facts that are important to you. No warranties, expressed or implied, are provided for the data herein, or for their use or interpretation by the user. ZFC, the Florida Association of Realtors and its cooperating Multiple Listing Services do not create, control or review the property data displayed herein and take no responsibility for the content of such records. Federal law including the fair housing act prohibits discrimination on the basis of race, color, religion, sex, handicap, familial status or national origin in the sale, rental or financing of housing. IDX information is provided exclusively for personal, non-commercial use, and may not be used for any purpose other than to identify prospective properties consumers may be interested in purchasing. Information is deemed reliable but not guaranteed.
- 
- Palm Beach
 - Boca Raton
 - Highland Beach
 - Delray Beach
 - Boynton Beach
 - Lake Worth
 - Wellington
 - West Palm Beach
 - Palm Beach Gardens
 - Jupiter
 - Singer Island
 
- Broward
 - Fort Lauderdale
 - Parkland
 - Coral Springs
 - Davie
 - Weston
 - Plantation
 - Pembroke Pines
 - Southwest Ranches
 - Hillsboro Beach
 
- Miami/Dade
 - Miami
 - Miami Beach
 - Aventura
 - Sunny Isles
 - Bal Harbour
 - Surfside
 - Coral Gables
 
- Treasure Coast
 - Port Saint Lucie
 - Fort Pierce
 - Palm City
 - Jensen Beach
 - Vero Beach
 - Stuart
 - Hobe Sound
 
- Gulf Coast
 - Naples
 - Marco Island
 - Fort Myers
 - Bonita Springs
 - Sarasota
 - Tampa
 - Clearwater
 
 





