24338 18TH LANE NEWBERRY FL 32669
Overview of 24338 Sw 18th Ln
No
***move in ready***countryway town square*** enjoy the ambience of a small town yet close to all you need. Beautiful just completed 3/2 in sought after community with pool, volleyball, stonehouse grill, tortillas tex-mex, bim health facility, nc beef and more. Enjoy the home and community built by one of the areas premier builders, norfleet homes. Hardiboard exterior. The open spacious floorplan maximizes space and lives larger than its footage. Upgraded engineered wood flooring, open floor plan (open kitchen, family and dining), 9 ceilings, fans, oversized 1 car garage, covered porch, fenced yard, sprinkler system in front and newberry utilities. Hoa takes care of front yard! Low maintenance yard. Hoa paid quarterly/$250. Great location with downtown newberry, grocery, pharmacy, stores, premier sports facilities and restaurants within 2.5 miles. Preschool, elementary, middle and high school all within 1 mile. Enjoy the outdoors and relax at one of the many springs and state parks within15-20 miles. Very accessible (within a half mile) to main arteries state roads 26, 235 and 41/27 to gainesville, alachua, trenton, chiefland, high springs & archer. You will be pleasantly surprised at the cost of insurance for a new home and the affordable newberry utilities. buyer should verify all information deemed important by them.
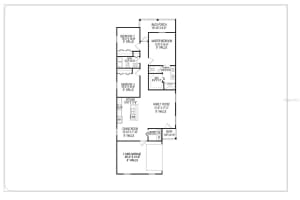
This lovely single family home was built in 2025 and features 3 bedrooms, and 2 full bathrooms. This home for sale is 1,610 square feet, with 1,314 sq ft being air conditioned living space. The home has a 1 car garage and does not have a private swimming pool.
Directions to this property are as follows: From Intersection Of Newberry Rd (sr 26) And Sw 250th St (sr 27/41/45) Turn South Toward Oak View Middle School. Lessthan 1 Mile South Of The Intersection Just Past Oak View Middle School On The East Side Of The Road Is Sw 18th Rd, The Main Entrance Tocountryway Town Square. Look For The Water Tower And Signs At The Entrance On Sw 18th Rd. Turn Into The Subdivision And Proceed About 1/4mile On Sw 18 Rd To Roundabout. Go Through Roundabout On Sw 18th Rd To Sw 244th Drive Turn Left. Go 1 Block To Sw 18th, Turn Right. House Is On Left Side Of Road About Halfway Down The Street.
Please contact your ZFC agent for more information about MLS# MFRGC538300 or any other homes for sale in Newberry or elsewhere in the Alachua County area.
24338 18th Ln Price Calculator
The payment calculator figures for 24338 Sw 18th Ln should be used as an estimate only. Loan terms including interest rate, and required downpayment will vary with each lender and/or individual. RE taxes for this home for sale are estimated based on the actual property taxes for this property for the tax year 2025 which are $861 but will likely change when this home sells. These estimations are calculated from a list price of $288,000 and a 25% down payment and do not include homeowners insurance which will vary greatly depending on the home characteristics and location.
Recent Home Sales near 24338 18th Ln
MLS# MFRGC538300 Listing History
Map of 24338 18th Ln Newberry FL 32669
The data relating to homes for sale or lease or other real estate for sale or for rent on the ZFC website comes in part from a cooperative data exchange program of the MLS in which this Broker participates. The real estate displayed may not be all of the homes in the database, or all of the properties listed with Brokers participating in the cooperative data exchange program. Homes for sale that are listed by Brokers other than this Broker are marked with either the listing Broker's name or the MLS name or a logo provided by the MLS and the details page about such properties includes the name of the listing Brokers. Information provided is thought to be reliable but is not guaranteed to be accurate; you are advised to verify facts that are important to you. No warranties, expressed or implied, are provided for the data herein, or for their use or interpretation by the user. ZFC, the Florida Association of Realtors and its cooperating Multiple Listing Services do not create, control or review the property data displayed herein and take no responsibility for the content of such records. Federal law including the fair housing act prohibits discrimination on the basis of race, color, religion, sex, handicap, familial status or national origin in the sale, rental or financing of housing. IDX information is provided exclusively for personal, non-commercial use, and may not be used for any purpose other than to identify prospective properties consumers may be interested in purchasing. Information is deemed reliable but not guaranteed.
-
- Palm Beach
- Boca Raton
- Highland Beach
- Delray Beach
- Boynton Beach
- Lake Worth
- Wellington
- West Palm Beach
- Palm Beach Gardens
- Jupiter
- Singer Island
- Broward
- Fort Lauderdale
- Parkland
- Coral Springs
- Davie
- Weston
- Plantation
- Pembroke Pines
- Southwest Ranches
- Hillsboro Beach
- Miami/Dade
- Miami
- Miami Beach
- Aventura
- Sunny Isles
- Bal Harbour
- Surfside
- Coral Gables
- Treasure Coast
- Port Saint Lucie
- Fort Pierce
- Palm City
- Jensen Beach
- Vero Beach
- Stuart
- Hobe Sound
- Gulf Coast
- Naples
- Marco Island
- Fort Myers
- Bonita Springs
- Sarasota
- Tampa
- Clearwater





