4165 168TH CIRCLE OCALA FL 34481
Overview of 4165 Sw 168th Cir
No
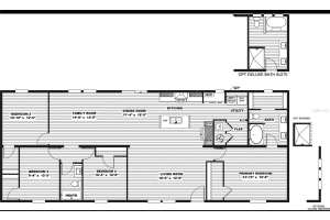
One or more photo(s) has been virtually staged. Welcome home to modern country living in this stunning brand new clayton morocco model, offering a spacious and thoughtfully designed 1,791 sq. Ft. Floor plan. With four bedrooms and two full bathrooms, this home delivers comfort, functionality, and style for the whole family. step inside and be greeted by an open-concept layout that seamlessly connects the living room, dining room, family room, and kitchenperfect for entertaining or enjoying cozy nights at home. The chef-inspired kitchen features a large center island, ample cabinetry, and premium finishes that make both cooking and hosting a delight. designed for privacy, the split-bedroom floor plan places the primary suite on one side of the home, complete with a luxury bathroom featuring double sinks and generous closet space. The secondary bedrooms are spacious and well-appointed for family members or guests. additional highlights include: * inside utility/laundry room * stylish and durable finishes throughout * energy-efficient construction * plenty of room to grow, garden, or add outdoor amenities situated on close to 1 acre, youll enjoy wide-open space with endless outdoor possibilitiesbring your toys, pets, gardens, and dreams! this beautiful home offers the perfect blend of peaceful living and modern convenience. Dont miss your chance to make it yoursschedule your showing today! Fha approved skirting **all measurements are approximate. Buyer or buyers agent to verify all mls information
This lovely property was built in 2025 and features 4 bedrooms, and 2 full bathrooms. This property for sale is 1,791 square feet, with 1,791 sq ft being air conditioned living space. The property has a does not have a private swimming pool.
Directions to this property are as follows: From Sr 40 /west 17 Miles To Sw 166th Ct Rd, Turn Right On Sw 42nd Loop, Left On 168th Circle.
Please contact your ZFC agent for more information about MLS# MFROM714279 or any other properties for sale in Ocala or elsewhere in the Marion County area.
4165 Sw 168th Cir Price Calculator
The payment calculator figures for 4165 Sw 168th Cir should be used as an estimate only. Loan terms including interest rate, and required downpayment will vary with each lender and/or individual. RE taxes for this property for sale are estimated based on the actual property taxes for this property for the tax year 2025 which are $323 but will likely change when this property sells. These estimations are calculated from a list price of $265,000 and a 25% down payment and do not include homeowners insurance which will vary greatly depending on the property characteristics and location.
Recent Property Sales near 4165 Sw 168th Cir
MLS# MFROM714279 Listing History
Marion County Schools
Elementary School
Middle School
High School
Map of 4165 Sw 168th Cir Ocala FL 34481
The data relating to homes for sale or lease or other real estate for sale or for rent on the ZFC website comes in part from a cooperative data exchange program of the MLS in which this Broker participates. The real estate displayed may not be all of the homes in the database, or all of the properties listed with Brokers participating in the cooperative data exchange program. Homes for sale that are listed by Brokers other than this Broker are marked with either the listing Broker's name or the MLS name or a logo provided by the MLS and the details page about such properties includes the name of the listing Brokers. Information provided is thought to be reliable but is not guaranteed to be accurate; you are advised to verify facts that are important to you. No warranties, expressed or implied, are provided for the data herein, or for their use or interpretation by the user. ZFC, the Florida Association of Realtors and its cooperating Multiple Listing Services do not create, control or review the property data displayed herein and take no responsibility for the content of such records. Federal law including the fair housing act prohibits discrimination on the basis of race, color, religion, sex, handicap, familial status or national origin in the sale, rental or financing of housing. IDX information is provided exclusively for personal, non-commercial use, and may not be used for any purpose other than to identify prospective properties consumers may be interested in purchasing. Information is deemed reliable but not guaranteed.
-
- Palm Beach
- Boca Raton
- Highland Beach
- Delray Beach
- Boynton Beach
- Lake Worth
- Wellington
- West Palm Beach
- Palm Beach Gardens
- Jupiter
- Singer Island
- Broward
- Fort Lauderdale
- Parkland
- Coral Springs
- Davie
- Weston
- Plantation
- Pembroke Pines
- Southwest Ranches
- Hillsboro Beach
- Miami/Dade
- Miami
- Miami Beach
- Aventura
- Sunny Isles
- Bal Harbour
- Surfside
- Coral Gables
- Treasure Coast
- Port Saint Lucie
- Fort Pierce
- Palm City
- Jensen Beach
- Vero Beach
- Stuart
- Hobe Sound
- Gulf Coast
- Naples
- Marco Island
- Fort Myers
- Bonita Springs
- Sarasota
- Tampa
- Clearwater





