4409 CAMPSITE LOOP ORLANDO FL 32824 Sold 05/31/2024





See Also...
Overview of 4409 Campsite Loop
No
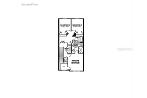
Don't miss this townhouse for sale in Sawgrass! Under construction. The santa rosa is a spacious, open-flow townhome that lives like a single family home. It features 3 bedrooms, 2.5 bathrooms, a loft, and a 1-car garage with a 2-car wide paver driveway.the main living space is tucked privately in the back of the unit, taking advantage of the natural light from the rear windows and sliding glass door. Upon entry, youll pass a powder bath as you head down the hall to the open kitchen and great room. The chef of the family will be in heaven in this kitchen with the ample 42 cabinets, solid surface countertops, ge® stainless steel appliances, and a large island, creating a great place for meal prep. Welcome up stairs to your very own master suite and 2 extra bedrooms along with a loft space perfect for solo time or ga me time! Make an appointment to see the amazing santa rosa today!
This lovely townhouse was built in 2024 and features 3 bedrooms, and 2 full bathrooms plus 1 half bath. This townhouse for sale is 1,669 square feet, with 1,379 sq ft being air conditioned living space. The townhouse has a 1 car garage and does not have a private swimming pool.
Directions to this property are as follows: From Fl-417 S: Take Exit State Hwy 527a/boggy Creek 1.8 Miles To Simpson Road And Turn Right. Continue To The Road Just Past The Landings At Boggy Creek, New Creek Avenue, And Turn Right. Continue Down New Creek Avenue For Approx. 0.3 Miles. The Community Will Be On Your Left.
Please contact your ZFC agent for more information about MLS# MFRO6161292 or any other townhouses for sale in Orlando or elsewhere in the Orange County area.
4409 Campsite Loop Price Calculator
The payment calculator figures for 4409 Campsite Loop should be used as an estimate only. Loan terms including interest rate, and required downpayment will vary with each lender and/or individual. RE taxes for this townhouse for sale are estimated based on the actual property taxes for this property for the tax year 2024 which are $4,720 but will likely change when this townhouse sells. These estimations are calculated from a list price of $418,965 and a 25% down payment and do not include homeowners insurance which will vary greatly depending on the townhouse characteristics and location.
Recent Townhouse Sales near 4409 Campsite Loop
MLS# MFRO6161292 Listing History
Orange County Schools
Elementary School
Middle School
High School

Map of 4409 Campsite Loop Orlando FL 32824
Similar communities in Orlando
The data relating to homes for sale or lease or other real estate for sale or for rent on the ZFC website comes in part from a cooperative data exchange program of the MLS in which this Broker participates. The real estate displayed may not be all of the homes in the database, or all of the properties listed with Brokers participating in the cooperative data exchange program. Homes for sale that are listed by Brokers other than this Broker are marked with either the listing Broker's name or the MLS name or a logo provided by the MLS and the details page about such properties includes the name of the listing Brokers. Information provided is thought to be reliable but is not guaranteed to be accurate; you are advised to verify facts that are important to you. No warranties, expressed or implied, are provided for the data herein, or for their use or interpretation by the user. ZFC, the Florida Association of Realtors and its cooperating Multiple Listing Services do not create, control or review the property data displayed herein and take no responsibility for the content of such records. Federal law including the fair housing act prohibits discrimination on the basis of race, color, religion, sex, handicap, familial status or national origin in the sale, rental or financing of housing. IDX information is provided exclusively for personal, non-commercial use, and may not be used for any purpose other than to identify prospective properties consumers may be interested in purchasing. Information is deemed reliable but not guaranteed.
-
- Palm Beach
- Boca Raton
- Highland Beach
- Delray Beach
- Boynton Beach
- Lake Worth
- Wellington
- West Palm Beach
- Palm Beach Gardens
- Jupiter
- Singer Island
- Broward
- Fort Lauderdale
- Parkland
- Coral Springs
- Davie
- Weston
- Plantation
- Pembroke Pines
- Southwest Ranches
- Hillsboro Beach
- Miami/Dade
- Miami
- Miami Beach
- Aventura
- Sunny Isles
- Bal Harbour
- Surfside
- Coral Gables
- Treasure Coast
- Port Saint Lucie
- Fort Pierce
- Palm City
- Jensen Beach
- Vero Beach
- Stuart
- Hobe Sound
- Gulf Coast
- Naples
- Marco Island
- Fort Myers
- Bonita Springs
- Sarasota
- Tampa
- Clearwater
