9964 RED CANOE ALLEY ORLANDO FL 32832





Overview of 9964 Red Canoe Aly
No
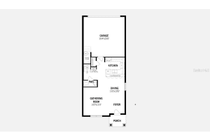
Under construction. With a spacious open concept ground floor, the catalina ii has plenty of room for entertaining. This floorplan features 4 bedrooms, 2.5 bathrooms and a rear-loading 2-car garage. The owners suite features an en suite owner's bath and a walk-in closet. This chef-worthy kitchen features stainless steel appliances, a walk-in pantry, and a breakfast bar nestled in a superb location, this home provides access to an array of scenic trails and paths, making it an ideal community for those seeking an active and vibrant lifestyle. Don't let this opportunity slip through your fingers to own a stunning new construction home. Schedule your tour today and let us help you make your homeownership dreams come true. Visit the meridian parks sales center today!
This lovely townhouse was built in 2024 and features 4 bedrooms, and 2 full bathrooms plus 1 half bath. This townhouse for sale is 2,176 square feet, with 1,678 sq ft being air conditioned living space. The townhouse has a 2 car garage and does not have a private swimming pool, although there is a community pool in the complex for use by residents.
Directions to this property are as follows: Coming Off 417 South, Take Exit 24 And Make A Left Onto Dowden Road. Drive 1.5 Miles Down And Meridian Will Be On Your Left-hand Side. Sales Center Located At 9623 Peace Drive Orlando Fl 32832.
Please contact your ZFC agent for more information about MLS# MFRO6304003 or any other townhouses for sale in Orlando or elsewhere in the Orange County area.
9964 Red Canoe Aly Price Calculator
The payment calculator figures for 9964 Red Canoe Aly should be used as an estimate only. Loan terms including interest rate, and required downpayment will vary with each lender and/or individual. RE taxes for this townhouse for sale are estimated based on the actual property taxes for this property for the tax year 2024 which are $1,569 but will likely change when this townhouse sells. These estimations are calculated from a list price of $480,990 and a 25% down payment and do not include homeowners insurance which will vary greatly depending on the townhouse characteristics and location.
Recent Townhouse Sales near 9964 Red Canoe Aly
MLS# MFRO6304003 Listing History
Orange County Schools
Elementary School
Middle School
High School
Open House Schedule for 9964 RED CANOE ALY

Map of 9964 Red Canoe Aly Orlando FL 32832
Similar communities in Orlando
The data relating to homes for sale or lease or other real estate for sale or for rent on the ZFC website comes in part from a cooperative data exchange program of the MLS in which this Broker participates. The real estate displayed may not be all of the homes in the database, or all of the properties listed with Brokers participating in the cooperative data exchange program. Homes for sale that are listed by Brokers other than this Broker are marked with either the listing Broker's name or the MLS name or a logo provided by the MLS and the details page about such properties includes the name of the listing Brokers. Information provided is thought to be reliable but is not guaranteed to be accurate; you are advised to verify facts that are important to you. No warranties, expressed or implied, are provided for the data herein, or for their use or interpretation by the user. ZFC, the Florida Association of Realtors and its cooperating Multiple Listing Services do not create, control or review the property data displayed herein and take no responsibility for the content of such records. Federal law including the fair housing act prohibits discrimination on the basis of race, color, religion, sex, handicap, familial status or national origin in the sale, rental or financing of housing. IDX information is provided exclusively for personal, non-commercial use, and may not be used for any purpose other than to identify prospective properties consumers may be interested in purchasing. Information is deemed reliable but not guaranteed.
-
- Palm Beach
- Boca Raton
- Highland Beach
- Delray Beach
- Boynton Beach
- Lake Worth
- Wellington
- West Palm Beach
- Palm Beach Gardens
- Jupiter
- Singer Island
- Broward
- Fort Lauderdale
- Parkland
- Coral Springs
- Davie
- Weston
- Plantation
- Pembroke Pines
- Southwest Ranches
- Hillsboro Beach
- Miami/Dade
- Miami
- Miami Beach
- Aventura
- Sunny Isles
- Bal Harbour
- Surfside
- Coral Gables
- Treasure Coast
- Port Saint Lucie
- Fort Pierce
- Palm City
- Jensen Beach
- Vero Beach
- Stuart
- Hobe Sound
- Gulf Coast
- Naples
- Marco Island
- Fort Myers
- Bonita Springs
- Sarasota
- Tampa
- Clearwater
