19 Marden Drive Ormond Beach FL 32176





See Also...
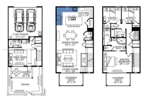
Overview of 19 Marden Drive
No
Builder model now available for sale w/ leaseback opportunity! Experience elevated coastal living with beach access and stunning ocean views just steps from the beach. This beautifully designed 3 story townhome offering nearly 2,400 lsf. This home is thoughtfully appointed with premium finishes. 1st floor features spacious game room; 2nd floor is the heart of the home; open-concept living w/ gourmet kitchen, dining and living rooms. Extend your living space outdoors on the covered balcony overlooking the ocean. An elevator provides seamless access to all three levels for added convenience. 3rd floor is a private owner's retreat! A private covered balcony, large wic and a spa-inspired en-suite bath. 2 additional bedrooms share a well-appointed full bathroom. A must see!
This luxury townhouse was built in 2025 and features 2 bedrooms, and 2 full bathrooms plus 1 half bath. This townhouse for sale is 0 square feet, with 0 sq ft being air conditioned living space. The townhouse has a 2 car garage and does not have a private swimming pool.
Builder Model with nearly 2400 LSF. This 2 Bed, 2.5 Baths, 2 car garage is a 3 story townhome with stunning ocean front views. Leaseback opportunity.
Directions to this property are as follows: Ormond Beach - From Granada Blvd., Turn L Onto Fl A1a/n. Drive 4 Miles N, Turn L On Spanish Waters Dr, Then R Onto Marden Drive.
Please contact your ZFC agent for more information about MLS# AX-11880662 or any other townhouses for sale in Ormond Beach or elsewhere in the Volusia County area.
19 Marden Dr Price Calculator
The payment calculator figures for 19 Marden Drive should be used as an estimate only. Loan terms including interest rate, and required downpayment will vary with each lender and/or individual. RE taxes for this townhouse for sale are estimated based on the actual property taxes for this property for the tax year 2024 which are $2,382 but will likely change when this townhouse sells. These estimations are calculated from a list price of $1,442,029 and a 25% down payment and do not include homeowners insurance which will vary greatly depending on the townhouse characteristics and location.
Recent Townhouse Sales near 19 Marden Dr
MLS# AX-11880662 Listing History

Map of 19 Marden Dr Ormond Beach FL 32176
The data relating to homes for sale or lease or other real estate for sale or for rent on the ZFC website comes in part from a cooperative data exchange program of the MLS in which this Broker participates. The real estate displayed may not be all of the homes in the database, or all of the properties listed with Brokers participating in the cooperative data exchange program. Homes for sale that are listed by Brokers other than this Broker are marked with either the listing Broker's name or the MLS name or a logo provided by the MLS and the details page about such properties includes the name of the listing Brokers. Information provided is thought to be reliable but is not guaranteed to be accurate; you are advised to verify facts that are important to you. No warranties, expressed or implied, are provided for the data herein, or for their use or interpretation by the user. ZFC, the Florida Association of Realtors and its cooperating Multiple Listing Services do not create, control or review the property data displayed herein and take no responsibility for the content of such records. Federal law including the fair housing act prohibits discrimination on the basis of race, color, religion, sex, handicap, familial status or national origin in the sale, rental or financing of housing. IDX information is provided exclusively for personal, non-commercial use, and may not be used for any purpose other than to identify prospective properties consumers may be interested in purchasing. Information is deemed reliable but not guaranteed.
-
- Palm Beach
- Boca Raton
- Highland Beach
- Delray Beach
- Boynton Beach
- Lake Worth
- Wellington
- West Palm Beach
- Palm Beach Gardens
- Jupiter
- Singer Island
- Broward
- Fort Lauderdale
- Parkland
- Coral Springs
- Davie
- Weston
- Plantation
- Pembroke Pines
- Southwest Ranches
- Hillsboro Beach
- Miami/Dade
- Miami
- Miami Beach
- Aventura
- Sunny Isles
- Bal Harbour
- Surfside
- Coral Gables
- Treasure Coast
- Port Saint Lucie
- Fort Pierce
- Palm City
- Jensen Beach
- Vero Beach
- Stuart
- Hobe Sound
- Gulf Coast
- Naples
- Marco Island
- Fort Myers
- Bonita Springs
- Sarasota
- Tampa
- Clearwater
