19 MARDEN DRIVE ORMOND BEACH FL 32174
See Also...
Overview of 19 Marden Dr #49
No
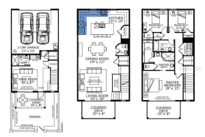
Don't miss this townhouse for sale in Spanish Waters! Ici homes stunning model now available for sale with leaseback opportunity! Experience elevated coastal living in the sand dollar, a beautifully designed three-story townhome offering nearly 2,400 square feet of luxurious living space with beach access and stunning ocean views. As a fully upgraded builders model, this home is thoughtfully appointed with premium finishes and designer touches throughoutmaking it truly move-in ready and a dream come true. With a leaseback option, enjoy immediate investment potential while owning a showcase residence built to impress. First floor: entertainment & outdoor living - upon entry, youre greeted by a spacious game room or office, perfect for entertaining or unwinding. Step outside to the covered lanai and expansive pavered courtyard, ideal for alfresco dining, evening gatherings, or quiet nights under the stars. A two-car garage with generous storage solutions completes this level for optimal functionality. Second floor: the heart of the home - the open-concept main living area flows effortlessly from a sun-filled living room to a stylish dining area and into a gourmet kitchen featuring modern appliances, sleek cabinetry, and abundant counter space. Extend your living space outdoors on the covered balconya perfect setting for morning coffee or sunset views overlooking the ocean. An elevator provides seamless access to all three levels, enhancing everyday convenience and sophistication. Third floor: private retreat - upstairs, find a peaceful escape in the owners suite, boasting a spacious layout, private covered balcony, large walk-in closet, and a spa-inspired en-suite bath. Two additional bedrooms share a well-appointed full bathroom and offer ample closet space, making them ideal for family members or guests.
This luxury townhouse was built in 2024 and features 3 bedrooms, and 3 full bathrooms plus 1 half bath. This townhouse for sale is 3,064 square feet, with 2,396 sq ft being air conditioned living space. The townhouse has a 2 car garage and does not have a private swimming pool.
Directions to this property are as follows: From Granada Blvd., Turn L Onto Fla1a/n. Drive 4 Miles N, Turn L On Spanish Water Dr., Then R Onto Marden Dr.
Please contact your ZFC agent for more information about MLS# MFRTB8426699 or any other townhouses for sale in Ormond Beach or elsewhere in the Volusia County area.
19 Marden Dr #49 Price Calculator
The payment calculator figures for 19 Marden Dr #49 should be used as an estimate only. Loan terms including interest rate, and required downpayment will vary with each lender and/or individual. RE taxes for this townhouse for sale are estimated based on the actual property taxes for this property for the tax year 2025 which are $2,287 but will likely change when this townhouse sells. These estimations are calculated from a list price of $1,442,029 and a 25% down payment and do not include homeowners insurance which will vary greatly depending on the townhouse characteristics and location.
Recent Townhouse Sales near 19 Marden Dr #49
MLS# MFRTB8426699 Listing History
Volusia County Schools
Elementary School
Middle School
High School
Public Transportation
VOTRAN:
VOTRAN:
VOTRAN:
VOTRAN:
VOTRAN:
Map of 19 Marden Dr #49 Ormond Beach FL 32174
The data relating to homes for sale or lease or other real estate for sale or for rent on the ZFC website comes in part from a cooperative data exchange program of the MLS in which this Broker participates. The real estate displayed may not be all of the homes in the database, or all of the properties listed with Brokers participating in the cooperative data exchange program. Homes for sale that are listed by Brokers other than this Broker are marked with either the listing Broker's name or the MLS name or a logo provided by the MLS and the details page about such properties includes the name of the listing Brokers. Information provided is thought to be reliable but is not guaranteed to be accurate; you are advised to verify facts that are important to you. No warranties, expressed or implied, are provided for the data herein, or for their use or interpretation by the user. ZFC, the Florida Association of Realtors and its cooperating Multiple Listing Services do not create, control or review the property data displayed herein and take no responsibility for the content of such records. Federal law including the fair housing act prohibits discrimination on the basis of race, color, religion, sex, handicap, familial status or national origin in the sale, rental or financing of housing. IDX information is provided exclusively for personal, non-commercial use, and may not be used for any purpose other than to identify prospective properties consumers may be interested in purchasing. Information is deemed reliable but not guaranteed.
-
- Palm Beach
- Boca Raton
- Highland Beach
- Delray Beach
- Boynton Beach
- Lake Worth
- Wellington
- West Palm Beach
- Palm Beach Gardens
- Jupiter
- Singer Island
- Broward
- Fort Lauderdale
- Parkland
- Coral Springs
- Davie
- Weston
- Plantation
- Pembroke Pines
- Southwest Ranches
- Hillsboro Beach
- Miami/Dade
- Miami
- Miami Beach
- Aventura
- Sunny Isles
- Bal Harbour
- Surfside
- Coral Gables
- Treasure Coast
- Port Saint Lucie
- Fort Pierce
- Palm City
- Jensen Beach
- Vero Beach
- Stuart
- Hobe Sound
- Gulf Coast
- Naples
- Marco Island
- Fort Myers
- Bonita Springs
- Sarasota
- Tampa
- Clearwater





