245 TARPON BOULEVARD PALATKA FL 32177 Sold 10/31/2025
Overview of 245 Tarpon Blvd
No
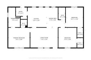
Attention cash buyers- incredible opportunity to flip or rent out this waterfront home in the st johns harbor subdivision. 3 bedroom/ 2 bathroom 2006 build, double-wide manufactured home that backs up onto a canal going into st johns river- north of palatka in bostwick area, off west river road. Separate 1-car garage on the property with additional storage shed. Good layout with a split- floor plan. Masterbedroom has an ensuite with separate tub and shower plus walk-in closet. Large wooden dock on the canal in the back. Easy to see! Cash only. Short/zero day inspection period preferred, buyer can complete due diligence prior. All 4-pts original to 2006.
This lovely property was built in 2006 and features 3 bedrooms, and 2 full bathrooms. This property for sale is 1,296 square feet, with 1,296 sq ft being air conditioned living space. The property has a 1 car garage and does not have a private swimming pool.
Directions to this property are as follows: From S Us Highway 17/us-17 N/fl-20/fl-100 Turn Right Onto W River Rd Follow W River Rd Turn Right Onto Tarpon Blvd.
Please contact your ZFC agent for more information about MLS# MFRTB8436421 or any other properties for sale in Palatka or elsewhere in the Putnam County area.
245 Tarpon Blvd Price Calculator
The payment calculator figures for 245 Tarpon Blvd should be used as an estimate only. Loan terms including interest rate, and required downpayment will vary with each lender and/or individual. RE taxes for this property for sale are estimated based on the actual property taxes for this property for the tax year 2024 which are $2,589 but will likely change when this property sells. These estimations are calculated from a list price of $79,990 and a 25% down payment and do not include homeowners insurance which will vary greatly depending on the property characteristics and location.
Recent Property Sales near 245 Tarpon Blvd
MLS# MFRTB8436421 Listing History
Map of 245 Tarpon Blvd Palatka FL 32177
The data relating to homes for sale or lease or other real estate for sale or for rent on the ZFC website comes in part from a cooperative data exchange program of the MLS in which this Broker participates. The real estate displayed may not be all of the homes in the database, or all of the properties listed with Brokers participating in the cooperative data exchange program. Homes for sale that are listed by Brokers other than this Broker are marked with either the listing Broker's name or the MLS name or a logo provided by the MLS and the details page about such properties includes the name of the listing Brokers. Information provided is thought to be reliable but is not guaranteed to be accurate; you are advised to verify facts that are important to you. No warranties, expressed or implied, are provided for the data herein, or for their use or interpretation by the user. ZFC, the Florida Association of Realtors and its cooperating Multiple Listing Services do not create, control or review the property data displayed herein and take no responsibility for the content of such records. Federal law including the fair housing act prohibits discrimination on the basis of race, color, religion, sex, handicap, familial status or national origin in the sale, rental or financing of housing. IDX information is provided exclusively for personal, non-commercial use, and may not be used for any purpose other than to identify prospective properties consumers may be interested in purchasing. Information is deemed reliable but not guaranteed.
-
- Palm Beach
- Boca Raton
- Highland Beach
- Delray Beach
- Boynton Beach
- Lake Worth
- Wellington
- West Palm Beach
- Palm Beach Gardens
- Jupiter
- Singer Island
- Broward
- Fort Lauderdale
- Parkland
- Coral Springs
- Davie
- Weston
- Plantation
- Pembroke Pines
- Southwest Ranches
- Hillsboro Beach
- Miami/Dade
- Miami
- Miami Beach
- Aventura
- Sunny Isles
- Bal Harbour
- Surfside
- Coral Gables
- Treasure Coast
- Port Saint Lucie
- Fort Pierce
- Palm City
- Jensen Beach
- Vero Beach
- Stuart
- Hobe Sound
- Gulf Coast
- Naples
- Marco Island
- Fort Myers
- Bonita Springs
- Sarasota
- Tampa
- Clearwater



