CONTACT
FAVORITE
SHARE
CLAIM

1600 HIGHLAND CLUB LANE PALM HARBOR FL 34684 Sold 10/15/2025

Sold for $427,000
USD CAD EUR GBP BTC
1600 HIGHLAND CLUB LANE, PALM HARBOR, FL 34684 Sold 10/15/25 1600 HIGHLAND CLUB LANE, PALM HARBOR, FL 34684 Sold 10/15/25 1600 HIGHLAND CLUB LANE, PALM HARBOR, FL 34684 Sold 10/15/25 1600 HIGHLAND CLUB LANE, PALM HARBOR, FL 34684 Sold 10/15/25

Zev Freidus Broker / President
Zev Freidus
Broker / President
561-235-2161
Call Me
Text Me
Email Me
When clicking Request Info, you are registering to this website and agreeing that ZFC Real Estate, its affiliates or associated third parties may contact you, including with calls or texts by automated means. You also agree to our Terms of Use and Privacy Policy

Overview of 1600 Highland Club Ln

2 Bedrooms
2 Bathrooms
2 Car Garage
2,114 Square Feet
1,694SF Living Area
Pool:
No
Water: None
Year Built 1990

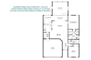
Beautifully updated 2-bedroom, 2-bathroom home with a large split and open floor plan offering nearly 1,700 square feet of heated living space in clubhouse village, located within highland lakes—palm harbor’s premier 55+ golf community! Just steps from the highland lakes main clubhouse facilities and amenities, this light and bright home features soaring vaulted ceilings in every room and a heated and cooled florida room addition, perfect for year-round enjoyment. The thoughtfully designed split-bedroom layout includes an indoor laundry room and an attached 2-car garage with ample room for both your vehicle and golf cart. The heart of the home is a stunning kitchen with granite countertops, solid wood cabinetry, an oversized pantry closet, a pass-through to the main living area ideal for entertaining, and a charming eat-in nook for casual dining. The primary suite is a true oasis with two walk-in closets, an en-suite bathroom featuring dual vanities, and a large walk-in shower. Major upgrades include a new roof (2024), new hvac system (2022), updated dual-pane windows and garage door! While this home lives like a single-family residence, it benefits from a low monthly clubhouse village fee covering cable, internet, lawn maintenance, exterior painting, trash, and pest control! Recently passed a 4-point inspection and perched safely above the floodplain with no storm damage or insurance concerns. As a highland lakes resident, enjoy free green fees on three private executive golf courses, a vibrant social scene, and access to a variety of clubs and activities. The main clubhouse offers entertainment, events, and that welcoming country club feel. Additional amenities include the lake tarpon lodge with a second heated pool, picnic areas, a fishing pier, community pontoon boats, and secure rv/boat storage—all included. This home offers modern updates, generous living space, and unbeatable community features. Don’t miss this rare opportunity to own a truly one-of-a-kind home in highland lakes!

This lovely single family home was built in 1990 and features 2 bedrooms, and 2 full bathrooms. This home for sale is 2,114 square feet, with 1,694 sq ft being air conditioned living space. The home has a 2 car garage and does not have a private swimming pool, although there is a community pool in the complex for use by residents.

Directions to this property are as follows: Us 19 N To Main Entrance (fountains) North Of Nebraska. Follow Entrance Road To A Left Onto Macgregor Dr. Cross Over Highlands Blvd Immediately After Passing The Main Clubhouse. Property Located On Your Left In Clubhouse Village.

Please contact your ZFC agent for more information about MLS# MFRTB8414689 or any other homes for sale in Palm Harbor or elsewhere in the Pinellas County area.

Features & Amenities

Appliances

Dishwasher, Disposal, Dryer, Electric Water Heater, Microwave, Range, Refrigerator, Washer

Other Equipment

Irrigation Equipment

Architecture

Florida, Traditional

Cooling

Central Air

Heating

Central

Flooring

Tile, Wood

Parking

Driveway, Garage Door Opener, Golf Cart Parking

Lot Size

9583

View

Garden view

Construction Materials

Block, Stucco

Interior Features

Cathedral Ceiling(s), Ceiling Fans(s), Eat-in Kitchen, High Ceilings, Living Room/Dining Room Combo, Open Floorplan, Primary Bedroom Main Floor, Solid Surface Counters, Solid Wood Cabinets, Split Bedroom, Vaulted Ceiling(s), Walk-In Closet(s)

Exterior Features

Lighting, Private Mailbox, Rain Gutters, Sidewalk

Lot Features

Corner Lot, Sidewalk, Paved

Patio And Porch Features

Covered, Front Porch, Patio

Roof

Shingle

Window Features

Skylight(s)

Utilities

Cable Available, Electricity Connected, Public, Sewer Connected, Underground Utilities, Water Connected

Water Body Name

L A K E T A R P O N

Laundry

Inside, Laundry Room

Zoning

R P D-7.5

Year Built

1990

Pets Allowed

No

Annual Real Estate Taxes

$1,656 (2024)

Legal Description

Highland Lakes Unit Seventeen Phase Four Lot 21

Property Type

Single Family Home

HOA Fees

$240 /Monthly

Other Association Fee

$164 /Monthly

Association Fee Includes

Cable T V, Pool, Escrow Reserves Fund, Internet, Maintenance Grounds, Pest Control, Recreational Facilities, Trash

Association Amenities

Cable T V, Clubhouse, Golf Course, Pickleball Court(s), Pool, Recreation Facilities, Shuffleboard Court, Spa/Hot Tub, Tennis Court(s)

Community Features

Association Recreation -Owned, Clubhouse, Deed Restrictions, Golf Carts O K, Golf, Pool, Sidewalks, Tennis Court(s)

Age Restricted

Yes

Direction Faces

Southeast

MLS Number

MFRTB8414689

Universal Property Id

U S-12103-N-052816389320000210-R-N

Days On Market

3

Community Name

Highland Lakes

1600 Highland Club Ln Price Calculator

Get Mortgage Quote For This Home

The payment calculator figures for 1600 Highland Club Ln should be used as an estimate only. Loan terms including interest rate, and required downpayment will vary with each lender and/or individual. RE taxes for this home for sale are estimated based on the actual property taxes for this property for the tax year 2024 which are $1,656 but will likely change when this home sells. These estimations are calculated from a list price of $435,000 and a 25% down payment and do not include homeowners insurance which will vary greatly depending on the home characteristics and location.

Recent Home Sales near 1600 Highland Club Ln

Address Sale Price Bed Bth Size Location Sale Date
1771 MACDONNELL DR $Log in to view 2 2/0 2,627SF Highland Lakes 04/30/2025
1575 WICKLOW DR $Log in to view 2 2/0 2,544SF Highland Lakes 08/26/2025
2608 CAMILLE DR $Log in to view 2 2/0 2,390SF Highland Lakes 10/31/2025
2875 LOMOND DR $Log in to view 2 2/0 2,374SF Highland Lakes 10/22/2025
2952 MACALPIN DR N $Log in to view 2 2/0 2,360SF Highland Lakes 06/09/2025
3224 HILARY CIR $Log in to view 2 2/0 2,340SF Highland Lakes 10/17/2025
2936 MACALPIN DR W $Log in to view 2 2/0 2,330SF Highland Lakes 12/08/2025
3220 BRAEMAR TER $Log in to view 2 2/0 2,329SF Highland Lakes 04/24/2025
1559 GLENGARRY DR $Log in to view 2 2/0 2,270SF Highland Lakes 07/01/2025
1434 GLENGARRY DR $Log in to view 2 2/0 2,270SF Highland Lakes 07/18/2025
1211 TIMBERBROOKE DR $Log in to view 2 2/0 2,248SF Highland Lakes 09/19/2025
1383 GLENGARRY DR $Log in to view 2 2/0 2,236SF Highland Lakes 04/28/2025

MLS# MFRTB8414689 Listing History

08/06/2025 Listed for sale by COLDWELL BANKER REALTY with MLS# MFRTB8414689 with a list price of $435,000.
10/15/2025 Sold For $427,000 by Kathie Lea with EXP REALTY.

Pinellas County Schools

Middle School

High School

This listing of 1600 Highland Club Ln Palm Harbor FL 34684 was last updated on 2025-10-15 20:44:04. Listing courtesy of COLDWELL BANKER REALTY.
MLS

Map of 1600 Highland Club Ln Palm Harbor FL 34684

Similar Homes For Sale

Zev Freidus Broker / President
Zev Freidus
Broker / President
561-235-2161
Call Me
Text Me
Email Me
When clicking Submit Request, you are registering to this website and agreeing that ZFC Real Estate, its affiliates or associated third parties may contact you, including with calls or texts by automated means. You also agree to our Terms of Use and Privacy Policy

The data relating to homes for sale or lease or other real estate for sale or for rent on the ZFC website comes in part from a cooperative data exchange program of the MLS in which this Broker participates. The real estate displayed may not be all of the homes in the database, or all of the properties listed with Brokers participating in the cooperative data exchange program. Homes for sale that are listed by Brokers other than this Broker are marked with either the listing Broker's name or the MLS name or a logo provided by the MLS and the details page about such properties includes the name of the listing Brokers. Information provided is thought to be reliable but is not guaranteed to be accurate; you are advised to verify facts that are important to you. No warranties, expressed or implied, are provided for the data herein, or for their use or interpretation by the user. ZFC, the Florida Association of Realtors and its cooperating Multiple Listing Services do not create, control or review the property data displayed herein and take no responsibility for the content of such records. Federal law including the fair housing act prohibits discrimination on the basis of race, color, religion, sex, handicap, familial status or national origin in the sale, rental or financing of housing. IDX information is provided exclusively for personal, non-commercial use, and may not be used for any purpose other than to identify prospective properties consumers may be interested in purchasing. Information is deemed reliable but not guaranteed.

Currency