17863 WHEAT STACK COURT PARRISH FL 34219
Overview of 17863 Wheat Stack Ct
No
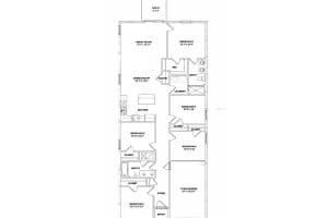
Under construction. All closing costs paid, $5,000 towards upgrades + special interest rates with the use of our preferred lender - now through 3/31. The alford is a one-story home that balances style, space, and comfort. Offering 5 bedrooms, 2 bathrooms, and 1,739 square feet, this floor plan provides plenty of room for families of all sizes. Its open-concept layout seamlessly connects the kitchen, dining, and living areas, creating a welcoming space thats ideal for gatherings or everyday living. The kitchen is a standout with shaker-style cabinetry, quartz countertops, and stainless-steel appliances, all overlooking the dining area for easy entertaining. With its thoughtful layout and modern finishes, the alford makes it easy to create the home that fits your lifestyle. The primary suite is tucked at the back of the home for added privacy, featuring a walk-in closet and a private bathroom with dual vanities and a separate space for the shower and toilet. Four additional bedrooms at the front of the home offers flexibility for family, guests, or even a home office.
This lovely single family home was built in 2026 and features 5 bedrooms, and 2 full bathrooms. This home for sale is 2,080 square feet, with 1,739 sq ft being air conditioned living space. The home has a 1 car garage and does not have a private swimming pool, although there is a community pool in the complex for use by residents.
Directions to this property are as follows: From Bradenton Take I-75 N Take Exit 220 Toward Fl-64 E For Half A Mile. Then, Use The Left 2 Lanes To Turn Left Onto Fl-64 E (follow Signs For Zolfo Springs/wauchula) For 4 Miles. When You Approach The Traffic Circle, Take The 2nd Exit And Stay On Fl-64 E For Half A Mile, At The Next Traffic Circle, Take The 3rd Exit Onto Rye Road E, For 3.5 Miles, Turn Right Onto Oak Orchard Run, Then Left Onto Whiskey Creek Trail To Find 17325 Whiskey Creek Trail Parrish, Fl 34219.
Please contact your ZFC agent for more information about MLS# MFRA4687228 or any other homes for sale in Parrish or elsewhere in the Manatee County area.
17863 Wheat Stack Ct Price Calculator
The payment calculator figures for 17863 Wheat Stack Ct should be used as an estimate only. Loan terms including interest rate, and required downpayment will vary with each lender and/or individual. RE taxes for this home for sale are estimated based on the actual property taxes for this property for the tax year 2026 which are $0 but will likely change when this home sells. These estimations are calculated from a list price of $397,990 and a 25% down payment and do not include homeowners insurance which will vary greatly depending on the home characteristics and location.
Recent Home Sales near 17863 Wheat Stack Ct
MLS# MFRA4687228 Listing History
Manatee County Schools
Elementary School
Middle School
High School
Map of 17863 Wheat Stack Ct Parrish FL 34219
The data relating to homes for sale or lease or other real estate for sale or for rent on the ZFC website comes in part from a cooperative data exchange program of the MLS in which this Broker participates. The real estate displayed may not be all of the homes in the database, or all of the properties listed with Brokers participating in the cooperative data exchange program. Homes for sale that are listed by Brokers other than this Broker are marked with either the listing Broker's name or the MLS name or a logo provided by the MLS and the details page about such properties includes the name of the listing Brokers. Information provided is thought to be reliable but is not guaranteed to be accurate; you are advised to verify facts that are important to you. No warranties, expressed or implied, are provided for the data herein, or for their use or interpretation by the user. ZFC, the Florida Association of Realtors and its cooperating Multiple Listing Services do not create, control or review the property data displayed herein and take no responsibility for the content of such records. Federal law including the fair housing act prohibits discrimination on the basis of race, color, religion, sex, handicap, familial status or national origin in the sale, rental or financing of housing. IDX information is provided exclusively for personal, non-commercial use, and may not be used for any purpose other than to identify prospective properties consumers may be interested in purchasing. Information is deemed reliable but not guaranteed.
-
- Palm Beach
- Boca Raton
- Highland Beach
- Delray Beach
- Boynton Beach
- Lake Worth
- Wellington
- West Palm Beach
- Palm Beach Gardens
- Jupiter
- Singer Island
- Broward
- Fort Lauderdale
- Parkland
- Coral Springs
- Davie
- Weston
- Plantation
- Pembroke Pines
- Southwest Ranches
- Hillsboro Beach
- Miami/Dade
- Miami
- Miami Beach
- Aventura
- Sunny Isles
- Bal Harbour
- Surfside
- Coral Gables
- Treasure Coast
- Port Saint Lucie
- Fort Pierce
- Palm City
- Jensen Beach
- Vero Beach
- Stuart
- Hobe Sound
- Gulf Coast
- Naples
- Marco Island
- Fort Myers
- Bonita Springs
- Sarasota
- Tampa
- Clearwater





