9164 AURELIA AVENUE PARRISH FL 34219
See Also...
Overview of 9164 Aurelia Ave
No
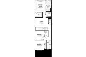
Don't miss this townhouse for sale in Crosswind Ranch! Under construction. Introducing the seastone, an elegant 1,828 square foot end-unit townhome that offers both style and functionality with 3 bedrooms, 2.5 baths, and a spacious 2-car garage. From the moment you arrive, the curb appeal is undeniable with a paver driveway and walkway leading to dual entriesone through the side front door and another through the garage. step inside to a bright, open-concept main floor that welcomes you with clear sightlines throughout the living, dining, and kitchen areasperfect for entertaining or relaxing with family. The kitchen is a chefs dream, featuring white shaker style cabinetry on two walls for generous storage,topped with new carrara marmi lightly veined quartz countertops a walk-in pantry, and a strategically placed island with a flush breakfast bar that seats up to four. The gray hued tile backsplash ties it all together. A convenient powder room is located just off the kitchen for guests and everyday ease. upstairs, a central loft provides a flexible living space while creating a natural separation between the secondary bedrooms and the owners suite. The two secondary bedrooms are positioned at the front of the home and share a full bathroom complete with a dual sink vanity and tub/shower comboideal for shared living. the owners suite is a private retreat, offering direct access to the laundry room and a generously sized walk-in closet with shelving on three sides. The en suite bathroom features a raised-height dual sink vanity, a glass-enclosed shower with water controls placed opposite the showerhead for convenient use, and a private water closet for added comfort. Oversized 17x17 gray tile flooring covers the main floor, providing a nice, neutral color palate. built with sustainability in mind, the seastone includes a hybrid hot water heater and boasts a hers rating, showcasing its energy efficiency and commitment to reducing utility costs. Whether you're entertaining guests or enjoying a quiet night in, the seastone offers the perfect balance of space, comfort, and thoughtful designa place you'll be proud to call home. Photos, renderings and plans are for illustrative purposes only and should never be relied upon and may vary from the actual home. Pricing, dimensions and features can change at any time without notice or obligation. The photos are from a furnished model home and not the home offered for sale.
This lovely townhouse was built in 2025 and features 3 bedrooms, and 2 full bathrooms plus 1 half bath. This townhouse for sale is 2,423 square feet, with 1,828 sq ft being air conditioned living space. The townhouse has a 2 car garage and does not have a private swimming pool, although there is a community pool in the complex for use by residents.
Directions to this property are as follows: Take I-75 S To Exit 229 Moccasin Wallow Rd. Go Left At The Stop Sign. Approx .4 Miles, Use First Exit In Traffic Circle To Take 301. In Aprox .5 Miles, Take A Left Onto 62w. Aprox .9 Miles, Turn Left Onto Spencer Parrish Rd. Then Take A Left Onto Aurelia Ave. Pass Ginko Run On The First Right, Home In End Unit On The Right Hand Side.
Please contact your ZFC agent for more information about MLS# MFRTB8442049 or any other townhouses for sale in Parrish or elsewhere in the Manatee County area.
9164 Aurelia Ave Price Calculator
The payment calculator figures for 9164 Aurelia Ave should be used as an estimate only. Loan terms including interest rate, and required downpayment will vary with each lender and/or individual. RE taxes for this townhouse for sale are estimated based on the actual property taxes for this property for the tax year 2025 which are $0 but will likely change when this townhouse sells. These estimations are calculated from a list price of $339,215 and a 25% down payment and do not include homeowners insurance which will vary greatly depending on the townhouse characteristics and location.
Recent Townhouse Sales near 9164 Aurelia Ave
MLS# MFRTB8442049 Listing History
Manatee County Schools
Elementary School
Middle School
High School
Map of 9164 Aurelia Ave Parrish FL 34219
The data relating to homes for sale or lease or other real estate for sale or for rent on the ZFC website comes in part from a cooperative data exchange program of the MLS in which this Broker participates. The real estate displayed may not be all of the homes in the database, or all of the properties listed with Brokers participating in the cooperative data exchange program. Homes for sale that are listed by Brokers other than this Broker are marked with either the listing Broker's name or the MLS name or a logo provided by the MLS and the details page about such properties includes the name of the listing Brokers. Information provided is thought to be reliable but is not guaranteed to be accurate; you are advised to verify facts that are important to you. No warranties, expressed or implied, are provided for the data herein, or for their use or interpretation by the user. ZFC, the Florida Association of Realtors and its cooperating Multiple Listing Services do not create, control or review the property data displayed herein and take no responsibility for the content of such records. Federal law including the fair housing act prohibits discrimination on the basis of race, color, religion, sex, handicap, familial status or national origin in the sale, rental or financing of housing. IDX information is provided exclusively for personal, non-commercial use, and may not be used for any purpose other than to identify prospective properties consumers may be interested in purchasing. Information is deemed reliable but not guaranteed.
-
- Palm Beach
- Boca Raton
- Highland Beach
- Delray Beach
- Boynton Beach
- Lake Worth
- Wellington
- West Palm Beach
- Palm Beach Gardens
- Jupiter
- Singer Island
- Broward
- Fort Lauderdale
- Parkland
- Coral Springs
- Davie
- Weston
- Plantation
- Pembroke Pines
- Southwest Ranches
- Hillsboro Beach
- Miami/Dade
- Miami
- Miami Beach
- Aventura
- Sunny Isles
- Bal Harbour
- Surfside
- Coral Gables
- Treasure Coast
- Port Saint Lucie
- Fort Pierce
- Palm City
- Jensen Beach
- Vero Beach
- Stuart
- Hobe Sound
- Gulf Coast
- Naples
- Marco Island
- Fort Myers
- Bonita Springs
- Sarasota
- Tampa
- Clearwater





