145 FRANCIS DRIVE PORT CHARLOTTE FL 33952
See Also...
Overview of 145 Francis Dr Ne
Yes
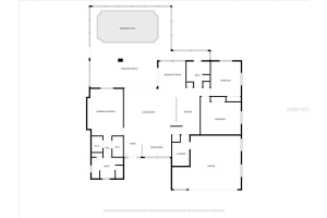
Exceptionally maintained waterfront pool residence offering a blend of comfort, efficiency, and coastal lifestyle features. Located on a canal overlooking higgs park, offering water access paired with rare but delightful views and tranquility. Approximately 1.03 miles to open water via the elkcam waterway passing under one fixed bridge or about 8 minutes at idle speed to the open waters of charlotte harbor. Major updates that translate into value for the new homeowner include a 2024 solar photovoltaic system (leased), 2024 pool cage rescreen, 2024 exterior tex-cote coolwall lifetime coating of stucco (not paint), 2022 roof, 2022 hot water heater, 2022 dock planking, and 2018 air conditioning. A kitchen reverse osmosis (2023), wind mitigation and 4-point inspections (2022), pool heater (2018), hot tub, and irrigation supplied by a private well also equate to substantial savings for new owners. Much more info is attached ask your agent for it, especially the features sheet. The interior welcomes guests with volume ceilings highlighting a bright great room with a 12 sliding glass door showcasing pool, canal, and peaceful green space views of the park. The kitchen is designed for daily living and entertaining with a breakfast bar, breakfast nook, and pantry. The primary suite offers two walk-in closets, dual comfort-height vanities, a soaking tub, and linen storage. Additional interior features include tile in wet areas, carpeted bedrooms, manabloc plumbing, and an interior laundry room with upgraded washer and dryer. Outdoor living maximizes the waterfront setting with a screened entry (2024 rescreen), covered lanai, heated pool, and expansive deck. Boating features include a concrete seawall, dock with water/electric/lighting, a fish cleaning station, a boat lift with an aluminum catwalk, and professionally wrapped pilings for durability. This property comes with a one-year home warranty for the buyer. Much more info is attached ask your agent for copies, especially the features list and warranty outline.
This lovely single family home was built in 1998 and features 3 bedrooms, and 2 full bathrooms. This home for sale is 2,773 square feet, with 1,966 sq ft being air conditioned living space. The home has a 2 car garage and has a private swimming pool.
Directions to this property are as follows: From Us 41 South, Turn Right Onto Harbor Blvd. Take 3rd Left Onto Francis Dr Ne. House Will Be On The Right.
Please contact your ZFC agent for more information about MLS# MFRC7521407 or any other homes for sale in Port Charlotte or elsewhere in the Charlotte County area.
145 Francis Dr Price Calculator
The payment calculator figures for 145 Francis Dr Ne should be used as an estimate only. Loan terms including interest rate, and required downpayment will vary with each lender and/or individual. RE taxes for this home for sale are estimated based on the actual property taxes for this property for the tax year 2025 which are $7,284 but will likely change when this home sells. These estimations are calculated from a list price of $549,000 and a 25% down payment and do not include homeowners insurance which will vary greatly depending on the home characteristics and location.
Recent Home Sales near 145 Francis Dr
MLS# MFRC7521407 Listing History
Charlotte County Schools
Elementary School
Middle School
High School
Map of 145 Francis Dr Port Charlotte FL 33952
The data relating to homes for sale or lease or other real estate for sale or for rent on the ZFC website comes in part from a cooperative data exchange program of the MLS in which this Broker participates. The real estate displayed may not be all of the homes in the database, or all of the properties listed with Brokers participating in the cooperative data exchange program. Homes for sale that are listed by Brokers other than this Broker are marked with either the listing Broker's name or the MLS name or a logo provided by the MLS and the details page about such properties includes the name of the listing Brokers. Information provided is thought to be reliable but is not guaranteed to be accurate; you are advised to verify facts that are important to you. No warranties, expressed or implied, are provided for the data herein, or for their use or interpretation by the user. ZFC, the Florida Association of Realtors and its cooperating Multiple Listing Services do not create, control or review the property data displayed herein and take no responsibility for the content of such records. Federal law including the fair housing act prohibits discrimination on the basis of race, color, religion, sex, handicap, familial status or national origin in the sale, rental or financing of housing. IDX information is provided exclusively for personal, non-commercial use, and may not be used for any purpose other than to identify prospective properties consumers may be interested in purchasing. Information is deemed reliable but not guaranteed.
-
- Palm Beach
- Boca Raton
- Highland Beach
- Delray Beach
- Boynton Beach
- Lake Worth
- Wellington
- West Palm Beach
- Palm Beach Gardens
- Jupiter
- Singer Island
- Broward
- Fort Lauderdale
- Parkland
- Coral Springs
- Davie
- Weston
- Plantation
- Pembroke Pines
- Southwest Ranches
- Hillsboro Beach
- Miami/Dade
- Miami
- Miami Beach
- Aventura
- Sunny Isles
- Bal Harbour
- Surfside
- Coral Gables
- Treasure Coast
- Port Saint Lucie
- Fort Pierce
- Palm City
- Jensen Beach
- Vero Beach
- Stuart
- Hobe Sound
- Gulf Coast
- Naples
- Marco Island
- Fort Myers
- Bonita Springs
- Sarasota
- Tampa
- Clearwater





