2100 KING HIGHWAY PORT CHARLOTTE FL 33980
See Also...
Overview of 2100 King Hwy #353
No
Don't miss this property for sale in Maple Leaf! Make a strong first impression with this beautifully upgraded 2005 jacobsen-built home, offering outstanding curb appeal and thoughtful upgrades throughout. From the moment you arrive, youll appreciate the attractive paver driveway, partially screened carport and additional rear driveway, providing plenty of space for parking and convenience. This home is perfect for both everyday living and entertainment, featuring an open-concept floor plan with two bedrooms plus a den/home office. The upgraded kitchen is designed to impress, features a stunning oversized island, custom cabinetry, elegant granite countertops and upgraded appliance package, making it as functional as it is stylish. An interior laundry room adds to the homes practicality and ease of living. Enjoy low maintenance living with no carpet, beautiful luxury vinyl tile flooring throughout. Large primary bedroom suite with private en-suite bath with double vanity and spacious walk-in shower. Guest bath features a tub/shower combination. Need extra storage or space for your golf cart? The impressive 216-square-foot shed with double doors has you covered. The large shed is perfect for the hobby enthusiast, use it as a workshop or craft room or for lots of extra storage. With its combination of quality construction, modern updates, and smart design, this home is a must see. This home is being sold partially furnished with a non-warranted used golf cart. Ac replaced in 2022. Roof re-shingled in 2023. **Please be sure to check out the two virtual tours including walk through video and 3d virtual*** home price includes certificate. Maple Leaf features an award winning 18 hole, par 62 golf course, 5 tennis courts, bocce ball, lawn bowling, 2 shuffleboard court centers, 4 heated swimming pools, 2 hot tubs, fitness facility, woodworking facility, 75+ clubs/activities, 4 pickleball courts, restaurants, tiki hut/bar and much more. It is true what they say, it's all about the lifestyle in Maple Leaf!
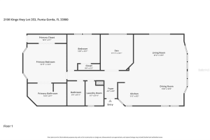
This lovely property was built in 2005 and features 2 bedrooms, and 2 full bathrooms. This property for sale is 1,566 square feet, with 1,566 sq ft being air conditioned living space. The property has a does not have a private swimming pool, although there is a community pool in the complex for use by residents.
Directions to this property are as follows: 24 Hour Gated Community, Photo Id And Appointment Required To Enter. From I75 Take Exit 170 (kings Hwy) Sw Towards Port Charlotte 1.4 Miles. Turn Left Into Maple Leaf. Continue Straight, No Turns. Home Will Be The Second House On The Left After You Pass Queens Ct. Please Park In Driveway If Available Or Along Street Near House, No Tires On The Grass Please.
Please contact your ZFC agent for more information about MLS# MFRC7525054 or any other properties for sale in Port Charlotte or elsewhere in the Charlotte County area.
2100 King Highway Price Calculator
The payment calculator figures for 2100 King Hwy #353 should be used as an estimate only. Loan terms including interest rate, and required downpayment will vary with each lender and/or individual. RE taxes for this property for sale are estimated based on the actual property taxes for this property for the tax year 2025 which are $830 but will likely change when this property sells. These estimations are calculated from a list price of $249,000 and a 25% down payment and do not include homeowners insurance which will vary greatly depending on the property characteristics and location.
Recent Property Sales near 2100 King Highway
MLS# MFRC7525054 Listing History
Charlotte County Schools
Elementary School
Middle School
High School
Map of 2100 King Highway Port Charlotte FL 33980
The data relating to homes for sale or lease or other real estate for sale or for rent on the ZFC website comes in part from a cooperative data exchange program of the MLS in which this Broker participates. The real estate displayed may not be all of the homes in the database, or all of the properties listed with Brokers participating in the cooperative data exchange program. Homes for sale that are listed by Brokers other than this Broker are marked with either the listing Broker's name or the MLS name or a logo provided by the MLS and the details page about such properties includes the name of the listing Brokers. Information provided is thought to be reliable but is not guaranteed to be accurate; you are advised to verify facts that are important to you. No warranties, expressed or implied, are provided for the data herein, or for their use or interpretation by the user. ZFC, the Florida Association of Realtors and its cooperating Multiple Listing Services do not create, control or review the property data displayed herein and take no responsibility for the content of such records. Federal law including the fair housing act prohibits discrimination on the basis of race, color, religion, sex, handicap, familial status or national origin in the sale, rental or financing of housing. IDX information is provided exclusively for personal, non-commercial use, and may not be used for any purpose other than to identify prospective properties consumers may be interested in purchasing. Information is deemed reliable but not guaranteed.
-
- Palm Beach
- Boca Raton
- Highland Beach
- Delray Beach
- Boynton Beach
- Lake Worth
- Wellington
- West Palm Beach
- Palm Beach Gardens
- Jupiter
- Singer Island
- Broward
- Fort Lauderdale
- Parkland
- Coral Springs
- Davie
- Weston
- Plantation
- Pembroke Pines
- Southwest Ranches
- Hillsboro Beach
- Miami/Dade
- Miami
- Miami Beach
- Aventura
- Sunny Isles
- Bal Harbour
- Surfside
- Coral Gables
- Treasure Coast
- Port Saint Lucie
- Fort Pierce
- Palm City
- Jensen Beach
- Vero Beach
- Stuart
- Hobe Sound
- Gulf Coast
- Naples
- Marco Island
- Fort Myers
- Bonita Springs
- Sarasota
- Tampa
- Clearwater





