5278 NW North Macedo Boulevard Port Saint Lucie FL 34983





See Also...
Overview of 5278 Nw North Macedo Boulevard
No
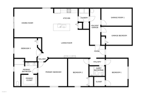
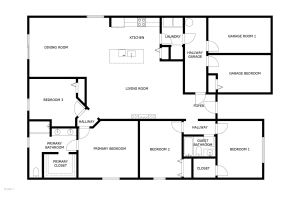
Discover this spacious 2019 maronda-built home offering 1,874 sq ft of living space in a north port st. Lucie location!this beautifully maintained cbs home features tile flooring throughout and a split floor plan ideal for privacy and functionality. The island kitchen is a chef's dream, complete with upgraded lighting, pantry, and a decorative fireplace wall that adds a stylish focal point to the main living area.the expansive dining room is perfect for entertaining and hosting family gatherings. The primary suite boasts a custom walk-in closet for added storage and convenience. Enjoy outdoor living with a rear pergola, two storage sheds, and low-maintenance pvc fencing!additional features include a 2-bedroom garage conversion (ideal for guests, extended family, or flexible no Additional features include a 2-bedroom garage conversion (ideal for guests, extended family, or flexible living space). Please note: seller has no disclosure regarding the existing solar panels. Don t miss this opportunity to own a move-in-ready home with modern upgrades and plenty of space!
This lovely single family home was built in 2019 and features 4 bedrooms, and 2 full bathrooms. This home for sale is 2,920 square feet, with 1,874 sq ft being air conditioned living space. The home has a 2 car garage and does not have a private swimming pool.
Directions to this property are as follows: Selvitz > Nw North Macedo.
Please contact your ZFC agent for more information about MLS# RX-11114314 or any other homes for sale in Port Saint Lucie or elsewhere in the St Lucie County area.
5278 Nw North Macedo Boulevard Price Calculator
The payment calculator figures for 5278 Nw North Macedo Boulevard should be used as an estimate only. Loan terms including interest rate, and required downpayment will vary with each lender and/or individual. RE taxes for this home for sale are estimated based on the actual property taxes for this property for the tax year 2024 which are $8,066 but will likely change when this home sells. These estimations are calculated from a list price of $385,000 and a 25% down payment and do not include homeowners insurance which will vary greatly depending on the home characteristics and location.
Recent Home Sales near 5278 Nw North Macedo Boulevard
MLS# RX-11114314 Listing History

Map of 5278 Nw North Macedo Boulevard Port Saint Lucie FL 34983
Similar communities in Port Saint Lucie
The data relating to homes for sale or lease or other real estate for sale or for rent on the ZFC website comes in part from a cooperative data exchange program of the MLS in which this Broker participates. The real estate displayed may not be all of the homes in the database, or all of the properties listed with Brokers participating in the cooperative data exchange program. Homes for sale that are listed by Brokers other than this Broker are marked with either the listing Broker's name or the MLS name or a logo provided by the MLS and the details page about such properties includes the name of the listing Brokers. Information provided is thought to be reliable but is not guaranteed to be accurate; you are advised to verify facts that are important to you. No warranties, expressed or implied, are provided for the data herein, or for their use or interpretation by the user. ZFC, the Florida Association of Realtors and its cooperating Multiple Listing Services do not create, control or review the property data displayed herein and take no responsibility for the content of such records. Federal law including the fair housing act prohibits discrimination on the basis of race, color, religion, sex, handicap, familial status or national origin in the sale, rental or financing of housing. IDX information is provided exclusively for personal, non-commercial use, and may not be used for any purpose other than to identify prospective properties consumers may be interested in purchasing. Information is deemed reliable but not guaranteed.
-
- Palm Beach
- Boca Raton
- Highland Beach
- Delray Beach
- Boynton Beach
- Lake Worth
- Wellington
- West Palm Beach
- Palm Beach Gardens
- Jupiter
- Singer Island
- Broward
- Fort Lauderdale
- Parkland
- Coral Springs
- Davie
- Weston
- Plantation
- Pembroke Pines
- Southwest Ranches
- Hillsboro Beach
- Miami/Dade
- Miami
- Miami Beach
- Aventura
- Sunny Isles
- Bal Harbour
- Surfside
- Coral Gables
- Treasure Coast
- Port Saint Lucie
- Fort Pierce
- Palm City
- Jensen Beach
- Vero Beach
- Stuart
- Hobe Sound
- Gulf Coast
- Naples
- Marco Island
- Fort Myers
- Bonita Springs
- Sarasota
- Tampa
- Clearwater
