142 CADDY ROAD ROTONDA WEST FL 33947 Sold 05/06/2025





See Also...
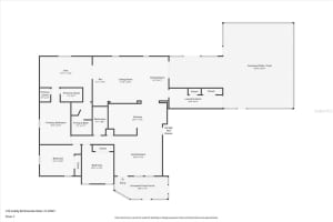
Overview of 142 Caddy Rd
Yes
Don't miss this home for sale in Rotonda West! Double lot pool home on the rotonda golf & country club's 13th hole! The spectacular mature landscape and lush green irrigated lawn creates a private oasis in your oversized backyard and pool area. There is a well for the irrigation system and the home is on public water and sewer. Plenty of space to lounge around the pool deck plus a paved area for outdoor grilling and eating. The covered lanai is well protected from weather and is a beautiful spot to relax or entertain. The pool cage (2023). The heated saltwater pool (2016) has 2 therapy jets, relaxing deck fountain jets and a cute round concrete tiki table and stools perfect for socializing while cooling off in the water. As you pull into the driveway, you are greeted by an inviting covered screen porch with plenty of room to sit and enjoy the morning sunrise. The porch flat roof was recertified in 2023. This home is spacious with lots of storage and the floor plan allows for several decorative and furniture layout options. As you enter the front door, there is a nice size living room. The spacious kitchen is equipped with plenty of cabinets and countertops. It is open to the back family room which is divided by a long breakfast bar. The ro system is hooked up to the ice maker. The family room has another corner bar tucked in the corner. Plenty of natural sunlight flows in from the windows facing the backyard and the sliders going out to the covered lanai. The 4th room is an excellent space to meet the new owners particular preferences. This room is separated from the family room by double pocket doors & adjoined by the master bedroom. It could easily be converted into a huge master suite including the bathroom with a soaking tub and walk-in shower. The extra space could be ideal for exercise equipment, a nursery, reading nook.... Or if you prefer to keep the room separate, it can be set up as a formal dining room, theatre studio or for additional bedding. This could be your amazing home in paradise! This home would also serve nicely as an airbnb property. Guests could drive their golf cart out the backyard onto one of several golf courses in Rotonda West or ride bicycles along the cape haze trails. This property is also located near the rotonda v tiki bar, the elks lodge and other establishments in rotonda or on placida road. Do you love to fish and boat? The freedom boat club is up the road off placida road. Or launch your own boat in Boca grande which is not a far drive. This home is in immaculate condition: new exterior paint, 2023 roof, 2024 ac, 2021 thermal pane windows with hurricane shutters, 2025 irrigation pump, and extra 16" insulation blown into the attic space. Call for your private showing today!
This lovely single family home was built in 1982 and features 4 bedrooms, and 2 full bathrooms. This home for sale is 2,961 square feet, with 2,132 sq ft being air conditioned living space. The home has a 2 car garage and has a private swimming pool.
Directions to this property are as follows: From Placida Road, Turn Onto Rotonda West Blvd. Turn Right On Rotonda Circle And Then Left Onto Caddy Rd.
Please contact your ZFC agent for more information about MLS# MFRD6140386 or any other homes for sale in Punta Gorda or elsewhere in the Charlotte County area.
142 Caddy Rd Price Calculator
The payment calculator figures for 142 Caddy Rd should be used as an estimate only. Loan terms including interest rate, and required downpayment will vary with each lender and/or individual. RE taxes for this home for sale are estimated based on the actual property taxes for this property for the tax year 2024 which are $3,290 but will likely change when this home sells. These estimations are calculated from a list price of $359,000 and a 25% down payment and do not include homeowners insurance which will vary greatly depending on the home characteristics and location.
Recent Home Sales near 142 Caddy Rd
MLS# MFRD6140386 Listing History
Charlotte County Schools
Elementary School
Middle School
High School

Map of 142 Caddy Rd Punta Gorda FL 33947
The data relating to homes for sale or lease or other real estate for sale or for rent on the ZFC website comes in part from a cooperative data exchange program of the MLS in which this Broker participates. The real estate displayed may not be all of the homes in the database, or all of the properties listed with Brokers participating in the cooperative data exchange program. Homes for sale that are listed by Brokers other than this Broker are marked with either the listing Broker's name or the MLS name or a logo provided by the MLS and the details page about such properties includes the name of the listing Brokers. Information provided is thought to be reliable but is not guaranteed to be accurate; you are advised to verify facts that are important to you. No warranties, expressed or implied, are provided for the data herein, or for their use or interpretation by the user. ZFC, the Florida Association of Realtors and its cooperating Multiple Listing Services do not create, control or review the property data displayed herein and take no responsibility for the content of such records. Federal law including the fair housing act prohibits discrimination on the basis of race, color, religion, sex, handicap, familial status or national origin in the sale, rental or financing of housing. IDX information is provided exclusively for personal, non-commercial use, and may not be used for any purpose other than to identify prospective properties consumers may be interested in purchasing. Information is deemed reliable but not guaranteed.
-
- Palm Beach
- Boca Raton
- Highland Beach
- Delray Beach
- Boynton Beach
- Lake Worth
- Wellington
- West Palm Beach
- Palm Beach Gardens
- Jupiter
- Singer Island
- Broward
- Fort Lauderdale
- Parkland
- Coral Springs
- Davie
- Weston
- Plantation
- Pembroke Pines
- Southwest Ranches
- Hillsboro Beach
- Miami/Dade
- Miami
- Miami Beach
- Aventura
- Sunny Isles
- Bal Harbour
- Surfside
- Coral Gables
- Treasure Coast
- Port Saint Lucie
- Fort Pierce
- Palm City
- Jensen Beach
- Vero Beach
- Stuart
- Hobe Sound
- Gulf Coast
- Naples
- Marco Island
- Fort Myers
- Bonita Springs
- Sarasota
- Tampa
- Clearwater
