25237 CADIZ DRIVE PUNTA GORDA FL 33955 (MFRA4677244)
See Also...
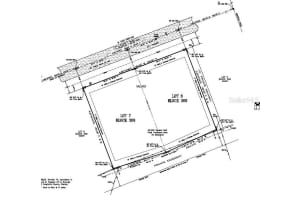
Overview of Parcel 422329185019
Don't miss this land for sale in Burnt Store Village! Exceptional opportunity to purchase two side-by-side buildable lots in the desirable, deed-restricted community of Burnt Store Village, offering a combined total of approximately 20,400 sf (.46 acre) when purchased together. (Second parcel available separately under mls a4677165.) build your dream home, family compound or hold the second lot for investment/later, whatever life may bring you. Both lots are cleared future home sites with city water and sewer already in place, saving time and upfront development costs. The rear of the property features a highly-desirable greenbelt buffer, providing added privacy and a pleasant natural backdrop. Ideally located in the center section of Burnt Store Village, the lots are just a short distance from the village community park, which includes a scenic lake with walking path, picnic tables, and playground. The neighborhood is known for its quiet streets, well-maintained surroundings, and walkable, bike-friendly layout. Burnt Store Village is positioned just south of charlotte harbor and north of burnt store marina, where residents enjoy access to golf, boating, marina services, and waterfront dining. Conveniently located near i-75, with historic punta gorda minutes to the north and cape coral to the south, this is an excellent setting to build a primary residence, seasonal home, or investment property. (This is lot 7.)
Please contact your ZFC agent for more information about MLS# MFRA4677244 or any other land for sale in Punta Gorda or elsewhere in the Charlotte County area.
25237 Cadiz Dr Price Calculator
The payment calculator figures for Parcel 422329185019 should be used as an estimate only. Loan terms including interest rate, and required downpayment will vary with each lender and/or individual. RE taxes for this land for sale are estimated based on the actual property taxes for this property for the tax year 2025 which are $627 but will likely change when this land sells. These estimations are calculated from a list price of $55,000 and a 25% down payment and do not include homeowners insurance which will vary greatly depending on the land characteristics and location.
Recent Land Sales near 25237 Cadiz Dr
MLS# MFRA4677244 Listing History
Charlotte County Schools
Elementary School
Middle School
High School
Map of 25237 Cadiz Dr Punta Gorda FL 33955
The data relating to homes for sale or lease or other real estate for sale or for rent on the ZFC website comes in part from a cooperative data exchange program of the MLS in which this Broker participates. The real estate displayed may not be all of the homes in the database, or all of the properties listed with Brokers participating in the cooperative data exchange program. Homes for sale that are listed by Brokers other than this Broker are marked with either the listing Broker's name or the MLS name or a logo provided by the MLS and the details page about such properties includes the name of the listing Brokers. Information provided is thought to be reliable but is not guaranteed to be accurate; you are advised to verify facts that are important to you. No warranties, expressed or implied, are provided for the data herein, or for their use or interpretation by the user. ZFC, the Florida Association of Realtors and its cooperating Multiple Listing Services do not create, control or review the property data displayed herein and take no responsibility for the content of such records. Federal law including the fair housing act prohibits discrimination on the basis of race, color, religion, sex, handicap, familial status or national origin in the sale, rental or financing of housing. IDX information is provided exclusively for personal, non-commercial use, and may not be used for any purpose other than to identify prospective properties consumers may be interested in purchasing. Information is deemed reliable but not guaranteed.
-
- Palm Beach
- Boca Raton
- Highland Beach
- Delray Beach
- Boynton Beach
- Lake Worth
- Wellington
- West Palm Beach
- Palm Beach Gardens
- Jupiter
- Singer Island
- Broward
- Fort Lauderdale
- Parkland
- Coral Springs
- Davie
- Weston
- Plantation
- Pembroke Pines
- Southwest Ranches
- Hillsboro Beach
- Miami/Dade
- Miami
- Miami Beach
- Aventura
- Sunny Isles
- Bal Harbour
- Surfside
- Coral Gables
- Treasure Coast
- Port Saint Lucie
- Fort Pierce
- Palm City
- Jensen Beach
- Vero Beach
- Stuart
- Hobe Sound
- Gulf Coast
- Naples
- Marco Island
- Fort Myers
- Bonita Springs
- Sarasota
- Tampa
- Clearwater


