13108 MONACH ISLES DRIVE RIVERVIEW FL 33579
See Also...
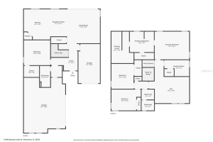
Overview of 13108 Monach Isles Dr
Yes
Don't miss this home for sale in Triple Creek! One or more photo(s) has been virtually staged. Live the florida dream in Triple Creek! This stunning west bay-built home checks all the boxes for luxury, comfort, and lifestyle! Located in the sought-after Triple Creek community, this home features a heated saltwater pool, breathtaking water views, and a 3-car garageall on a beautifully landscaped lot filled with lush tropical palms. Inside, you'll find 4 spacious bedrooms, a bonus loft, and upgrades around every corner. The open-concept floor plan offers a seamless flow between the living room, dining area, and upgraded kitchenperfect for both entertaining and everyday living. The kitchen is a chefs dream with stainless steel appliances, built-in oven, walk-in pantry, and a large island. A triple sliding glass door opens to the show-stopping backyard, blending indoor and outdoor living with ease. Downstairs includes a private bedroom and full bathideal for guests or multi-generational living. Upstairs, the oversized primary suite is a true retreat, featuring a huge walk-in closet and a spa-like ensuite with dual sinks, soaking tub, and a spacious shower. The versatile bonus loft with custom cabinetry is perfect for a playroom, game room, or additional living space. Throughout the home, youll love the upgraded wood-look tile flooring, ceiling fans in every room, and thoughtful finishes that make this home both stylish and functional. Best of all, its located in flood zone xso no lender-required flood insuranceand includes hurricane shutters for added peace of mind. Step outside to your private backyard oasis and unwind beside the sparkling custom pool with tranquil water features. Whether you're soaking in the sun, enjoying local wildlife by the water, or dining under the stars, this space was made for year-round florida fun. As a resident of Triple Creek, youll enjoy incredible amenities like multiple resort-style pools, a splash pad, tennis and pickleball courts, basketball courts, playgrounds, a fitness center, scenic walking trails, and a dog park. With schools, shopping, dining, and easy highway access just minutes away, this home truly offers the best of florida living. Schedule your private showing today and start living your best life in Triple Creek!
This lovely single family home was built in 2019 and features 4 bedrooms, and 3 full bathrooms. This home for sale is 3,846 square feet, with 2,787 sq ft being air conditioned living space. The home has a 3 car garage and has a private swimming pool.
Directions to this property are as follows: From I-75 - Take The Exit Toward Big Bend Rd, Merge East Onto Big Bend Rd, Turn Right Onto Balm Riverview Rd, Turn Left Onto Triple Creek Blvd Into Community, At The Traffic Circle, Take The 2nd Exit And Stay On Triple Creek Blvd, Turn Left Onto Monach Isles Dr - House Will Be On The Left.
Please contact your ZFC agent for more information about MLS# MFRTB8468979 or any other homes for sale in Riverview or elsewhere in the Hillsborough County area.
13108 Monach Isles Dr Price Calculator
The payment calculator figures for 13108 Monach Isles Dr should be used as an estimate only. Loan terms including interest rate, and required downpayment will vary with each lender and/or individual. RE taxes for this home for sale are estimated based on the actual property taxes for this property for the tax year 2025 which are $11,577 but will likely change when this home sells. These estimations are calculated from a list price of $599,900 and a 25% down payment and do not include homeowners insurance which will vary greatly depending on the home characteristics and location.
Recent Home Sales near 13108 Monach Isles Dr
MLS# MFRTB8468979 Listing History
Hillsborough County Schools
Elementary School
Middle School
High School
Map of 13108 Monach Isles Dr Riverview FL 33579
The data relating to homes for sale or lease or other real estate for sale or for rent on the ZFC website comes in part from a cooperative data exchange program of the MLS in which this Broker participates. The real estate displayed may not be all of the homes in the database, or all of the properties listed with Brokers participating in the cooperative data exchange program. Homes for sale that are listed by Brokers other than this Broker are marked with either the listing Broker's name or the MLS name or a logo provided by the MLS and the details page about such properties includes the name of the listing Brokers. Information provided is thought to be reliable but is not guaranteed to be accurate; you are advised to verify facts that are important to you. No warranties, expressed or implied, are provided for the data herein, or for their use or interpretation by the user. ZFC, the Florida Association of Realtors and its cooperating Multiple Listing Services do not create, control or review the property data displayed herein and take no responsibility for the content of such records. Federal law including the fair housing act prohibits discrimination on the basis of race, color, religion, sex, handicap, familial status or national origin in the sale, rental or financing of housing. IDX information is provided exclusively for personal, non-commercial use, and may not be used for any purpose other than to identify prospective properties consumers may be interested in purchasing. Information is deemed reliable but not guaranteed.
-
- Palm Beach
- Boca Raton
- Highland Beach
- Delray Beach
- Boynton Beach
- Lake Worth
- Wellington
- West Palm Beach
- Palm Beach Gardens
- Jupiter
- Singer Island
- Broward
- Fort Lauderdale
- Parkland
- Coral Springs
- Davie
- Weston
- Plantation
- Pembroke Pines
- Southwest Ranches
- Hillsboro Beach
- Miami/Dade
- Miami
- Miami Beach
- Aventura
- Sunny Isles
- Bal Harbour
- Surfside
- Coral Gables
- Treasure Coast
- Port Saint Lucie
- Fort Pierce
- Palm City
- Jensen Beach
- Vero Beach
- Stuart
- Hobe Sound
- Gulf Coast
- Naples
- Marco Island
- Fort Myers
- Bonita Springs
- Sarasota
- Tampa
- Clearwater





