320 CASCADE BEND DRIVE RUSKIN FL 33570 Sold 06/28/2023
See Also...
Overview of 320 Cascade Bend Dr
No
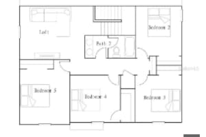
Don't miss this home for sale in River Bend! Welcome to this beautiful, spacious two story home in riverbend west. This home has 5 bedrooms, including a first floor master suite. The second floor loft and formal living (flex) room give ample space to spread out, while the open concept kitchen, dining area and living room are the perfect spot for the family to gather. Well appointed kitchen offers plenty of cabinet space, a large island with breakfast bar, cherry cabinets and stainless steel appliances, as well as newly installed garbage disposal and reverse osmosis system. Low maintenance ceramic tile floors throughout foyer, kitchen, living room, dining area, laundry room and all baths. This house was upgraded with high efficiency heating and air conditioning, ceiling fans, led lighting in the kitchen, and more. The community features a pool and cabana, playground, firepit overlooking the lake and dog park. Fantastic location, close to downtown, beaches, military base, bradenton, tampa.
This lovely single family home was built in 2018 and features 5 bedrooms, and 2 full bathrooms plus 1 half bath. This home for sale is 3,420 square feet, with 2,939 sq ft being air conditioned living space. The home has a 2 car garage and does not have a private swimming pool.
Directions to this property are as follows: Take East Shell Point Rd To S Tamiani Trail/ N Us Hwy 41 Turn Left Onto 14th Ave Sw Turn Right Onto 1st St Sw Turn Right Onto Smokey Hill Ave Turn Right Onto Cascade Bend Dr. House Will Be On Left.
Please contact your ZFC agent for more information about MLS# MFRA4571185 or any other homes for sale in Ruskin or elsewhere in the Hillsborough County area.
320 Cascade Bend Dr Price Calculator
The payment calculator figures for 320 Cascade Bend Dr should be used as an estimate only. Loan terms including interest rate, and required downpayment will vary with each lender and/or individual. RE taxes for this home for sale are estimated based on the actual property taxes for this property for the tax year 2022 which are $5,253 but will likely change when this home sells. These estimations are calculated from a list price of $374,900 and a 25% down payment and do not include homeowners insurance which will vary greatly depending on the home characteristics and location.
Recent Home Sales near 320 Cascade Bend Dr
MLS# MFRA4571185 Listing History
Hillsborough County Schools
Elementary School
Middle School
High School
Public Transportation
Hillsborough Area Regional Transit:
Route 31 South Hillsborough County
Hillsborough Area Regional Transit:
Map of 320 Cascade Bend Dr Ruskin FL 33570
The data relating to homes for sale or lease or other real estate for sale or for rent on the ZFC website comes in part from a cooperative data exchange program of the MLS in which this Broker participates. The real estate displayed may not be all of the homes in the database, or all of the properties listed with Brokers participating in the cooperative data exchange program. Homes for sale that are listed by Brokers other than this Broker are marked with either the listing Broker's name or the MLS name or a logo provided by the MLS and the details page about such properties includes the name of the listing Brokers. Information provided is thought to be reliable but is not guaranteed to be accurate; you are advised to verify facts that are important to you. No warranties, expressed or implied, are provided for the data herein, or for their use or interpretation by the user. ZFC, the Florida Association of Realtors and its cooperating Multiple Listing Services do not create, control or review the property data displayed herein and take no responsibility for the content of such records. Federal law including the fair housing act prohibits discrimination on the basis of race, color, religion, sex, handicap, familial status or national origin in the sale, rental or financing of housing. IDX information is provided exclusively for personal, non-commercial use, and may not be used for any purpose other than to identify prospective properties consumers may be interested in purchasing. Information is deemed reliable but not guaranteed.
-
- Palm Beach
- Boca Raton
- Highland Beach
- Delray Beach
- Boynton Beach
- Lake Worth
- Wellington
- West Palm Beach
- Palm Beach Gardens
- Jupiter
- Singer Island
- Broward
- Fort Lauderdale
- Parkland
- Coral Springs
- Davie
- Weston
- Plantation
- Pembroke Pines
- Southwest Ranches
- Hillsboro Beach
- Miami/Dade
- Miami
- Miami Beach
- Aventura
- Sunny Isles
- Bal Harbour
- Surfside
- Coral Gables
- Treasure Coast
- Port Saint Lucie
- Fort Pierce
- Palm City
- Jensen Beach
- Vero Beach
- Stuart
- Hobe Sound
- Gulf Coast
- Naples
- Marco Island
- Fort Myers
- Bonita Springs
- Sarasota
- Tampa
- Clearwater





