148 BEECHWOOD DRIVE SAFETY HARBOR FL 34695 Sold 05/01/2026
Overview of 148 Beechwood Dr #57
No
Welcome home to briar creek in safety harbor! Rare three bedroom home in this land-owned, x flood zone, highly sought-after 55+, golf cart-friendly community, in north pinellas county near tampa bay. enjoy low monthly fees of just $235, including water, sewer, trash, lawn care, and access to the clubhouse with heated/cooled pool and spa, shuffleboard and lots of fun activities! this pristine, move-in ready home features a spacious open floor plan with luxury vinyl flooring throughoutno carpet. Neutral tones and decor create a bright, modern feel. the updated kitchen and two fully remodeled bathrooms afford stylish, functional living. The oversized primary suite includes dual closets with organizers and a beautifully updated en-suite bath with double sinks and designer finishes. enjoy added privacy with no rear neighbors, located in a quiet non-pet area of the community (service pets allowed with approval). Briar creek is known for its mature trees, scenic lakes, and friendly atmosphere, with access to walking and biking trails along lake tarpon outfall canal. conveniently located just minutes from shopping, dining, medical facilities, and more, while still offering a peaceful, country-like setting. a rare opportunity in one of safety harbors most desirable 55+ communitiesschedule your showing today!
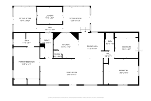
This lovely property was built in 1980 and features 3 bedrooms, and 2 full bathrooms. This property for sale is 2,040 square feet, with 1,344 sq ft being air conditioned living space. The property has a does not have a private swimming pool.
Directions to this property are as follows: North On Mcmullen Booth From State Road 658, Right On Briar Creek. Immediately Before Mease Hospital.
Please contact your ZFC agent for more information about MLS# MFRTB8488348 or any other properties for sale in Safety Harbor or elsewhere in the Pinellas County area.
148 Beechwood Dr Price Calculator
The payment calculator figures for 148 Beechwood Dr #57 should be used as an estimate only. Loan terms including interest rate, and required downpayment will vary with each lender and/or individual. RE taxes for this property for sale are estimated based on the actual property taxes for this property for the tax year 2025 which are $2,245 but will likely change when this property sells. These estimations are calculated from a list price of $185,500 and a 25% down payment and do not include homeowners insurance which will vary greatly depending on the property characteristics and location.
Recent Property Sales near 148 Beechwood Dr
MLS# MFRTB8488348 Listing History
Pinellas County Schools
Elementary School
Middle School
High School
Public Transportation
Pinellas Suncoast Transit Authority:
Route 62 TYRONE SQUARE MALL/BOOT RANCH
Pinellas Suncoast Transit Authority:
Route 62 TYRONE SQUARE MALL/BOOT RANCH
Pinellas Suncoast Transit Authority:
Route 62 TYRONE SQUARE MALL/BOOT RANCH
Pinellas Suncoast Transit Authority:
Route 62 TYRONE SQUARE MALL/BOOT RANCH
Pinellas Suncoast Transit Authority:
Map of 148 Beechwood Dr Safety Harbor FL 34695
The data relating to homes for sale or lease or other real estate for sale or for rent on the ZFC website comes in part from a cooperative data exchange program of the MLS in which this Broker participates. The real estate displayed may not be all of the homes in the database, or all of the properties listed with Brokers participating in the cooperative data exchange program. Homes for sale that are listed by Brokers other than this Broker are marked with either the listing Broker's name or the MLS name or a logo provided by the MLS and the details page about such properties includes the name of the listing Brokers. Information provided is thought to be reliable but is not guaranteed to be accurate; you are advised to verify facts that are important to you. No warranties, expressed or implied, are provided for the data herein, or for their use or interpretation by the user. ZFC, the Florida Association of Realtors and its cooperating Multiple Listing Services do not create, control or review the property data displayed herein and take no responsibility for the content of such records. Federal law including the fair housing act prohibits discrimination on the basis of race, color, religion, sex, handicap, familial status or national origin in the sale, rental or financing of housing. IDX information is provided exclusively for personal, non-commercial use, and may not be used for any purpose other than to identify prospective properties consumers may be interested in purchasing. Information is deemed reliable but not guaranteed.
-
- Palm Beach
- Boca Raton
- Highland Beach
- Delray Beach
- Boynton Beach
- Lake Worth
- Wellington
- West Palm Beach
- Palm Beach Gardens
- Jupiter
- Singer Island
- Broward
- Fort Lauderdale
- Parkland
- Coral Springs
- Davie
- Weston
- Plantation
- Pembroke Pines
- Southwest Ranches
- Hillsboro Beach
- Miami/Dade
- Miami
- Miami Beach
- Aventura
- Sunny Isles
- Bal Harbour
- Surfside
- Coral Gables
- Treasure Coast
- Port Saint Lucie
- Fort Pierce
- Palm City
- Jensen Beach
- Vero Beach
- Stuart
- Hobe Sound
- Gulf Coast
- Naples
- Marco Island
- Fort Myers
- Bonita Springs
- Sarasota
- Tampa
- Clearwater





