2306 Morning Rose Ct Sanford FL 32771 Sold 04/14/2023
See Also...
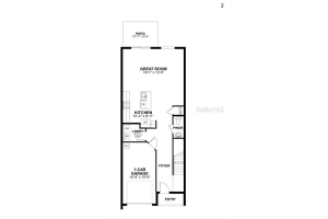
Overview of 2306 Morning Rose Ct
No
Don't miss this townhouse for sale in Towns At Lake Monroe Commons! Under construction. Welcome home to the san jose, located at 2306 morning rose court. This new sanford home delivers 3 bedrooms, 2.5 bathrooms, and a loft. The 1-car garage with a 2-car wide driveway will allow parking for the residents and their guests. you'll find the kitchen and great room tucked in the back of the home. This allows for added privacy from the entrance as well as views of the backyard. This open-concept floorplan is perfect for entertaining! the expertly selected kitchen showcases 42" expresso cabinets, white quartz countertops, ge® stainless steel appliances, and a subway tile backsplash. The spacious kitchen pantry provides extra storage, while the island provides a seating space.
This lovely townhouse was built in 2022 and features 3 bedrooms, and 2 full bathrooms plus 1 half bath. This townhouse for sale is 1,828 square feet, with 1,569 sq ft being air conditioned living space. The townhouse has a 1 car garage and does not have a private swimming pool.
Directions to this property are as follows: I4 North To Exit 101b Keep Right Merge Onto Sr46 Community, Go Down About 2 Miles And Pass The Sunrail Train Station On Right, And Over The Over Pass And Directly On The Left.
Please contact your ZFC agent for more information about MLS# MFRO6078473 or any other townhouses for sale in Sanford or elsewhere in the Seminole County area.
2306 Morning Rose Ct Price Calculator
The payment calculator figures for 2306 Morning Rose Ct should be used as an estimate only. Loan terms including interest rate, and required downpayment will vary with each lender and/or individual. RE taxes for this townhouse for sale are estimated based on the actual property taxes for this property for the tax year 2022 which are $4,634 but will likely change when this townhouse sells. These estimations are calculated from a list price of $362,690 and a 25% down payment and do not include homeowners insurance which will vary greatly depending on the townhouse characteristics and location.
Recent Townhouse Sales near 2306 Morning Rose Ct
MLS# MFRO6078473 Listing History
Map of 2306 Morning Rose Ct Sanford FL 32771
The data relating to homes for sale or lease or other real estate for sale or for rent on the ZFC website comes in part from a cooperative data exchange program of the MLS in which this Broker participates. The real estate displayed may not be all of the homes in the database, or all of the properties listed with Brokers participating in the cooperative data exchange program. Homes for sale that are listed by Brokers other than this Broker are marked with either the listing Broker's name or the MLS name or a logo provided by the MLS and the details page about such properties includes the name of the listing Brokers. Information provided is thought to be reliable but is not guaranteed to be accurate; you are advised to verify facts that are important to you. No warranties, expressed or implied, are provided for the data herein, or for their use or interpretation by the user. ZFC, the Florida Association of Realtors and its cooperating Multiple Listing Services do not create, control or review the property data displayed herein and take no responsibility for the content of such records. Federal law including the fair housing act prohibits discrimination on the basis of race, color, religion, sex, handicap, familial status or national origin in the sale, rental or financing of housing. IDX information is provided exclusively for personal, non-commercial use, and may not be used for any purpose other than to identify prospective properties consumers may be interested in purchasing. Information is deemed reliable but not guaranteed.
-
- Palm Beach
- Boca Raton
- Highland Beach
- Delray Beach
- Boynton Beach
- Lake Worth
- Wellington
- West Palm Beach
- Palm Beach Gardens
- Jupiter
- Singer Island
- Broward
- Fort Lauderdale
- Parkland
- Coral Springs
- Davie
- Weston
- Plantation
- Pembroke Pines
- Southwest Ranches
- Hillsboro Beach
- Miami/Dade
- Miami
- Miami Beach
- Aventura
- Sunny Isles
- Bal Harbour
- Surfside
- Coral Gables
- Treasure Coast
- Port Saint Lucie
- Fort Pierce
- Palm City
- Jensen Beach
- Vero Beach
- Stuart
- Hobe Sound
- Gulf Coast
- Naples
- Marco Island
- Fort Myers
- Bonita Springs
- Sarasota
- Tampa
- Clearwater





