760 LAKE MARKHAM RD SANFORD FL 32771
Overview of 760 Lake Markham Rd
Yes
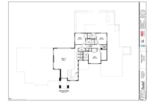
Pre-construction. To be built. Discover this custom-designed contemporary home offering 5,752 square feet under air with four bedrooms, four full baths and two half baths. This magnificent estate home is to be built on an amazing lakefront property, ideally set on the northeastern shore of lake markham. A wide pivot door opens into a dramatic two-story foyer and great room with floor-to-ceiling glass, framing sweeping views of the pool and lake sylvan. A floating staircase and upstairs overlook enhance the sense of openness. The gourmet kitchen includes an oversized scullery, while the game room with wet bar flows to an expansive covered patio with summer kitchen, island and retractable screens. The owners suite features oversized dual closets, a spa-like bath with steam shower, and a private stackable washer and dryer. Three bedrooms with en suites upstairs offer comfort and privacy. Additional highlights include a large laundry with dog wash and dog run, air-conditioned storage, a future elevator, and a three-car garage with two-car and oversized single-car bays. Outdoor living shines with a pool, dock and beautifully designed landscaping.
This luxury single family home was built in 2026 and features 4 bedrooms, and 4 full bathrooms plus 2 half baths. This home for sale is 7,943 square feet, with 5,752 sq ft being air conditioned living space. The home has a 3 car garage and has a private swimming pool.
Directions to this property are as follows: From Markham Woods Rd, W On Markham Rd, N On Lake Markham Rd.
Please contact your ZFC agent for more information about MLS# MFRO6344118 or any other homes for sale in Sanford or elsewhere in the Seminole County area.
760 Lake Markham Rd Price Calculator
The payment calculator figures for 760 Lake Markham Rd should be used as an estimate only. Loan terms including interest rate, and required downpayment will vary with each lender and/or individual. RE taxes for this home for sale are estimated based on the actual property taxes for this property for the tax year 2024 which are $11,749 but will likely change when this home sells. These estimations are calculated from a list price of $4,540,900 and a 25% down payment and do not include homeowners insurance which will vary greatly depending on the home characteristics and location.
Recent Home Sales near 760 Lake Markham Rd
MLS# MFRO6344118 Listing History
Map of 760 Lake Markham Rd Sanford FL 32771
The data relating to homes for sale or lease or other real estate for sale or for rent on the ZFC website comes in part from a cooperative data exchange program of the MLS in which this Broker participates. The real estate displayed may not be all of the homes in the database, or all of the properties listed with Brokers participating in the cooperative data exchange program. Homes for sale that are listed by Brokers other than this Broker are marked with either the listing Broker's name or the MLS name or a logo provided by the MLS and the details page about such properties includes the name of the listing Brokers. Information provided is thought to be reliable but is not guaranteed to be accurate; you are advised to verify facts that are important to you. No warranties, expressed or implied, are provided for the data herein, or for their use or interpretation by the user. ZFC, the Florida Association of Realtors and its cooperating Multiple Listing Services do not create, control or review the property data displayed herein and take no responsibility for the content of such records. Federal law including the fair housing act prohibits discrimination on the basis of race, color, religion, sex, handicap, familial status or national origin in the sale, rental or financing of housing. IDX information is provided exclusively for personal, non-commercial use, and may not be used for any purpose other than to identify prospective properties consumers may be interested in purchasing. Information is deemed reliable but not guaranteed.
-
- Palm Beach
- Boca Raton
- Highland Beach
- Delray Beach
- Boynton Beach
- Lake Worth
- Wellington
- West Palm Beach
- Palm Beach Gardens
- Jupiter
- Singer Island
- Broward
- Fort Lauderdale
- Parkland
- Coral Springs
- Davie
- Weston
- Plantation
- Pembroke Pines
- Southwest Ranches
- Hillsboro Beach
- Miami/Dade
- Miami
- Miami Beach
- Aventura
- Sunny Isles
- Bal Harbour
- Surfside
- Coral Gables
- Treasure Coast
- Port Saint Lucie
- Fort Pierce
- Palm City
- Jensen Beach
- Vero Beach
- Stuart
- Hobe Sound
- Gulf Coast
- Naples
- Marco Island
- Fort Myers
- Bonita Springs
- Sarasota
- Tampa
- Clearwater





