8055 112TH STREET SEMINOLE FL 33772 Sold 10/08/2025
See Also...
Overview of 8055 112th St #104
No
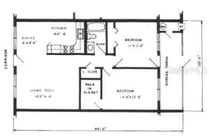
Don't miss this condo for sale in Seminole Garden Apartments! This isn't just a condo, it's a lifestyle! This completely redone 2/1 ground floor walkout has easy access to the vibrant green space around the peaceful pond with gentle sounds of a sparkling fountain. Ample opportunity for leisurely strolls on the sidewalk, a waterside bench for relaxing or just simply observing the natural beauty and wildlife drawn to the waterfront. Imagine starting each day in this meticulously upgraded home. Step into beautiful flooring throughout, highly desired hurricane impact resistant windows, a gourmet style granite kitchen and upgraded cabinets with newer appliances. Enjoy your high-end bathroom with walk-in shower, stone vanity and tiled floors which provide beauty and ease of use and upkeep. Includes spacious bedrooms, a walk-in closet and natural light. The lanai with it's 'wall of windows', inspires you to enjoy your morning coffee (no matter the weather) from inside or outside on the patio. Socialize at the heated pool and spa or in the large clubhouse with pool tables, library and fitness equipment. Join in the fun of regular card playing, shuffleboard, performing events, etc. All this and just a short distance to shopping, restaurants, movies and a free shuttle bus 5 days a week! You can have it all - this home offers a unique blend of comfortable living and a tranquil connection with nature.
This lovely condo was built in 1968 and features 2 bedrooms, and 1 full bathrooms. This condo for sale is 874 square feet, with 874 sq ft being air conditioned living space. The condo does not have a private swimming pool, although there is a community pool in the complex for use by residents.
Directions to this property are as follows: Us Hwy 19 To West On Bryan Dairy, South On Seminole Blvd, West On Temple Terrace, North On Liberty, North On 112th Street, First Parking Lot On Right. Bldg 17-f, Unit #104 Across From Elevator. Right Behind Seminole City Center Shopping (home Goods). Only 4 Story Bldg.
Please contact your ZFC agent for more information about MLS# MFRTB8419171 or any other condos for sale in Seminole or elsewhere in the Pinellas County area.
8055 112th St #104 Price Calculator
The payment calculator figures for 8055 112th St #104 should be used as an estimate only. Loan terms including interest rate, and required downpayment will vary with each lender and/or individual. RE taxes for this condo for sale are estimated based on the actual property taxes for this property for the tax year 2024 which are $423 but will likely change when this condo sells. These estimations are calculated from a list price of $125,000 and a 25% down payment and do not include homeowners insurance which will vary greatly depending on the condo characteristics and location.
Recent Condo Sales near 8055 112th St #104
MLS# MFRTB8419171 Listing History
Pinellas County Schools
Elementary School
Middle School
High School
Public Transportation
Pinellas Suncoast Transit Authority:
Route 58 GATEWAY MALL/SEMINOLE MALL
Pinellas Suncoast Transit Authority:
Route 58 GATEWAY MALL/SEMINOLE MALL
Pinellas Suncoast Transit Authority:
Route 58 GATEWAY MALL/SEMINOLE MALL
Pinellas Suncoast Transit Authority:
Route 58 GATEWAY MALL/SEMINOLE MALL
Pinellas Suncoast Transit Authority:
Map of 8055 112th St #104 Seminole FL 33772
The data relating to homes for sale or lease or other real estate for sale or for rent on the ZFC website comes in part from a cooperative data exchange program of the MLS in which this Broker participates. The real estate displayed may not be all of the homes in the database, or all of the properties listed with Brokers participating in the cooperative data exchange program. Homes for sale that are listed by Brokers other than this Broker are marked with either the listing Broker's name or the MLS name or a logo provided by the MLS and the details page about such properties includes the name of the listing Brokers. Information provided is thought to be reliable but is not guaranteed to be accurate; you are advised to verify facts that are important to you. No warranties, expressed or implied, are provided for the data herein, or for their use or interpretation by the user. ZFC, the Florida Association of Realtors and its cooperating Multiple Listing Services do not create, control or review the property data displayed herein and take no responsibility for the content of such records. Federal law including the fair housing act prohibits discrimination on the basis of race, color, religion, sex, handicap, familial status or national origin in the sale, rental or financing of housing. IDX information is provided exclusively for personal, non-commercial use, and may not be used for any purpose other than to identify prospective properties consumers may be interested in purchasing. Information is deemed reliable but not guaranteed.
-
- Palm Beach
- Boca Raton
- Highland Beach
- Delray Beach
- Boynton Beach
- Lake Worth
- Wellington
- West Palm Beach
- Palm Beach Gardens
- Jupiter
- Singer Island
- Broward
- Fort Lauderdale
- Parkland
- Coral Springs
- Davie
- Weston
- Plantation
- Pembroke Pines
- Southwest Ranches
- Hillsboro Beach
- Miami/Dade
- Miami
- Miami Beach
- Aventura
- Sunny Isles
- Bal Harbour
- Surfside
- Coral Gables
- Treasure Coast
- Port Saint Lucie
- Fort Pierce
- Palm City
- Jensen Beach
- Vero Beach
- Stuart
- Hobe Sound
- Gulf Coast
- Naples
- Marco Island
- Fort Myers
- Bonita Springs
- Sarasota
- Tampa
- Clearwater





