3031 STANTON AVENUE SPRING HILL FL 34609
Overview of 3031 Stanton Ave
Yes
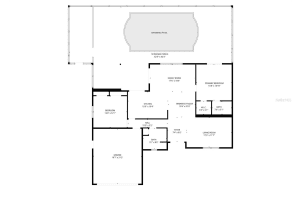
Charming pool home with split floor plan and great outdoor space! this is beautifully maintained 2-bedroom, 2-bathroom pool home with a 2-car garage, offering the perfect blend of comfort, functionality, and florida living! Step inside to a spacious great room that flows seamlessly into the kitchen, dining area, and family rooman ideal layout for entertaining or relaxing. The kitchen features abundant storage, pantry, breakfast nook, sliding glass doors that open to the lanai and a breakfast bar. A large solar tube fills the dining area with natural light. a separate formal living room with a ceiling fan offers additional space for hosting or quiet evenings. the primary suite includes a walk-in closet with a cedar paneled wall, a private en suite bath with a walk-in shower, and sliding glass doors that open directly to the poolperfect for a morning swim or evening unwind. The guest bedroom features two closets and a ceiling fan, conveniently located near the second bath with a tub/shower combination, single vanity, and linen closet. Enjoy outdoor living year-round in the screened-in pool area, complete with a covered lanai, ceiling fan, and plenty of space for dining or lounging. There's even an additional area that could be used as a play space or dog run. The garage includes a workbench, ceiling fan, washer and dryer, and pull-down stairs to attic storage. Other features include a 2023 water heater, motion lights for added security, sidewalk along the side of the home, sprinkler system to keep the lawn lush. Lanai is plumbed for toilet and tv. Leech field and septic tank 2023 are inrb in-ground, nitrogen reducing biofilter. No hoa. Roof 2011. Hvac 2020. Call us today to see in person.
This lovely single family home was built in 1987 and features 2 bedrooms, and 2 full bathrooms. This home for sale is 2,198 square feet, with 1,498 sq ft being air conditioned living space. The home has a 2 car garage and has a private swimming pool.
Directions to this property are as follows: From Spring Hill Dr, Turn North On Mariner Blvd, Right On Linden Dr, Right On Stanton Ave.
Please contact your ZFC agent for more information about MLS# MFRW7880579 or any other homes for sale in Spring Hill or elsewhere in the Hernando County area.
3031 Stanton Ave Price Calculator
The payment calculator figures for 3031 Stanton Ave should be used as an estimate only. Loan terms including interest rate, and required downpayment will vary with each lender and/or individual. RE taxes for this home for sale are estimated based on the actual property taxes for this property for the tax year 2024 which are $1,553 but will likely change when this home sells. These estimations are calculated from a list price of $275,000 and a 25% down payment and do not include homeowners insurance which will vary greatly depending on the home characteristics and location.
Recent Home Sales near 3031 Stanton Ave
MLS# MFRW7880579 Listing History
Hernando County Schools
Elementary School
Middle School
High School
Public Transportation
Hernando County Transit:
Blue
Hernando County Transit:
Blue
Hernando County Transit:
Blue
Hernando County Transit:
Blue
Hernando County Transit:
Blue
Open House Schedule for 3031 STANTON AVE
Map of 3031 Stanton Ave Spring Hill FL 34609
Similar communities in Spring Hill
The data relating to homes for sale or lease or other real estate for sale or for rent on the ZFC website comes in part from a cooperative data exchange program of the MLS in which this Broker participates. The real estate displayed may not be all of the homes in the database, or all of the properties listed with Brokers participating in the cooperative data exchange program. Homes for sale that are listed by Brokers other than this Broker are marked with either the listing Broker's name or the MLS name or a logo provided by the MLS and the details page about such properties includes the name of the listing Brokers. Information provided is thought to be reliable but is not guaranteed to be accurate; you are advised to verify facts that are important to you. No warranties, expressed or implied, are provided for the data herein, or for their use or interpretation by the user. ZFC, the Florida Association of Realtors and its cooperating Multiple Listing Services do not create, control or review the property data displayed herein and take no responsibility for the content of such records. Federal law including the fair housing act prohibits discrimination on the basis of race, color, religion, sex, handicap, familial status or national origin in the sale, rental or financing of housing. IDX information is provided exclusively for personal, non-commercial use, and may not be used for any purpose other than to identify prospective properties consumers may be interested in purchasing. Information is deemed reliable but not guaranteed.
-
- Palm Beach
- Boca Raton
- Highland Beach
- Delray Beach
- Boynton Beach
- Lake Worth
- Wellington
- West Palm Beach
- Palm Beach Gardens
- Jupiter
- Singer Island
- Broward
- Fort Lauderdale
- Parkland
- Coral Springs
- Davie
- Weston
- Plantation
- Pembroke Pines
- Southwest Ranches
- Hillsboro Beach
- Miami/Dade
- Miami
- Miami Beach
- Aventura
- Sunny Isles
- Bal Harbour
- Surfside
- Coral Gables
- Treasure Coast
- Port Saint Lucie
- Fort Pierce
- Palm City
- Jensen Beach
- Vero Beach
- Stuart
- Hobe Sound
- Gulf Coast
- Naples
- Marco Island
- Fort Myers
- Bonita Springs
- Sarasota
- Tampa
- Clearwater





