184 PALMETTO RIDGE ROAD ST AUGUSTINE FL 32095 Sold 01/16/2026
Overview of 184 Palmetto Ridge Rd
No
Ready now! This cozy bedroom features plush carpeting and fresh neutral paint, creating a clean and inviting atmosphere. The room offers ample wall space for furniture placement and décor flexibility. A classic white door adds a touch of modern simplicity, while the neutral tones allow for easy customization to match any style. Perfect as a guest room or home office space. The soft natural light enhances the relaxing feel of the room, making it a welcoming retreat in the home.
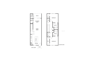
This lovely townhouse was built in 2025 and features 2 bedrooms, and 2 full bathrooms plus 1 half bath. This townhouse for sale is 1,216 square feet, with 1,109 sq ft being air conditioned living space. The townhouse has a does not have a private swimming pool.
Directions to this property are as follows: From I-95 Take Exit 323 For International Golf Parkway And Travel East Approximately 4.9 Miles. Turn Right Onto Us-1 And Continue Approximately 2.4 Miles To Community On The Left At Sage Branch Street.
Please contact your ZFC agent for more information about MLS# MFRFC312423 or any other townhouses for sale in St Augustine or elsewhere in the St Johns County area.
184 Palmetto Ridge Rd Price Calculator
The payment calculator figures for 184 Palmetto Ridge Rd should be used as an estimate only. Loan terms including interest rate, and required downpayment will vary with each lender and/or individual. RE taxes for this townhouse for sale are estimated based on the actual property taxes for this property for the tax year 2024 which are $0 but will likely change when this townhouse sells. These estimations are calculated from a list price of $229,990 and a 25% down payment and do not include homeowners insurance which will vary greatly depending on the townhouse characteristics and location.
Recent Townhouse Sales near 184 Palmetto Ridge Rd
MLS# MFRFC312423 Listing History
St Johns County Schools
Elementary School
Middle School
High School
Map of 184 Palmetto Ridge Rd St Augustine FL 32095
The data relating to homes for sale or lease or other real estate for sale or for rent on the ZFC website comes in part from a cooperative data exchange program of the MLS in which this Broker participates. The real estate displayed may not be all of the homes in the database, or all of the properties listed with Brokers participating in the cooperative data exchange program. Homes for sale that are listed by Brokers other than this Broker are marked with either the listing Broker's name or the MLS name or a logo provided by the MLS and the details page about such properties includes the name of the listing Brokers. Information provided is thought to be reliable but is not guaranteed to be accurate; you are advised to verify facts that are important to you. No warranties, expressed or implied, are provided for the data herein, or for their use or interpretation by the user. ZFC, the Florida Association of Realtors and its cooperating Multiple Listing Services do not create, control or review the property data displayed herein and take no responsibility for the content of such records. Federal law including the fair housing act prohibits discrimination on the basis of race, color, religion, sex, handicap, familial status or national origin in the sale, rental or financing of housing. IDX information is provided exclusively for personal, non-commercial use, and may not be used for any purpose other than to identify prospective properties consumers may be interested in purchasing. Information is deemed reliable but not guaranteed.
-
- Palm Beach
- Boca Raton
- Highland Beach
- Delray Beach
- Boynton Beach
- Lake Worth
- Wellington
- West Palm Beach
- Palm Beach Gardens
- Jupiter
- Singer Island
- Broward
- Fort Lauderdale
- Parkland
- Coral Springs
- Davie
- Weston
- Plantation
- Pembroke Pines
- Southwest Ranches
- Hillsboro Beach
- Miami/Dade
- Miami
- Miami Beach
- Aventura
- Sunny Isles
- Bal Harbour
- Surfside
- Coral Gables
- Treasure Coast
- Port Saint Lucie
- Fort Pierce
- Palm City
- Jensen Beach
- Vero Beach
- Stuart
- Hobe Sound
- Gulf Coast
- Naples
- Marco Island
- Fort Myers
- Bonita Springs
- Sarasota
- Tampa
- Clearwater





