76 MONTELLANO ROAD ST AUGUSTINE FL 32084
See Also...
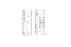
Overview of 76 Montellano Rd
No
Don't miss this townhouse for sale in Entrada! *no seller incentives offered* ready now! Welcome to cordera express, a new townhome community by d.r. Horton in the historic city of st. Augustine, florida. These thoughtfully designed homes blend open-concept living with energy-efficient features, all at an exceptional value. Plus, with included lawn maintenance, homeowners can spend more time enjoying life and less time on upkeep. cordera express features the osmond floorplan which offers 1,109 sq. Ft. Of living space across 2 bedrooms, 2.5 bathrooms, and 2-stories. This floorplan is expansive, bright, and perfect for hosting. at cordera, youll never feel far from home, thanks to the home is connected® suite of smart home products included in every townhome. This industry-leading technology keeps you connected to the people and places that matter most, providing convenience, security, and peace of mind in your new home. corderas prime location means residents are just minutes from the entertainment, shopping, and history of downtown st. Augustine. Whether exploring historic landmarks, enjoying local dining, or taking a short drive to local beaches, cordera offers the perfect blend of convenience and an active lifestyle. families will appreciate being zoned for some of the best schools in florida in top-rated st. Johns county, making cordera an ideal place to raise children. Discover the unique combination of history, modern living, and community at corderayour new townhome journey awaits.
This lovely townhouse was built in 2025 and features 2 bedrooms, and 2 full bathrooms plus 1 half bath. This townhouse for sale is 1,309 square feet, with 1,109 sq ft being air conditioned living space. The townhouse has a does not have a private swimming pool.
Directions to this property are as follows: From I-95 Take Exit 311 For Sr-207 N Towards St. Augustine Beach. Continue Ahead Approximately 1.8 Miles, Turn Left At Rio San Juan Road, Then Left Into Community At Ayamonte Rd. Model Homes Will Be Just Ahead On The Left.
Please contact your ZFC agent for more information about MLS# MFRFC312295 or any other townhouses for sale in St Augustine or elsewhere in the St Johns County area.
76 Montellano Rd Price Calculator
The payment calculator figures for 76 Montellano Rd should be used as an estimate only. Loan terms including interest rate, and required downpayment will vary with each lender and/or individual. RE taxes for this townhouse for sale are estimated based on the actual property taxes for this property for the tax year 2024 which are $0 but will likely change when this townhouse sells. These estimations are calculated from a list price of $223,990 and a 25% down payment and do not include homeowners insurance which will vary greatly depending on the townhouse characteristics and location.
Recent Townhouse Sales near 76 Montellano Rd
MLS# MFRFC312295 Listing History
St Johns County Schools
Elementary School
Middle School
High School
Map of 76 Montellano Rd St Augustine FL 32084
The data relating to homes for sale or lease or other real estate for sale or for rent on the ZFC website comes in part from a cooperative data exchange program of the MLS in which this Broker participates. The real estate displayed may not be all of the homes in the database, or all of the properties listed with Brokers participating in the cooperative data exchange program. Homes for sale that are listed by Brokers other than this Broker are marked with either the listing Broker's name or the MLS name or a logo provided by the MLS and the details page about such properties includes the name of the listing Brokers. Information provided is thought to be reliable but is not guaranteed to be accurate; you are advised to verify facts that are important to you. No warranties, expressed or implied, are provided for the data herein, or for their use or interpretation by the user. ZFC, the Florida Association of Realtors and its cooperating Multiple Listing Services do not create, control or review the property data displayed herein and take no responsibility for the content of such records. Federal law including the fair housing act prohibits discrimination on the basis of race, color, religion, sex, handicap, familial status or national origin in the sale, rental or financing of housing. IDX information is provided exclusively for personal, non-commercial use, and may not be used for any purpose other than to identify prospective properties consumers may be interested in purchasing. Information is deemed reliable but not guaranteed.
-
- Palm Beach
- Boca Raton
- Highland Beach
- Delray Beach
- Boynton Beach
- Lake Worth
- Wellington
- West Palm Beach
- Palm Beach Gardens
- Jupiter
- Singer Island
- Broward
- Fort Lauderdale
- Parkland
- Coral Springs
- Davie
- Weston
- Plantation
- Pembroke Pines
- Southwest Ranches
- Hillsboro Beach
- Miami/Dade
- Miami
- Miami Beach
- Aventura
- Sunny Isles
- Bal Harbour
- Surfside
- Coral Gables
- Treasure Coast
- Port Saint Lucie
- Fort Pierce
- Palm City
- Jensen Beach
- Vero Beach
- Stuart
- Hobe Sound
- Gulf Coast
- Naples
- Marco Island
- Fort Myers
- Bonita Springs
- Sarasota
- Tampa
- Clearwater





