400 CENTRAL AVENUE ST PETERSBURG FL 33701
See Also...
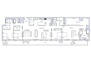
Overview of 400 Central Ave #4102
No
Don't miss this condo for sale in The Residences 400 Central! Discover the pinnacle of downtown st. Petersburg living in penthouse 4102 at 400 central. This extraordinary residence offers expansive floor-to-ceiling windows and soaring 11' ceilings that showcase breathtaking city and waterfront views. The open-concept design seamlessly blends living, dining, and entertaining spaces, featuring a chefs kitchen with premium appliances, spa-inspired bathrooms, and elegant custom finishes throughout. The luxurious primary suite is a true retreat, boasting a generous 33' x 11' walk-in closet ready to welcome the most curated of wardrobes. Step outside onto your 120' private terrace to entertain against the backdrop of stunning sunsets or enjoy a quiet moment above the city. living at 400 central means access to world-class amenities that elevate everyday life: a state-of-the-art fitness center, resort-style pool, sky lounge and landscaped rooftop terrace, private dining and event spaces, and 24-hour concierge service. From curated social experiences to the convenience of downtown st. Petes finest dining, arts, and culture just steps away, penthouse 4102 embodies the ultimate in modern luxury, comfort, and city lifestyle.
This luxury condo was built in 2021 and features 4 bedrooms, and 4 full bathrooms. This condo for sale is 4,734 square feet, with 3,927 sq ft being air conditioned living space. The condo2 assigned parking garage spots and does not have a private swimming pool, although there is a community pool in the complex for use by residents.
Directions to this property are as follows: The Residences At 400 Central Is Located At 400 Central Avenue In St. Petersburg, Fl - Between 4th And 5th Streets. From 275 South Bound, Take Exit 23a To 375 East And Merge Onto 4th Avenue N. Turn Right Onto 4th St N. Then Turn Right On Central Avenue. The Residences Will Be On Your Left. From 275 North Bound Take Exit 22 To 175 East And Take The Exit For 6th St S. Merge Onto 5th Ave S And Turn Left On 6th St S. Turn Right On Central Avenue And The Residences Will Be On Your Right.
Please contact your ZFC agent for more information about MLS# MFRTB8486020 or any other condos for sale in St Petersburg or elsewhere in the Pinellas County area.
400 Central Ave Price Calculator
The payment calculator figures for 400 Central Ave #4102 should be used as an estimate only. Loan terms including interest rate, and required downpayment will vary with each lender and/or individual. RE taxes for this condo for sale are estimated based on the actual property taxes for this property for the tax year 2025 which are $0 but will likely change when this condo sells. These estimations are calculated from a list price of $4,985,000 and a 25% down payment and do not include homeowners insurance which will vary greatly depending on the condo characteristics and location.
Recent Condo Sales near 400 Central Ave
MLS# MFRTB8486020 Listing History
Pinellas County Schools
Elementary School
Middle School
High School
Public Transportation
Pinellas Suncoast Transit Authority:
Route 23 ST PETERSBURG/TYRONE SQUARE MALL
Pinellas Suncoast Transit Authority:
Route CAT CENTRAL AVENUE TROLLEY
Pinellas Suncoast Transit Authority:
Pinellas Suncoast Transit Authority:
Route 4 ROY HANNA DR S/ ST PETE/ 34TH ST
Pinellas Suncoast Transit Authority:
Map of 400 Central Ave St Petersburg FL 33701
The data relating to homes for sale or lease or other real estate for sale or for rent on the ZFC website comes in part from a cooperative data exchange program of the MLS in which this Broker participates. The real estate displayed may not be all of the homes in the database, or all of the properties listed with Brokers participating in the cooperative data exchange program. Homes for sale that are listed by Brokers other than this Broker are marked with either the listing Broker's name or the MLS name or a logo provided by the MLS and the details page about such properties includes the name of the listing Brokers. Information provided is thought to be reliable but is not guaranteed to be accurate; you are advised to verify facts that are important to you. No warranties, expressed or implied, are provided for the data herein, or for their use or interpretation by the user. ZFC, the Florida Association of Realtors and its cooperating Multiple Listing Services do not create, control or review the property data displayed herein and take no responsibility for the content of such records. Federal law including the fair housing act prohibits discrimination on the basis of race, color, religion, sex, handicap, familial status or national origin in the sale, rental or financing of housing. IDX information is provided exclusively for personal, non-commercial use, and may not be used for any purpose other than to identify prospective properties consumers may be interested in purchasing. Information is deemed reliable but not guaranteed.
-
- Palm Beach
- Boca Raton
- Highland Beach
- Delray Beach
- Boynton Beach
- Lake Worth
- Wellington
- West Palm Beach
- Palm Beach Gardens
- Jupiter
- Singer Island
- Broward
- Fort Lauderdale
- Parkland
- Coral Springs
- Davie
- Weston
- Plantation
- Pembroke Pines
- Southwest Ranches
- Hillsboro Beach
- Miami/Dade
- Miami
- Miami Beach
- Aventura
- Sunny Isles
- Bal Harbour
- Surfside
- Coral Gables
- Treasure Coast
- Port Saint Lucie
- Fort Pierce
- Palm City
- Jensen Beach
- Vero Beach
- Stuart
- Hobe Sound
- Gulf Coast
- Naples
- Marco Island
- Fort Myers
- Bonita Springs
- Sarasota
- Tampa
- Clearwater





